西安(金辉城)首页网站| 实景图| 私密性好| 位置| 实时动态
扫描到手机,新闻随时看
扫一扫,用手机看文章
更加方便分享给朋友
西安「金辉城」
售楼处:029-83222232(营销中心)
售楼部地址:029-83222232(致电发送详情地址)
在售户型图丨项目详情介绍丨剩余房源丨项目周边配套丨详细在线解答
基本信息
绿化率: 30%
容积率: 3.34
占地面积: 1046亩
建筑面积: 约255万㎡
总户数: 约16000户
车位比: 1:0.8
物业费: 2.2元/m²/月
车位: 地上车位数1607 ; 地下车位数14478
物业公司: 北京金辉锦江物业服务有限公司泾河新城分公司
楼盘价格: 参考均价 8000 元/㎡ 周边房价解读
物业类型: 普通住宅
区域板块: 西咸新区
产权年限: 70年产权
项目特色: 景观居所 品牌房企 公园美宅 小户型 改善好房
开发商: 陕西枫泓房地产开发有限公司
楼盘地址: 西咸新区泾河新城秦汉大道西侧泾河北侧
金辉城君澜河景别院
让河流为家族作传
城市巨轮在时光大河中浩荡前行
而伟大,总诞生于大江大河奔涌不息的年代
金辉城君澜
西安北心,河景别院
新品敬呈
【市场语境】
限墅令下,河景别院一席难求
2019年,史上最严“限墅令”,各省级住房、城乡建设,暂停办理本行政区有关别墅项目建设审批手续,别墅产品已然稀缺,河景别院更一席难求。
【品牌实力】
25载金辉 质感生活美学引领者
金辉集团,中国房地产开发企业综合实力36强,中国房地产开发企业综合发展10强。深耕全国33座核心城市,臻心服务30余万业主,为约10万户家庭筑造幸福生活。

16载19盘深耕西安 耀领都会版图
2006年城拓西安,至今匠筑19盘,始终以质感产品辉耀城市生活梦想。

金辉四大产品系
[铭著系]
七大美学构建质感人居
聚合城市生活资源
定位高净值人群的顶级住宅
[优步系]
U+LIFE有机生长共享生态社区
深谙城市菁英所需
定位都会“中心“生活住区
[云系]
5C轻奢云生态理想改善人居
[大城系]
荟一城璀璨 纳世界生活
自造城市来来中心
定位“国际大城”醇魅功能区
【产品价值】
西安北心,城市热土之上
在新一轮的发展中,城市提速更迭,续写一个又一个流动的城市史诗。项目位居西咸新区五大组团之一,大西安北跨战略核心区,2021年一季度区域生产总值(GDP)同比增长26.9%,位列西咸新区第一(数据来源:西咸新区泾河新城)劳动密集型+人才密集型等众多优质企业聚焦,大西安腾飞热土。

文旅高地,执掌一城繁华所向
国家地理坐标经纬度起点和基准点--大地原点,中国第一高砖塔--崇文塔;国家4A级景区--约2200亩茯茶镇,恒大童世界、乐华欢乐世界等大型主题乐园环伺
文旅资源加持,繁华所向,丰盈日常生活。

优质医疗,时刻护佑家人健康
健康是感知美好的必须。项目周边西安交大附属泾河医院(签约落地)等优质医疗资源环绕在侧,时刻护航家人健康,大小麻烦无焦虑。

(意向图)
全生态艺术园林,城现乐活舒居
景观规划以多国艺术元素,打造全生态复合艺术园林,将雅致、自然、现代、时尚的气质融入每一个角落,成就现代都市 生活艺术之旅,全龄乐活社区,竞藏万般美好。

(意向图)
一线滨水,直观泾河景致
区域难得河景资源叠院用地,君澜直观泾河一线景致,17公里大河宏阔空间,不止容载万物气度,更容纳宽天阔院所有想象,对水岸资源的占有,天生稀贵。
河岸盛境,安放自在闲情
亲水别院,人类向往的诗意居所。四时风景流转,拥有喧闹都市难能可贵的一方净土。绿树、碧水、鲜氧环绕,于此漫步垂钓,仰观云起云落,感天地之悠悠,享岁月之静好。
诗意庭院,独享自在天地
君澜低密院落,敬呈向往诗意栖居,一步一景,四季如画,田园生活自在想象,举步沐晨光,轻嗅草木芬芳,落霞映彩 窗,闻得鸟鸣蛙唱,阖家共乐,理想归依。

(实拍图)
宽境尺度,进阶人居理想
一席宽奢之境,承载从容生活,郎阔厅堂,谈笑风生的会客场;巨幕阳台,生活倾心悦其境;上下三境,和而不扰,志趣场、社交场、休憩场有序分层,生活不被空间所限,尽享舒适高雅领地。

(实拍图)
人生大境,河院犒赏生活
河流为幕,家族始兴。上有高堂颐养天年,下有儿女承欢膝下,人生大境成,以一河院犒赏自己,是对自我的奖励,也是对家族成员的最好慰藉。在泾河岸畔,得以众所仰望的河院大境,为当代中国家族立基。

国家一级物业 让生活更有温度
北京金辉锦江物业,国家一级资质,19年发展经验,服务全城30余座核心城市
秉承“温暖,等您回家”服务理念,守护每一位业主居家幸福生活。
托斯卡纳风格 意式浪漫居境
托斯卡纳建筑,源于意大利中西部托斯卡纳地区,世界四大园林风格之一。其建筑风格很高雅浪漫,符合千百年来人居一致审美,尽享异域风情。

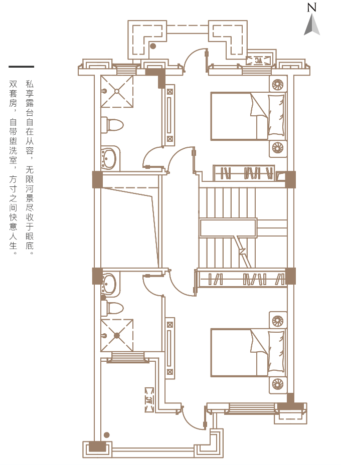
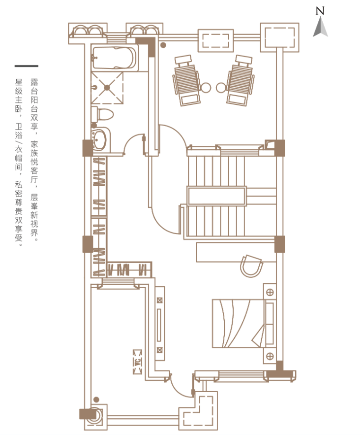
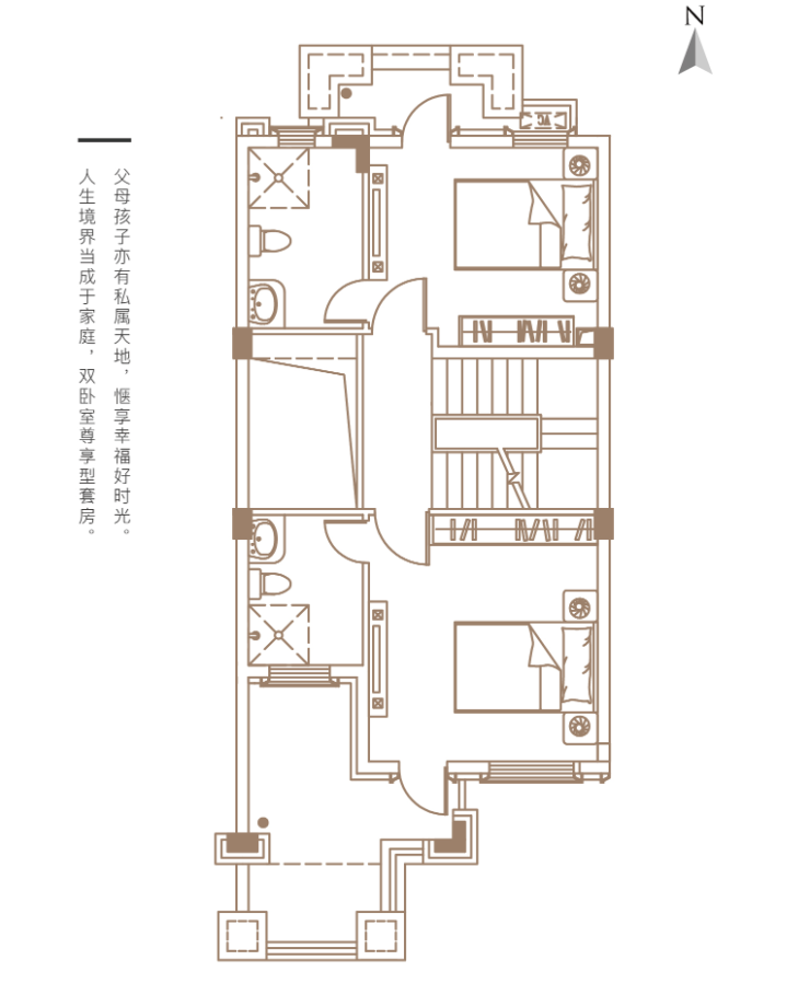
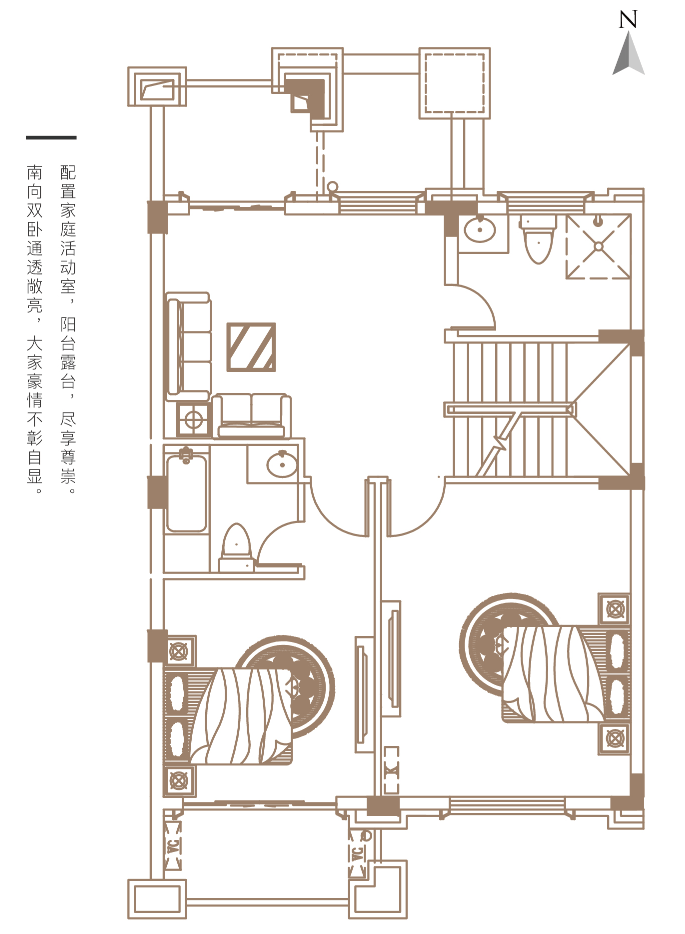
【金辉城君澜河景别院户型品鉴】
君澜A
建面约177㎡ 三室两厅四卫

(君澜A一层平面图)

(君澜A二层平面图)

(君澜A三层平面图)
君澜B
建面约182㎡ 三室两厅四卫

(君澜B一层平面图)

(君澜B二层平面图)

(君澜B三层平面图)
君澜C
建面约189㎡ 三室两厅四卫

(君澜C一层平面图)

(君澜C二层平面图)

(君澜C三层平面图)
君澜D
建面约194㎡ 三室两厅四卫

(君澜D一层平面图)

(君澜D二层平面图)

(君澜D三层平面图)
君澜E
建面约216㎡ 三室三厅四卫

(君澜E一层平面图)

(君澜E二层平面图)

(君澜E三层平面图)

(君澜E负一层平面图)
君澜F
建面约249㎡ 三室三厅五卫

(君澜F一层平面图)

(君澜F二层平面图)

(君澜F三层平面图)

(君澜F负一层平面图)
【金辉城君澜,让河流为家族作传】
一城丰盛,一世风情;世界在岸,河流入怀,
金辉城君澜,于此天人厚土上,
以河为镜,立家族繁盛之基。
西安北心,泾河之畔
建面约181-434㎡河景联排 不限购
中国 西咸新区 泾河大道
【金辉城】售楼处TEL:029-83222232【售楼中心】
了解最新优惠折扣价格——请拨打售楼处
声明:本文由入驻焦点开放平台的作者撰写,除焦点官方账号外,观点仅代表作者本人,不代表焦点立场。
