西安大华·锦绣年华(毛坯)▁绿化率▁实时动态▁总户数▁产品介绍
扫描到手机,新闻随时看
扫一扫,用手机看文章
更加方便分享给朋友
西安「大华·锦绣年华」
售楼处:029-68866626(营销中心)
售楼部地址:029-68866626(致电发送详情地址)
基本信息
楼盘名称:大华锦绣年华
规划户数:928户
车位数1601
楼盘特点:三环外 品牌开发商 轨交房 学校 公园
物业类型:住宅
开发商:大华集团西安华鑫置业有限公司
区域位置:三环外- 航天基地- 航天基地
楼盘地址:雁岭路与星苔路交汇东北角
区域
三区交汇双轴核芯抢占曲江共建风
雄踞国家级开发区航天新城核芯腹地,同时毗邻定位“千亿级数字文化产业集群园区”的曲江长安共建区,既可享受曲江及航天城醇熟配套资源,又兼得长安、曲江、航天三区融合发展红利。
航天枢纽与城南共未来
作为全国唯一以航天产业为特色的国家级开发区,航天新城毗邻曲江新区,向西直达高新,已发展为全市经济增速、人均GDP第的开发区,航天基地高精尖产业密布,聚集了8家“国家队”和40多家商业航天企业,京东、荣耀、阿里巴巴等产业园名企总部汇聚,航天城聚势腾飞飞,进阶城南高价值版图。
生态宜居珍壤世界一流康居新城
依托航天、新能源等主导产业奠定发展基础的同时,航天新城实现了人口的导入。教育、交通、公园、商业等城市配套密集落地,在建设国家中心城市的时代步伐之下,正向打造世界一流休闲康居新城的目标迈进。
锦绣尊系首映改善造城新样本
2024年,大华锦绣尊系首入西安,以高端序列作品择址观,落子航天新城产业核芯高地,敬献都会升级迭代巨著“大华·锦绣年华”,撰述西安改善造城史。242亩规划体量,15班幼儿园、中学(代建),规划约3.1万方商服配套。
全维美好生活圈推动城巿焕新生长
大华·锦绣年华从立项之初,即扎根城市发展的长期价值,以十字街区设计成片开发,推动城市焕新成长,大城有机串联街角公园、街心广场、幼儿园、海派风情漫步商街等配套,构建全维美好生活圈,让城市界面繁华似锦。
海派精致住区美学归心之境
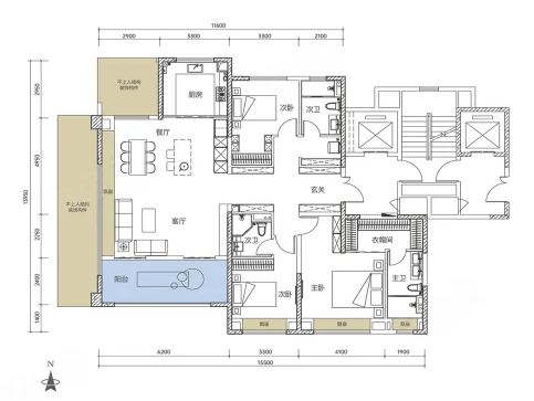
户型展示:




【大华·锦绣年华】售楼处TEL:029-68866626【售楼中心】
了解最新优惠折扣价格——请拨打售楼处
声明:本文由入驻焦点开放平台的作者撰写,除焦点官方账号外,观点仅代表作者本人,不代表焦点立场。
