商铺在售(招商揽阅) —商业街 —89-135㎡稀缺洋房 —学校 —交房
扫描到手机,新闻随时看
扫一扫,用手机看文章
更加方便分享给朋友
西安「招商揽阅」
售楼处:029-88777792 (营销中心)
售楼部地址:029-88777792 (致电发送详情地址)
在售户型图丨项目详情介绍丨剩余房源丨项目周边配套丨详细在线解答
售楼中心_欢迎来电咨询!预约尊享优惠折扣_匠心钜制恭迎品鉴!
如需了解最新房源信息_在售房源价格_请拨打上方售楼部电话!
基本信息
楼盘名称:招商揽阅
产权年限住宅:70年
容积率住宅:2.5
规划户数
2606户 [查看详情]
楼盘特点:一房一价 三环外 大型社区 配套纯熟 商业街
参考价格:18232元/m²
物业类型:住宅
开发商:西安雍景嘉境房地产有限公司
区域位置:三环外- 浐灞国际港- 保税区
楼盘地址:奥体大道交大附中附小对面
(1)百年招商 与祖国共命运 同时代共发展
百年招商局,历经151载风雨洗礼,双世界500强,资产规模位居央企第一。跨越三个世纪,创立轮船招商局、唐胥铁路、南洋公学、蛇口工业区、招商银行、海上世界等时代巨著,刻写中国辉煌的印记。
(2)招商西安·美好生活营造家
招商蛇口作为“招商局集团”旗下子公司,历经43年的发展,以“中国领先的城市和园区综合开发运营服务商”为战略定位,致力于成为“美好生活承载者”。
2014年,招商蛇口携依云曲江项目首次亮相西安。百年招商与千载西安的故事,便正式拉开序幕。此后9年,招商蛇口在西安相继开发招商雍景湾、招商城市主场、招商臻观府、招商局丝路中心、招商央玺、招商臻境、招商西安序、招商雲山間、招商雲蘭、西安伊敦诺富特酒店、招商揽阅等,以对待生命成长的方式升级城市。
(1)大西安东部新中心 东部双向开放引领区
⻄安东拓主战场|国际⽂化交流轴核心承载区 | 东部双向开放引领区 | 国际门户枢纽城市
(2)大西安物流中心 世界一流内陆港
西安内陆改革开放高地排头兵、主力军 | 陕西自贸区核心板块 | 建设对外大通道重要平台
中欧班列集结中心 | 一带一路跨境电商综试区
(3)大西安东部产业中心 500强总部林立
东北-西南两极化产业发展 | 360余家外贸企业 | 300余家物流企业 | 约200家名企业入驻
华润、电建、中铁、中粮、中冶、招商10⼤央企区域总部 | 京东千亿级产业集群
(6)大西安生态绿肺 河园生态底色加持
①超级水岸:附近有灞渭三角洲 |纵览“一园两河”,揽胜灞河、渭河自然景观资源
②超级生态:附近有浐灞国家湿地公园,国家级湿地公园
③超级公园:附近有奥体中轴生态公园
奥体大道作为港务区近年来发展的黄金中轴线,集萃国际化地标集群、高奢生活资源、优渥天然的生态后花园,为西安构筑迈向世界的城市窗口。
(1)商务集群:附近有十大央企总部【中国中冶、华润、招商局、中国中铁、中电建、中石化、中粮、中外运、中远海、中铁集装箱】
(2)生态集群:附近有灞河三角洲、奥体中央公园、浐灞国际湿地公园、全运湖、丝路国际体育文化交流培训基地、灞河东路生态廊道、陆港纪念公园
(3)地标集群:附近有西安奥体中心、西安国际会展中心、西安国际会议中心、长安乐、长安书院、元朔大桥、长安云、长安塔
(4)商业集群:附近有华润万象城(在建中)、水晶汇溪广场、王府井购物中心(在建中)、中粮·大悦广场(在建中)
(5)名校集群:附近有铁一中陆港中学/小学;陕师大陆港小学、陕师大附中陆港初级中学、高新一中陆港小学、高新一中陆港初级中学、西安国际港务区陆港第七小学、西安国际港务区陆港第四学校(规划中)、陆港第五幼儿园、陆港第六幼儿园、西安国际港务区陆港第九幼儿园(免责声明:本资料中所展示的项目周边学校,仅作为项目周边学校介绍,不作为上学承诺,具体入学条件、入学资格等以教育部门和学校要求为准)
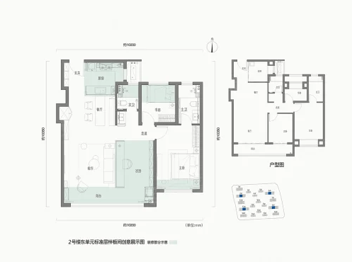
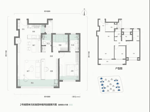
在售户型:
4室2厅2卫1厨, 128平米

3室2厅2卫1厨, 103平米

4室2厅3卫1厨, 143平米

3室2厅2卫1厨, 101平米

【招商揽阅】售楼处TEL:029-88777792 【售楼中心】
了解最新优惠折扣价格——请拨打售楼处
声明:本文由入驻焦点开放平台的作者撰写,除焦点官方账号外,观点仅代表作者本人,不代表焦点立场。
