【商铺推荐】碧桂园云顶▁一房一价▁高绿化率▁人车分流▁4号线
扫描到手机,新闻随时看
扫一扫,用手机看文章
更加方便分享给朋友
西安「碧桂园云顶」
售楼处:029-88777723(营销中心)
售楼部地址:029-88777723(致电发送详情地址)
如需了解最新房源信息_在售房源价格_请拨打上方售楼部电话!

基本信息
绿化率: 35%
容积率: 2.98
占地面积: 198亩
建筑面积: 358607平方米
总户数: 1171户
当期户数: 1171户
车位比: 1:1.4
物业费: 3.3元/m²/月
车位: 地上车位数172 ; 地下车位数2551
物业公司: 碧桂园智慧物业服务集团股份有限公司西安分公司
楼盘价格: 参考均价 20000 元/㎡ 周边房价解读
物业类型: 普通住宅
区域板块: 曲江
产权年限: 70年
项目特色: 地铁沿线 4号线 改善好房
开发商: 西安碧盈置业有限公司
楼盘地址: 西安航天基地麟凤路以南,神舟四路以东,航天大道以北
云顶择址航天新城门户,曲江高地外延,享受双板块优质资源,打造城市中心的都市豪宅,坐拥全系成熟配套。

项目配套
【交通】
距离地铁4号线金滹沱站、航天大道站。南三环、雁塔收费站,距离曲江收费站。项目门口更是有雁塔南路,神州四路两条城市级主干道,高效通达全城。

【教育】
项目周边名校众多,项目一路之隔的航天六小、航天三中已开学;更有师资力量雄厚的名校曲江一小,曲江二小,更有接驳国际理念,以国际升学为方向的西安康桥国际学校和西安德闳国际学校。
【医疗】
国际医疗综合体及航天总院、西安市人民医院、西北妇幼、强森医疗等。

【生态】
电竞主题公园、曲江文化运动公园、金辉运动公园、秦二世陵遗址公园、明秦宣王墓遗址公园等。

【商业】
云顶项目周围有四大商圈环绕,大雁塔商圈、南湖商圈、雁翔路商圈、商圈等。有已建成运营的金辉·环球广场、星座广场;华润万家步行15分钟就可以到达,盒马鲜生、徐记海鲜、海底捞、麦当劳、奥斯卡等,步行5分钟就可以享受,满足生活所需。
楼盘介绍
碧桂园云顶承袭大曲江时代发展机遇,以航天基地潜力为依托项目产品规划有平层住宅、商业等产品,配套规划品牌幼儿园及中学。一期占地面积约103亩,总建筑面积约35.8万㎡,住宅容积率为3.476,首期开发户数约1171户。

云顶择址航天新城门户,曲江高地外延,享受双板块优质资源,打造城市中心的都市豪宅,坐拥全系成熟配套
户型分析图
143户型
部分户型因位置、楼层、朝向的影响,相同面积的户型存在区别,以现场公示及实际销售双方签订合同为准




【亮点罗列】
【143㎡户型整体格局】两梯三户,三室两厅两卫,整体结构方正,大三室设计,完全不同于刚需性4室,整个房间各个区域的舒适度大幅提升。
开间约10.9米,进深约10.55米
餐客厅一体设计,面积约为36平米,餐厨相连,方便您备餐用餐
厨房面积约6.6平米,可容纳两人同时操作。采用L型设计,洗切炒的动线,实用性更强。大玻璃窗约1.2米宽的设计让您在烹饪的同时尽情享受窗外的美景
客厅开间约4.35米,约7.4米阔景阳台,两边分别设置洗衣柜和储物柜,完美收纳各种洗涤用品和生活用品
主卧功能分区十分合理,约60 公分宽景飘窗
三开间朝南,约10.9米的采光面
190户型
部分户型因位置、楼层、朝向的影响,相同面积的户型存在区别,以现场公示及实际销售双方签订合同为准




【亮点罗列】
【190㎡户型整体格局】2梯2户大平层豪宅,户型设计四室两厅一厨三卫,该户型实现了东西两户皆端户。
宽约5.4米,进深约10.4米连续长厅,以接近56㎡的面积构建了一个聚合的、完整的、大尺度的多功能公共活动空间
U型厨房空间,约12㎡超大观景厨房
近30㎡的豪华主卧套房设置,头等舱版的居住体验
四开间朝南,约15.8米的采光面
南向三间卧室均配观景飘窗
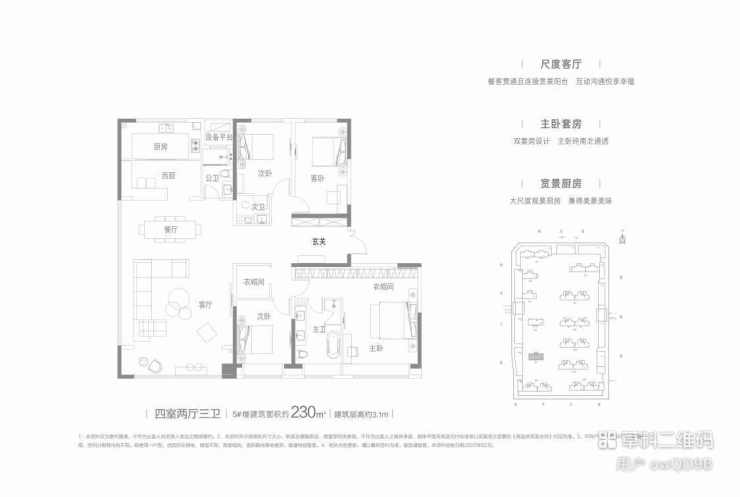
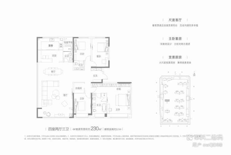
230户型
部分户型因位置、楼层、朝向的影响,相同面积的户型存在区别,以现场公示及实际销售双方签订合同为准



【碧桂园云顶】售楼处TEL:029-88777723【售楼中心】
了解最新优惠折扣价格——请拨打售楼处
声明:本文由入驻焦点开放平台的作者撰写,除焦点官方账号外,观点仅代表作者本人,不代表焦点立场。
