2025租售中心,太白山唐镇▁独家房源▁开发商线上推广直销 ▁颐养汤泉▁大户型
扫描到手机,新闻随时看
扫一扫,用手机看文章
更加方便分享给朋友
西安「太白山唐镇」
售楼处:029-88866617(营销中心)
售楼部地址:029-88866617(致电发送详情地址)
在售户型图丨项目详情介绍丨剩余房源丨项目周边配套丨详细在线解答

【开发商】陕西合巨源房地产开发有限公司(天朗控股)
【项目地址】位于太白山旅游景区,迎宾大道与漂流大道西北角
【项目特点】西北五省唯一唐风小镇
【总占地】1800亩
【车位比】1:1
【装修情况】精装
【容积率】1.01
【绿化率】35%
周边配套:
购物:自带200亩商业街(丝路风情街、社群体验区、文旅商业区、温泉酒店度假区),380亩业主农场,打造汤泉文化,唐风文化与山地文化为一体的唐风商业街区
生活: 唐潮火锅、墨水金城、银发学院,业主食堂,李小白食间,品味现代生活乐趣;唐镇咖啡,让生活有滋有味;秋暝馆,女性专属社群空间;百食工坊,山水特产与唐潮风物
娱乐: 鹿野仙踪、太白山国家森林公园、红河谷景区、太白山温泉、水上世界、太白山漂流、逸景营地、鳌山滑雪场等
医院:唐潮火锅、墨水金城、银发学院,业主食堂,李小白食间,品味现代生活乐趣;唐镇咖啡,让生活有滋有味;秋暝馆,女性专属社群空间;百食工坊,山水特产与唐潮风物

太白山·唐镇位于太白山麓北侧,毗邻国家AAAAA级旅游景区——太白山国家森林公园,规划总占地约1800亩,以诗仙李白和太白山为文化IP,以自然田园和温泉度假生活为载体,打造具有唐风唐韵的温泉旅居度假小镇。
实景拍摄品鉴
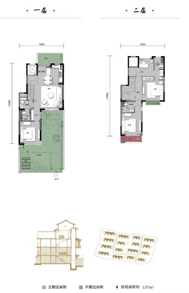
户型品鉴
下叠约137㎡,南边花园
上叠约160㎡,北花园,阁楼、露台
【太白山唐镇】售楼处TEL:029-88866617【售楼中心】
了解最新优惠折扣价格——请拨打售楼处
声明:本文由入驻焦点开放平台的作者撰写,除焦点官方账号外,观点仅代表作者本人,不代表焦点立场。
