翰林府【西安商铺】▁品牌开发商▁效果图▁区位介绍▁建筑类型
扫描到手机,新闻随时看
扫一扫,用手机看文章
更加方便分享给朋友
西安「翰林府」
售楼处:029-88777792(营销中心)
售楼部地址:029-88777792(致电发送详情地址)
如需了解最新房源信息_在售房源价格_请拨打上方售楼部电话!
基本信息
绿化率: 35%
容积率: 2.6
占地面积: 约30亩
总户数: 414户
车位比: 1:1.0
物业费: 2.42元/m²/月
车位: 456个
物业公司: 万科物业
物业类型: 普通住宅
区域板块: 城北
产权年限: 40年
项目特色: 改善好房
开发商: 陕西润泽基泰置业有限公司
楼盘地址: 元朔路与明光路交汇处东北角

翰林府项目品鉴
匠筑|陕西基泰源集团
择址|中国·国家级·西安经济技术开发区
都会|一路之隔中小学规划用地,名校、名师加持距4号线元朔路地铁口仅200米,纵享立体交通合生汇(规划中)、熙地港、大融城等繁盛商业资源集萃
场域|总占地约30亩
规制|8栋小高+3栋商业配套
栖境|约2.6容积率、35%绿化率
奢逸|全系一梯一户纯粹领地、南北三阳台赏景
著品|建面约105-143m超四代森境住区
超群·实力稳健的至诚匠人源启向上 行稳致远
陕西基泰源集团,起源于2000年,依托能源产业的深厚根基,以星星之火,汇聚成“炬”,逐步拓展业务版图。历经25年发展,集团整合能源发电、仓储物流、实业、金融等多元化业务,聚沙成塔,逐步实现了从分散业务到集团运营的跨越式发展。
多元格局 基业磐石
能源发电能源为基,驱动绿色发展
仓储物流布局未来,打造全产业链
金融投资稳健投资,共启成功之源
地产开发匠心筑家,造诣人居标杆
教育科技智慧引领,培育创新力量
扎根榆林 深耕西安
聚焦高端住宅建设,2021年品牌进驻房产开发领域从拿地到建设,实现完全自有资金运作模式,“0融资、0负债、0杠杆”,实力稳健,行稳致远。
超核·繁华丰盛的都会生活政经核心 繁盛集萃
世界西安所向,仅此珍贵厚壤。翰林府立序经开区核心贵脉--政经核心圈,项目周边交通、商业、医疗、自然、产业等全系资源集粹,美好丰盈,引领一城璀璨。
便捷交通
地铁2、12号线(规划中)环伺距4号线元朔路地铁口仅200米西安北站约800米,多维立体路网,纵横驰骋,畅连全城
繁盛商业
首创禧悦里、合生汇(规划中)、熙地港大融城等多元商业聚集
汇聚世界潮流风尚,纵享城市品质生活圈
学府优教 筑基未来
文教胜地,起笔人文新章。一路之隔中小学规划用地,名校、名师加持,构筑教育资源的“硬核引擎”项目周边经开系学府环同,经开第十三小学、经开第十四小学、经开第一学校、经开第二学校、经开第六中学,近距优渥教育资源,厚载学识底蕴。
超配·精心雕琢的人居之境品质筑善 府系奢境
翰林府,基泰源集团运营化后地产开发人居首作,以远见择地、低密规划、创新产品、人文滋养,造诣“府”系进阶人居,品质匠呈,共鸣当代家庭的心中阔境。
第一家通过ISO900国际质量管理体系认证物管企业
中国首批获得一级资质的物业管理企业
连续10年蝉联中国物业管理综合第一
荣获“2024中国住宅物业服务力优秀企业TOP1
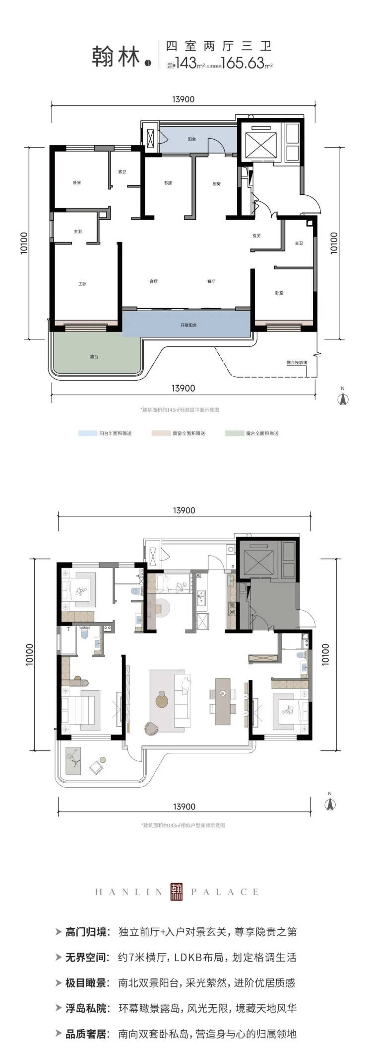
“2024年新质物业品牌价值TOP1”翰林府户型鉴赏】
翰林府户型鉴赏
【翰林府】售楼处TEL:029-88777792【售楼中心】
了解最新优惠折扣价格——请拨打售楼处
声明:本文由入驻焦点开放平台的作者撰写,除焦点官方账号外,观点仅代表作者本人,不代表焦点立场。
