高新三期在售住宅曲江文商檀境项目怎么样?双强联袂 打造“瞳”芯高品质住区
扫描到手机,新闻随时看
扫一扫,用手机看文章
更加方便分享给朋友
西安【曲江文商檀境】售楼处电话:029-68866626(营销中心)
户型图丨项目介绍丨房源丨_周边配套丨详细解答
售楼中心_欢迎来电咨询!预约尊享优惠折扣_匠心钜制恭迎品鉴!
如需了解最新房源信息_在售房源价格_请拨打上方售楼部电话!
温馨提示:看房需提前预约!
一、品牌介绍
曲江文商集团:
是由曲江新区管委会下属曲江文化产业集团(连续10年被列为全国文化企业30强)全资直属的国有企业,自2005年成立相继开发了大雁塔北广场、唐慈恩寺遗址公园、大唐不夜城、曲江银泰城、芙蓉新天地、皇城坊、尚德映巷、陕西大剧院、曲江文创中心等省市重点项目。
阳光城集团:
阳光城集团是中国地产开发企业综合实力TOP15、双千亿房企,位于中国房地产开发企业成长速度TOP1。
2005年进驻陕甘区域,先后布局陕甘宁青4省累计开发27个精品项目,2017年-2018年陕甘区域连续两年销售额突破百亿
二、项目介绍
【基础信息】
开发商:西安阳光煜祯实业有限公司 (国资控股)
总户数:约813户
总占地:约64.86亩
容积率:约2.8
绿化率:约35%
车位配比:1:1.8
产品:
1#2#3#5#6#为25层高层;
7#8#10#11#13#14#为17层小高层;
9#12#为14层小高层。
【区域配套】
超高层:未来之瞳﹣瞳系列建筑群(在建)。
TOD商业:永安渠商业街(规划中)、砂之船(规划中)、王府井(规划中)、红星美凯龙(规划中)、兰桂坊商业(规划中)、侧坡TOD(规划中)。
公建配套:大剧院(在建)、ICC国际会议中心(规划中)、新罗酒店、西安国际文化传播中心(在建)、市冰球馆(在建)。
交通:地铁:已开通-6号线(约800米)、规划中-12号线(城际) 、在建15、16号线;高新云巴(在建中);高铁:长安中心高铁南站(规划中)。
学校:区域内29所基础教育学校,两公里范围内6所学校,15所已开学,高新一中分校(高新第十一初级中学)、高新一小分校(高新第三十一小高)(1.8公里)、项目西侧规划高中,项目西北规划小学、中学,项目东临约5000㎡公办幼儿园。
医院:国际医学中心医院;西安市第一医院(9月试运营)。
多公园配套:约450亩瞳湖湿地公园 (30米、在建)、永安渠湿地公园(200米)、口袋运动公园2处(南北两侧、规划中)、约340亩大仁遗址公园(在建)、永安花谷(规划中)等。

【产品亮点】
品牌亮点:国资站台&千亿房企,双强联袂;
核心地段:未来之瞳北约30米,核芯中的核芯;
核心板块:配套最齐,双公园,双轨交通,2公里范围内6所学校;
规划优势:北高南低楼王格局,公建化外立面,户户享受最好景观视野;约2000㎡会所,泳池、书吧、瑜伽室、健身房全配套。
户型亮点:
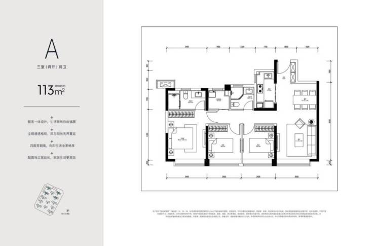
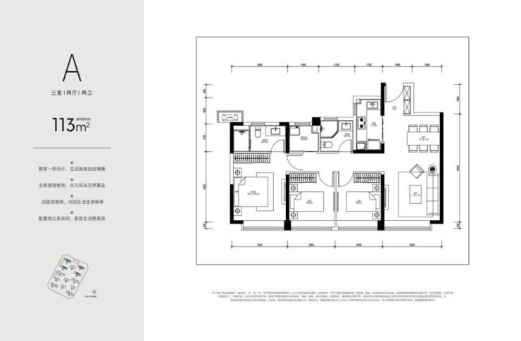
高层:113㎡三室两厅两卫
户型亮点:CID同面积段最牛产品+最畅销产品+第四代全能三房设计+小面积大内核+南北通透+三房两卫功能齐全+南向四开间。
高层:138㎡三室两厅两卫(端厅)
户型亮点:都市豪宅基因+创新户型+客厅270°超大面宽+充足的通风采光+功能区交流融合+主卧大套房+独立衣帽间宁静私密。
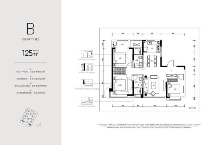
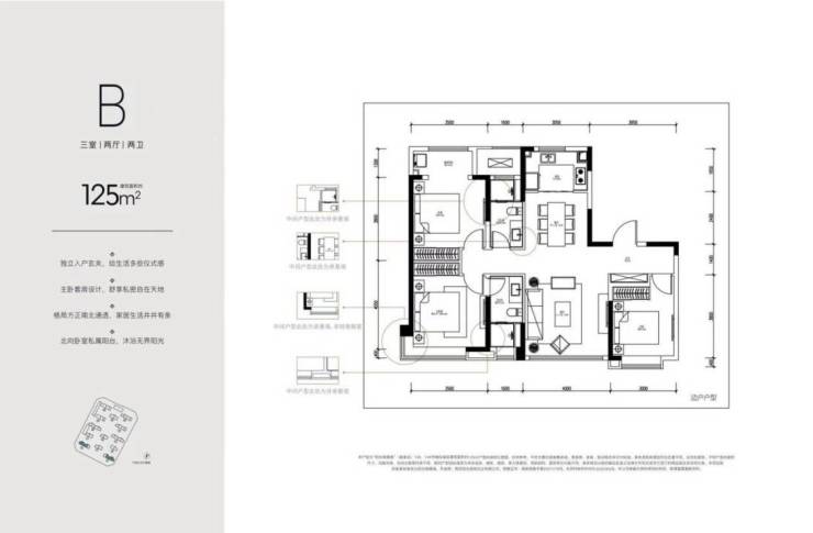
小高层:125㎡三室两厅两卫
户型亮点:稀缺低密产品+城市地标资源尽收眼底+面积合理首套可直接改善+两梯两户私享电梯+户型方正通透+主卧套房设计270°+餐客厨一体+北向家政阳台。
小高层:146㎡四室两厅两卫
户型亮点:CID板块统一2.8容积率的指标下,很少见的低密产品,两梯两户小高层+私享电梯前厅+南向四开间+全明通透+餐客厨一体极佳通风+主卧套房设计私密阔绰+北向阳台。
【曲江文商檀境】售 楼 处 电 话:029-68866626【售楼中心】
【曲江文商檀境】置业经理电话:18602959000 (微信同步)
了解最新优惠折扣价格——请拨打售楼中心电话
声明:本文由入驻焦点开放平台的作者撰写,除焦点官方账号外,观点仅代表作者本人,不代表焦点立场。
