招商雲山间西安(招商雲山間)楼盘详情长安房价-户型-容积率-周边环境
扫描到手机,新闻随时看
扫一扫,用手机看文章
更加方便分享给朋友
【招商雲山間】售 楼 处 电 话:029-68866626【售楼中心】
【招商雲山間】置业经理电话:18602959000 (微信同步)
了解最新优惠折扣价格——请拨打售楼中心电话
招商雲山間 曲江南 城市半山洋房 地址:西安·曲江南·航天国际会议中心旁

【基础信息】
开发商:招商蛇口
物业类别:70年产权住宅
占地面积:约89亩
容积率:约2.0
户型面积:建面约165-225㎡城市半山洋房
装修情况:毛坯
物业服务:招商积余

招商雲山間,择址西安“南阳台”少陵塬上,依坡就势,以2.0低容积率,规划招商4.0迭代产品,为西安打开“雲山折叠”全新想象。城市半山之上,俯揽繁华万象,对望南山,再启时代仰望!
【土地价值】稀缺地脉 豪宅基因禀赋
西安的半山“南阳台”:少陵塬 ——少陵塬 | 主城唯一城市高地
少陵塬,地处西安航天基地,因地势海拔比主城区高80-150米,同时南依秦岭北麓、俯瞰樊川,北望西安主城、西邻大学城、东接城市万亩林带,被誉为大西安的“南阳台”。
这里地势高亢,冈峦起伏,视野极其开阔,登临可尽揽城南无限风景。作为古代潏水、浐河之间黄土台地,整个塬面呈阶梯状上升,延伸约二十余公里。

【区位价值】曲江之南 集城市顶尖资源于一身
产业制高点 | 全国唯一航天产业国家级开发区航天基地,汇聚着中国航天1/3力量(总资产、生产总值、从业人员均占全国约1/3),拥有航天高量级企业60余家,已经形成运载发射、卫星制造、卫星测运控、卫星应用、航天技术转化等全链条产业,助推西安航空制造业综合竞争力实现全国排名第一。

航天2.0时代,航天基地抢占产业制高点,强化生物医药、大数据、人工智能、新能源等13条重点产业链。隆基绿能、华为、荣耀、百度等大厂也纷纷入驻。这些高度聚集的尖端产业,将虹吸更多高阶人才,航天基地无疑成为西安“双中心”城市建设的重要承载区之一。
商业凝萃 | 以东长安街为核心,打造高端商务中心根据航天基地“十四五”规划,将重点建设城市综合体、特色商业街、高品质酒店、夜景亮化带提升、夜经济示范区等城建配套项目;到2025年,区内将建成商业商务商服载体140万平方米,实现社会消费品零售总额150亿元,以科、产、城、人、文、景协同发展的格局,高质量打造世界一流航天科技新城。

优教高点 | 学府林立,氤氲书香气文教,是城南的DNA。航天基地以建设“现代化教育强区”为目标,三年来17所学校陆续建成投用,新增学位16350个。航天基地学校数量已达39所,学生总数近3.2万,公办学校(园)高层次人才占比达22%,组建“名校+”12个,被评为省级智慧教育示范区。区域内,不乏西安交大附中航天学校、航天二中等优质学府。

天然氧吧 | 与自然共融,超“后曲江”低密体验东长安街以南,以揽月阁为轴心的区域,正是航天基地近年重点打造的低密高端住区。区域内,依山就势打造低密居住环境,目光所及皆是绿黛远山,是静心休养的佳境。此外,共享航天基地8大公共城市公园,60+处口袋公园,享受“300米见绿、500米见园、步行5分钟可达公共绿地”与自然共融的人居体验。

豪宅基因 领衔西安塔尖圈层
在西安,“一序双玺”(招商西安序、长安玺、央玺)已奠定招商蛇口在西安的高端人居口碑。其中,西安序为西安首个一层一户奢阔大平层,首个300㎡起纯粹大宅,首个健康社区WELL认证七恒科技智宅,仅306席世家⻔徽,为塔尖圈层量身定制。西安序位居2023年西安上半年豪宅成交套数、成交金额双TOP1。
【匠心筑家】百年产品哲思 为西安打开“雲山折叠”全新想象招商雲山間,从地脉出发,运用国际折叠建筑理念,营造出一次注入丰富设计力的“雲山折叠之旅”。根据空间类型划分,对稀缺资源的最大化使用进行可行性推演,打造一个活力现代的魅力空间先进样本,旨在提高人们的对于城市生活、社区生活、空间融合、角色融合的居住幸福指数的体验,让生活回到生活。
依塬就势 西安首个折叠社区 城市半山洋房最大限度利用现状高差,依坡就势,实现北高南低社区楼栋排布,以约2.0低容积率,打造14栋招商4.0住宅——半山洋房社区。

折叠建筑造型 呼应山的辽阔 雲的飘逸航空航天产业工业设计美学,轻盈灵动,享受多样的美学体验。

折叠园林 自然一体的MOUNTS生态自然空间结合两轴,打造雲山七境,垂直园林设计,实现园林内外景致的叠合互通。
双会所 为生活打开更多可能雲山間,无界会客厅&森涧下沉庭院双会所,打造雲山艺术场、雲山书社、雲山小剧场、雲山木屋、功夫与茶、雲山茶室、雲山之夜......对生活空间的社交想象,置入于“折叠双会所”,置身雲間,恍若山间的自由感油然而生。

城市之巅 雲山之间招商雲山間 谨呈598席顶峰收藏
1-4号楼为165㎡户型,共216套
5、10-14号楼为185㎡户型,共270套
6-9号楼为225㎡户型,共112套

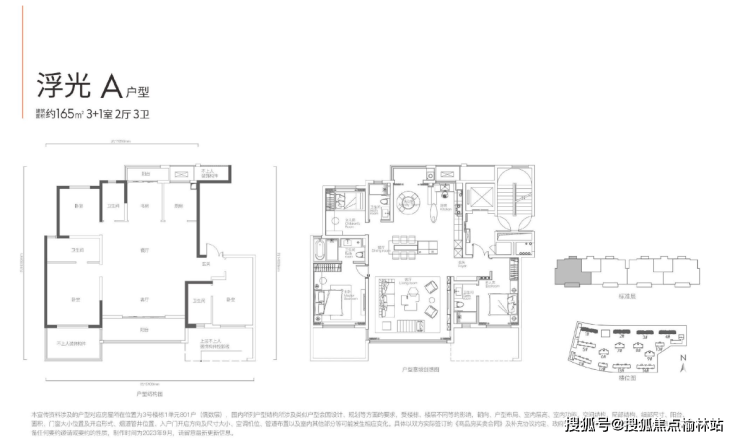
【产品特点】建筑与艺术和融共生165㎡ 浮光A户型

南北双阳台 为阳光和风景留足了舞台
客厅面宽6.2米,LDKB一体化通厅进深8米
双主卧套房设计,与家人共享亲密且各自独立
三位全明 舒适清新 隐秘雅洁
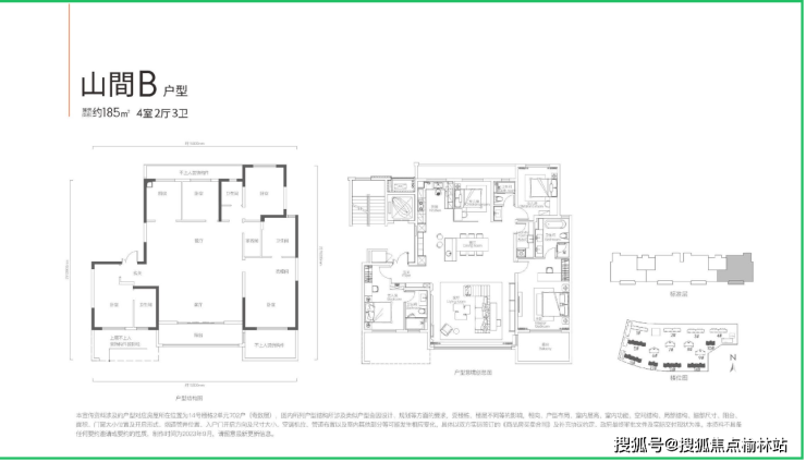
185㎡山间B户型

剧场式公厅 将餐、客厅、厨房及阳台有机链接打造多元复合场域
双主卧套房 舒适融合前提下重视每个人的空间体验实现私密感和空间自由平衡
南向景观露台 将风景融入生活
独立家政间 承载生活整洁而有序
三卫全明,真正全明户型
225㎡ 游雲C户型

极致客厅100㎡270度三面落地窗环幕观景客厅中西双厨,匹配各种味蕾南北通厅,承载生活致敬梦想超豪华主卧套,主卧面宽6.9米让生活更加从容

免责声明:本广告为要约邀请,买卖双方的权利义务以最终签订的《商品房买卖合同》及其附件为准。图片、文字内容仅供参考,最终情况以实际呈现为准,实际以最新资料为准。本资料中对项目周边环境,交通、教育及其它配套设施的介绍,旨在提供相关信息,不意味着本公司对此作出了承诺和保证。
【招商雲山間】售 楼 处 电 话:029-68866626【售楼中心】
【招商雲山間】置业经理电话:18602959000 (微信同步)
了解最新优惠折扣价格——请拨打售楼中心电话
声明:本文由入驻焦点开放平台的作者撰写,除焦点官方账号外,观点仅代表作者本人,不代表焦点立场。
