翰林府(售楼处)▁楼位图▁高绿化率▁自然禀赋▁学府优教
扫描到手机,新闻随时看
扫一扫,用手机看文章
更加方便分享给朋友
西安「翰林府」
售楼处:029-68866626(营销中心)
售楼部地址:029-68866626(致电发送详情地址)
基本信息
绿化率: 35%
容积率: 2.6
占地面积: 约30亩
总户数: 414户
车位比: 1:1.0
物业费: 2.42元/m²/月
车位: 456个
物业公司: 万科物业
物业类型: 普通住宅
区域板块: 城北
产权年限: 40年
项目特色: 改善好房
开发商: 陕西润泽基泰置业有限公司
楼盘地址: 元朔路与明光路交汇处东北角

翰林府项目品鉴
匠筑|陕西基泰源集团
择址|中国·国家级·西安经济技术开发区
都会|一路之隔中小学规划用地,名校、名师加持距4号线元朔路地铁口仅200米,纵享立体交通合生汇(规划中)、熙地港、大融城等繁盛商业资源集萃
场域|总占地约30亩
规制|8栋小高+3栋商业配套
栖境|约2.6容积率、35%绿化率
奢逸|全系一梯一户纯粹领地、南北三阳台赏景
著品|建面约105-143m超四代森境住区
超群·实力稳健的至诚匠人源启向上 行稳致远
陕西基泰源集团,起源于2000年,依托能源产业的深厚根基,以星星之火,汇聚成“炬”,逐步拓展业务版图。历经25年发展,集团整合能源发电、仓储物流、实业、金融等多元化业务,聚沙成塔,逐步实现了从分散业务到集团运营的跨越式发展。
多元格局 基业磐石
能源发电能源为基,驱动绿色发展
仓储物流布局未来,打造全产业链
金融投资稳健投资,共启成功之源
地产开发匠心筑家,造诣人居标杆
教育科技智慧引领,培育创新力量
扎根榆林 深耕西安
聚焦高端住宅建设,2021年品牌进驻房产开发领域从拿地到建设,实现完全自有资金运作模式,“0融资、0负债、0杠杆”,实力稳健,行稳致远。
超核·繁华丰盛的都会生活政经核心 繁盛集萃
世界西安所向,仅此珍贵厚壤。翰林府立序经开区核心贵脉--政经核心圈,项目周边交通、商业、医疗、自然、产业等全系资源集粹,美好丰盈,引领一城璀璨。
便捷交通
地铁2、12号线(规划中)环伺距4号线元朔路地铁口仅200米西安北站约800米,多维立体路网,纵横驰骋,畅连全城
繁盛商业
首创禧悦里、合生汇(规划中)、熙地港大融城等多元商业聚集
汇聚世界潮流风尚,纵享城市品质生活圈
低密·以简驭繁 六大森境
以简驭繁,规划容积率仅约2.6的纯粹小高住区,极致纯粹,造诣舒居之享。社区内部打造“翰林甲第六大主题森境”,递进式漫享空间,一步一景、鲜氧充盈,写意人生的诗意画卷。
平步青云/东方游园式归家体验
一路莲科/绮丽梦幻的探索乐园
琼林雅宴/会所式核心会客空间
行健不息/放松身心的活力之地
蟾宫折桂/塑造东方的疗愈花园
百草学堂/寓教于乐的认知空间
形意·流光云翼 东方美学
以国际前沿建筑语汇,塑造时尚隽永的公建化美学立面,立面形制取意“翰林学士帽”,配建low-e中空玻璃窗幕+金属铝板+白色真石漆,轻盈、通透,演绎现代东方美学的艺术坐标。
质感·奢感公区 精工筑境
匠心哲思产品细节,采用国际一线品牌,凝练居住美学的隐奢。打造精装归家大堂、品质地库、电梯间等,超配规制,奢华入微,为时代层峰营造极具品质感的居住体验。
超然产品 超四代居
洞察人群居住需求,规划仅8栋艺术美学地标。建筑面积约105-143㎡超四代著品,户型格局全明方正,动静分区,大平层级空间体验,共鸣当代家庭的心中阔境。
超享·贴心真挚的品质服务万科物业 品牌物管
万科物业成立于1990年,是万物云空间科技服务股份有限公司(简称万物云,是万科企业股份有限公司下属控股子公司)旗下品牌。作为中国物业管理行业的领跑者,“社区、商企、城市空间服务”三驾马车齐驱,以上市物管之专业,让更多用户体验物业服务之美好。
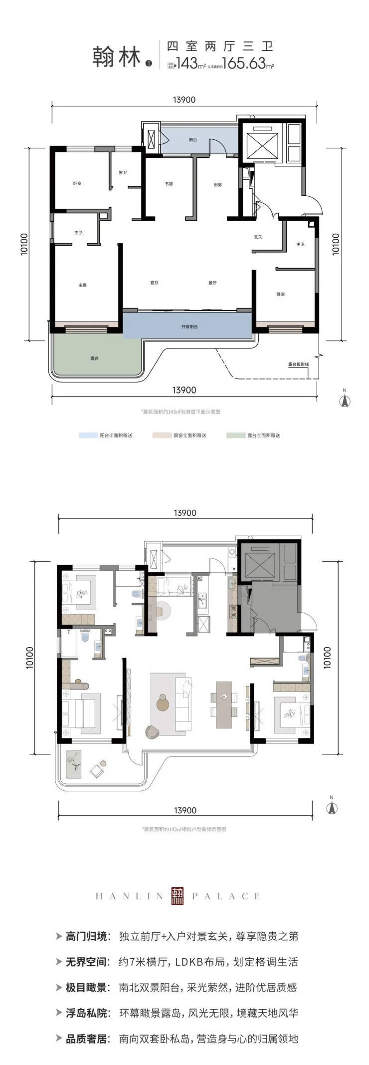
翰林府户型鉴赏
【翰林府】售楼处TEL:029-68866626【售楼中心】
了解最新优惠折扣价格——请拨打售楼处
声明:本文由入驻焦点开放平台的作者撰写,除焦点官方账号外,观点仅代表作者本人,不代表焦点立场。
