西安(奥园和悦府)优缺点丨卖点分析丨人车分流丨VR看房丨容积率
扫描到手机,新闻随时看
扫一扫,用手机看文章
更加方便分享给朋友
西安「奥园和悦府」
售楼处:029-83222232(营销中心)
售楼部地址:029-83222232(致电发送详情地址)

基本信息
楼盘名称:奥园和悦府 在售
建筑类型:高层
产权年限住宅:70年
容积率住宅:3.63
绿化率:35%
规划户数:1800户
楼层状况:25F/27F/29F/31F/32F/33F
物业管理费住宅:2.1元/m²/月
车位数:4350 (地上:449 个 地下:3901个)
车位比1:2.5
楼盘特点:一房一价 绿色住宅 大型社区 人车分流 热评楼盘
参考价格:18300元/m²
物业类型:住宅
开发商:陕西江林西大健康产业集团有限公司,西安奥宏置业有限公司
区域位置:三环外- 长安区- 西沣路
楼盘地址:南三环与子午大道东南角( 西安·城市生态公园旁)
【多维交通 帷幄一城繁华】
紧邻南三环和高新绕城高速出入口,距离西高新绕城出入口1.1公里,开车仅需6分钟即可通达全城;门口子午大道连接南三环至正在修建中的外环高速,其中南三环连接高新,雁塔和曲江,是西安金腰带,通过南三环,开车12分钟即可到达距项目3.5公里的电视塔,20分钟即可到达13公里的曲江池;此外,项目门口公共交通便利,门口拥有十余条公交线路,同时双地铁环绕,正在建设的地铁8号线与待批复的地铁7号线,双线交汇于丈八东路电子城站,距离和悦府1.1公里,车行3分钟,步行15分钟,打造地上地下立体式交通网络。

【商业荟萃 执笔繁华盛景】
项目周边3公里范围内聚集高新、城南多家大型商业综合体,满足日常购物体验:
a、约28万㎡立丰城:城南大型购物中心,超市、餐饮、幼儿教育等一应俱全;
b、万达广场:高新最具人气商业综合体;
c、约16万㎡红星美凯龙:全球家居生活广场,也是红星美凯龙西沣至尊MALL;
d、约200余亩宜家荟聚中心(建设中):西北首座、全国第六座宜家荟聚中心,建成后将成为城南地标性商业建筑;
此外,项目南侧最新规划的山姆会员店、以及金地广场、杜城大型商业步行街、天地源万熙天地40万方商业即将落成,打造家门口的一站式购物圈,尽享繁华。

【名校在侧 智启璀璨未来】
小区自有配建幼儿园,北侧一墙之隔即是配建小学,东边1.2公里艺林小学、向西2公里雁塔二中、高新国际学校、西安高新第一中学、西安高新逸翠园学校等;同时,比邻项目的俊发城规划有四所小学两所中学距离和悦府一路之隔,打造从幼儿园到高中的一站式教育体系。

【医养呵护 筑梦健康人生】
项目周边医疗配套健全,周边三甲医院有521医院,西安市第八人民医院、交大一附院长安医院等,方便日常就医。

【生态盛境 演绎自然生活】
与占地1700亩的雁南公园一路之隔,一期已开放,乐享亿万负氧离子;二期规划城南图书馆、文体综合中心,公共服务区文化氤氲,宜享宜居。项目五公里范围内,高新唐城墙遗址公园、木塔寺公园、永阳公园、清凉山公园等公园环伺,拥享城南优质生态。

【城央贵脉 澎湃热势版图】
项目位于城南雁塔腹地核心地段,紧邻高新CBD,距离高新管委会1.8公里,距离锦业路CBD中心金融中心2公里,所处地环绕成南五大公园,闹中取静,更宜居。

【现房资产 奢尚稀贵臻席】
占据城南高新优质地块,尊享大西安未来发展潜力,成就城南人居新风尚,居住价值不可估量。平层现房,即买即用,美好无需等待。
【星级物业 礼遇尊崇人生】
品牌:TOP15、一级资质 ;
全面多样的日常服务 :绿植养护、安保巡逻、社区清洁、日常检修;
全方位安防配置:边界报警系统,电子巡更系统,高空抛物监控,紧急求救按钮;
社区O2O :7*24全天在线,需求3分钟响应,一站式解决业主日
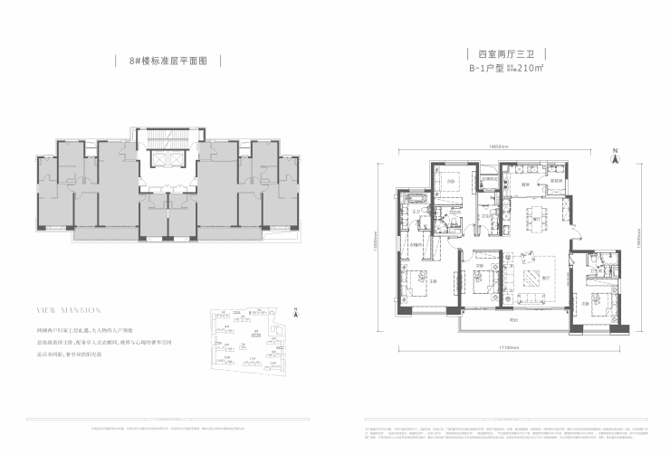
【户型赏析】
2T2-168㎡ 峯界公园宽幕大平层
四室三卫,尽享宽阔布局;
双套房设计,从容优雅生活;
南向四面采光,悦纳四时风景。


2T2-210㎡ 楼王宽幕大平层
3.2米层高,奢阔空间尺度,
4开间朝南,让清风阳光宽待生活每一秒,
270°环幕阳台,让阳光充满生活的每一处;


2T1-326㎡ 终极改善大平层
一层一户,守护至臻私密;
六室五卫,4套房,客厅开间9.1米,写意人生排场;
市面稀缺的阳台配置,
东南两面环形近30平米大阳台、210南向阳台16平米,
只算半面积,空中露台,俯仰天地之美;
第二会客厅,值得珍藏传世。


【奥园和悦府】售楼处TEL:029-83222232【售楼中心】
了解最新优惠折扣价格——请拨打售楼处
声明:本文由入驻焦点开放平台的作者撰写,除焦点官方账号外,观点仅代表作者本人,不代表焦点立场。
