2025商铺推荐【白桦林晓】→便利店→新盘特惠→户型展示→生态绿地
扫描到手机,新闻随时看
扫一扫,用手机看文章
更加方便分享给朋友
西安「白桦林晓」
售楼处:029-68866626(营销中心)
售楼部地址:029-68866626(致电发送详情地址)
在售户型图丨项目详情介绍丨剩余房源丨项目周边配套丨详细在线解答
售楼中心_欢迎来电咨询!预约尊享优惠折扣_匠心钜制恭迎品鉴!
如需了解最新房源信息_在售房源价格_请拨打上方售楼部电话!
【白桦林晓•项目规划】
项目占地:约78亩
建筑面积:约18.77万方
容积率:2.8
绿化率:35%
总户数:约1070户
产品业态:洋房/小高层/高层
【区域配套·教育篇】
项目北侧一路之隔为70亩教育规划用地,预计引进名校+办学模式
范围内已开学有经开第三小学/经开第十三小学/经开第十四小学
项目配建有约4080㎡幼儿园


【区域配套·交通篇】
双地铁围绕,为业主提供便捷出行
地铁四号线【元朔路站】距离项目约500米
地铁二号线【北苑站】距离项目约1公里

四、【区域配套·医疗篇】
项目北侧2.5公里三甲级红会医院北院区已开诊,为健康保驾护航
板块内规划有陕西中医药大学附属医院
【项目配套·架空层】
项目配建有约600㎡架空层,设置有万册图书馆/自习室/健身活力区/儿童活动区等等
【项目配套·第四代高颜】
奢享高颜社区大门
公建化立面


七、【第四代2.0户型产品】
奇偶错层产品规划
户前卫户型
高赠送,极致得房率
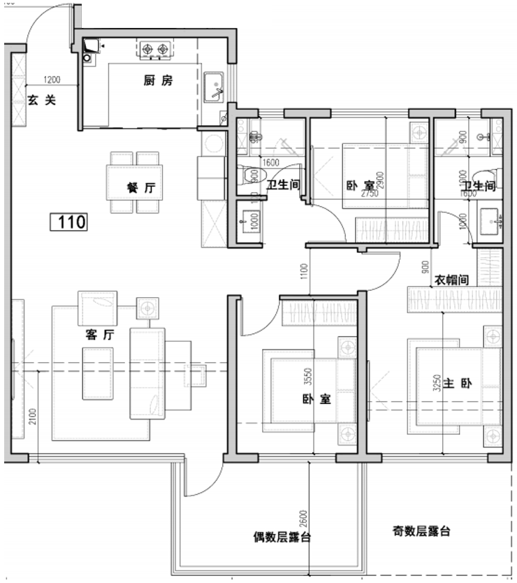
【110㎡-边户】
三室两厅两卫
南向三面宽
高赠送,高得房率

【129㎡-端厅】
四室两厅两卫
奇偶错层,露台、阳台双搭配
高赠送,高得房率

【139㎡-岛厅】
四室两厅三卫
奇偶错层,大进深露台
双套房设计
高赠送,高得房率

【白桦林晓】售楼处TEL:029-68866626【售楼中心】
了解最新优惠折扣价格——请拨打售楼处
声明:本文由入驻焦点开放平台的作者撰写,除焦点官方账号外,观点仅代表作者本人,不代表焦点立场。
