西安高新三期最新房价?中海未来之境|第四代无界人居,最新价格已出!
扫描到手机,新闻随时看
扫一扫,用手机看文章
更加方便分享给朋友
西安【中海未来之境】售楼处电话:029-68866626(营销中心)
户型图丨项目介绍丨房源丨_周边配套丨详细解答
售楼中心_欢迎来电咨询!预约尊享优惠折扣_匠心钜制恭迎品鉴!
如需了解最新房源信息_在售房源价格_请拨打上方售楼部电话!
温馨提示:看房需提前预约!
基础信息
价格 参考价27569元/㎡
产权 70年
装修情况 毛坯
占地面积 约78.58亩(52385.50㎡)
容积率 2.4
物业管理费 3.8元/㎡▪月
总建筑面积 约177654㎡
绿地率 35%
物业资质 一级
交房时间 2025年12月31日
楼栋数 总共14栋
总户数 729户
车位数量
地下1570个
生活咫尺,未来至此
举步瞳芯·超总地标集群:
紧临未来之瞳,超级企业总部建筑群,20余栋超百米摩天地标建筑,未来之瞳大剧院、歌剧厅、音乐厅、实验剧场等;
举步轨交·高效纵横繁华:
地铁12号线(规划)、S13(远期规划)、地铁6号线(西电科大南校区·未来之瞳站)
举步商业·滨水坐标主场:
高新玫瑰one(在建)、永安渠商业街区(在建)、西安兰桂坊(规划)、永安万汇中心(规划);
举步教育·毗邻优教学府:
中创区在建小学、中创区待建初中
举步公园·畅享无界自然:
约450亩未来之瞳生态公园、14公里水系,60公里绿道、中轴公园,听风公园
举步医疗·三甲护航健康:
国际医学中心、高新中医医院
超能十字,繁华极核
坐拥现在对望未来:【成章路-星虹一路】架构起瞳南板块超级十字路口,集城市级文化地标、商务地标以及高端社区、教育、医疗等资源于一体,目前正加速形成CID最好的城市界面。
一园四境,未来之境
园林景观漫游1+4+8+N
1/中央水景
4/四大美学空间:水之境、花之境、森之境、光之境
8/八大景观组团:浮岛水景、溪畔绿谷、无界会客厅、日光浴场、缪斯花园、萤火仙境、森系园、吉维尼花园
N/化路为园:以创新性化路为园的设计手法整合空间,形成整体格调统一的富氧景观
黄金三角,生活大境
生活无界,近2000㎡未来生活空间空间动静分明
无界会所:健身房、瑜伽室、对弈、台球、茶室、儿童活动区、学习区、阅读区等
无界泛会所:饱览中心景观,品茗休憩
无界架空层:打破楼间界限,绿意蔓延,社交休憩
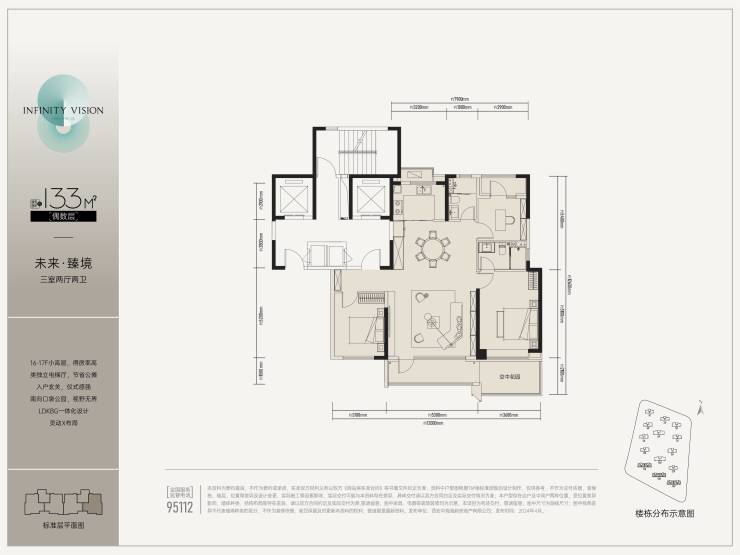
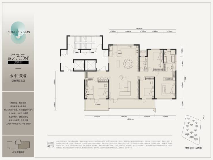
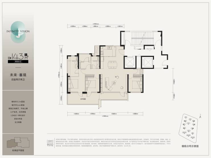
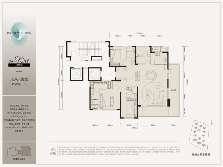
承袭户型优势,全面进阶生活
01. 南向极享面宽
02. 布局方正 舒适尺度
03. BLDKG方厅
04. 全南露台 适宜尺度
05. 类独立电梯厅节省公摊
06. 入户玄关 仪式感强
07. 灵动X格局
【中海未来之境】售 楼 处 电 话:029-68866626【售楼中心】
【中海未来之境】置业经理电话:18602959000 (微信同步)
了解最新优惠折扣价格——请拨打售楼中心电话
声明:本文由入驻焦点开放平台的作者撰写,除焦点官方账号外,观点仅代表作者本人,不代表焦点立场。
