西安招商揽阅(租售中心) —简介 —89-135㎡稀缺洋房 —户型 —电话
扫描到手机,新闻随时看
扫一扫,用手机看文章
更加方便分享给朋友
西安「招商揽阅」
售楼处:029-88777792 (营销中心)
售楼部地址:029-88777792 (致电发送详情地址)
如需了解最新房源信息_在售房源价格_请拨打上方售楼部电话
基本信息
楼盘名称:招商揽阅
产权年限住宅:70年
容积率住宅:2.5
规划户数
2606户 [查看详情]
楼盘特点:一房一价 三环外 大型社区 配套纯熟 商业街
参考价格:18232元/m²
物业类型:住宅
开发商:西安雍景嘉境房地产有限公司
区域位置:三环外- 浐灞国际港- 保税区
楼盘地址:奥体大道交大附中附小对面
悬浮绿洲四代住宅 学院派成长社区建筑面积约100-143㎡ 首开
中国·西安浐灞国际港·奥体大道中轴
占地面积:约215亩(分三期开发)
建筑面积:约35.88万㎡
楼栋构成:高层+小高+洋房
主力户型:建面约100-169㎡
容积率:约2.5
绿化率:约35%
开发商:招商蛇口
招商揽阅是招商继百万方大城招商城市主场后,在浐灞国际港打造的第二座百亩人居大城。规划了高层、小高、洋房多款形态产品,并引入了奇偶错层挑空露台,构筑招商在港务区的首个“第四代住宅”产品。
招商揽阅:项目在港务区,奥体大道与秦汉大道交汇处,交大学校路西
(1)大西安东部新中心 东部双向开放引领区
⻄安东拓主战场|国际⽂化交流轴核心承载区 | 东部双向开放引领区 | 国际门户枢纽城市
(2)大西安物流中心 世界一流内陆港
西安内陆改革开放高地排头兵、主力军 | 陕西自贸区核心板块 | 建设对外大通道重要平台
中欧班列集结中心 | 一带一路跨境电商综试区
(3)大西安东部产业中心 500强总部林立
东北-西南两极化产业发展 | 360余家外贸企业 | 300余家物流企业 | 约200家名企业入驻
华润、电建、中铁、中粮、中冶、招商10⼤央企区域总部 | 京东千亿级产业集群
周边配套:
教育 :附近有项目一路之隔交大附中附小,并且项目自带幼儿园,可以实现全龄教育
医疗配套:附近有三甲综合医院—西安交大一附院国际陆港医院、国家健康养老示范区—前海幸福公馆、养老公寓、专家公寓、康疗公寓为一体的——前海健康城、区域生活服务中心等。
交通配套:附近有 地铁三号线;
商业配套:附近有 社区商业街,购物集市,教培中心,健身房,泳池;三公里商圈涵盖王府井百货,华润万象城,中粮大悦城
娱乐配套: 附近有华夏文旅度假区、丝路创意梦工厂、融创冰雪世界、 奥体中心,长安乐,长安书院
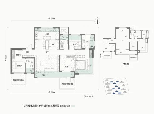
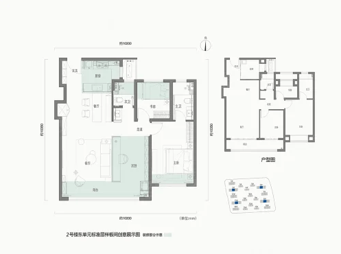
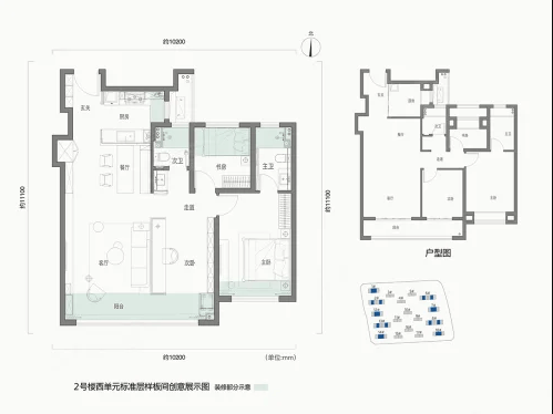
在售户型:
4室2厅2卫1厨, 128平米

3室2厅2卫1厨, 103平米

4室2厅3卫1厨, 143平米

3室2厅2卫1厨, 101平米

【招商揽阅】售楼处TEL:029-88777792 【售楼中心】
了解最新优惠折扣价格——请拨打售楼处
声明:本文由入驻焦点开放平台的作者撰写,除焦点官方账号外,观点仅代表作者本人,不代表焦点立场。
