西安大华·锦绣年华(毛坯)▁绿化率▁轨交房▁特价房源▁品牌开发商
扫描到手机,新闻随时看
扫一扫,用手机看文章
更加方便分享给朋友
西安「大华·锦绣年华」
售楼处:029-68866626(营销中心)
售楼部地址:029-68866626(致电发送详情地址)
基本信息
楼盘名称:大华锦绣年华
规划户数:928户
车位数1601
楼盘特点:三环外 品牌开发商 轨交房 学校 公园
物业类型:住宅
开发商:大华集团西安华鑫置业有限公司
区域位置:三环外- 航天基地- 航天基地
楼盘地址:雁岭路与星苔路交汇东北角
01 三纵三横路网
航天大道、东长安街、航天南路三大横向主干道;航天东路(直达曲江)、神州四路、雁塔南路三大纵向主干道,紧邻韦曲南高速出入口,快速联通高新、曲江。
02 双线地铁
东长安街、航天东路等主干道环伺;距地铁15号线韩家湾站(预计2025年通车),近邻地铁4号线航天东路站.
03 商圌环绕
自建3.1万方商业体,近距离星旋广场、佰邻街、壹街区、航天城中心广场、创想中心、星座广场等;规划龙湖创意天街、四海唐乐街、揽月坊、里坊park等潮尚商业体;多元商业集群效应,聚合航天城崭新封面商圈.
04 全区绿地率约43%
05 优教云集
自建15班公办幼儿园,规划中学;项目周边航天第二小学、航天第四小学,航天城第十学校(九年一贯制),航天一中、航天二中及航天交大菁英学校(12年一站式教育).
06 医疗配套
锦绣尊系首映改善造城新样本
2024年,大华锦绣尊系首入西安,以高端序列作品择址观,落子航天新城产业核芯高地,敬献都会升级迭代巨著“大华·锦绣年华”,撰述西安改善造城史。242亩规划体量,15班幼儿园、中学(代建),规划约3.1万方商服配套。
全维美好生活圈推动城巿焕新生长
大华·锦绣年华从立项之初,即扎根城市发展的长期价值,以十字街区设计成片开发,推动城市焕新成长,大城有机串联街角公园、街心广场、幼儿园、海派风情漫步商街等配套,构建全维美好生活圈,让城市界面繁华似锦。
海派精致住区美学归心之境
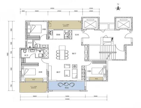
户型展示:




【大华·锦绣年华】售楼处TEL:029-68866626【售楼中心】
了解最新优惠折扣价格——请拨打售楼处
声明:本文由入驻焦点开放平台的作者撰写,除焦点官方账号外,观点仅代表作者本人,不代表焦点立场。
