西安中国铁建西派逸园怎么样?灞河畔·学府芯·主城力作,最新推出10套特价房
扫描到手机,新闻随时看
扫一扫,用手机看文章
更加方便分享给朋友
西安【中国铁建西派逸园】售楼处电话:029-68866626(营销中心)
户型图丨项目介绍丨房源丨_周边配套丨详细解答
售楼中心_欢迎来电咨询!预约尊享优惠折扣_匠心钜制恭迎品鉴!
如需了解最新房源信息_在售房源价格_请拨打上方售楼部电话!
温馨提示:看房需提前预约!
项目概况
项目名称:中国铁建·西派逸园
建筑类型:高层、小高层
楼层总高:17层、23层、26层
装修标准:毛坯
容积率:2.5
绿化率:35.16%
面积:102㎡、120㎡、132㎡、143㎡、168㎡、顶跃
车位配比:1:1.57
交付时间:2025年6月底前
中国铁建西派逸园项目建设用地面积约100.92亩,容积率仅约为2.5,规划16栋住宅,配套1所幼儿园、1栋商业和邻里中心。
小区人车分流,动线清晰,安全安静。1—11号楼为17层小高层产品,12—16号楼为23-26层高层产品。
紧邻主城三环,东邻灞河岸线景观,近邻西安滨河学校,周边“三地铁”、“三商业综合体”、唐都医院等成熟资源荟萃,归家即是繁华。
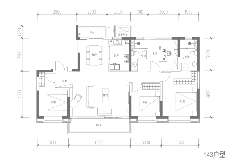
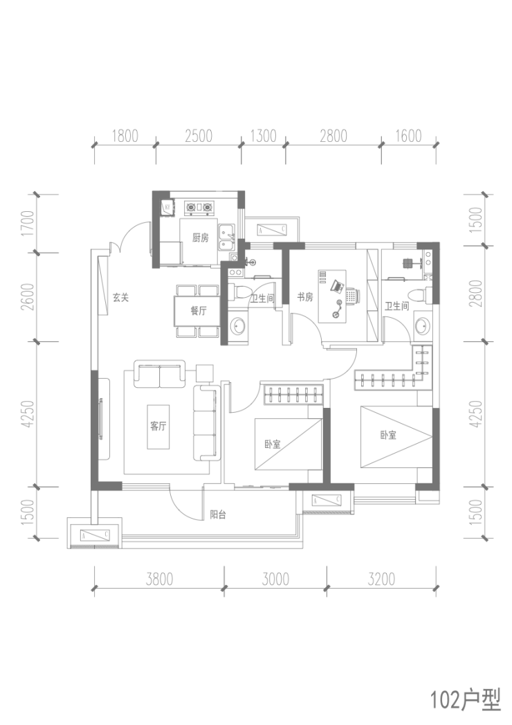
特价房户型
西派逸园推出10套特价房,建面102-168㎡全龄户型,满足刚改、改善、高端全龄置业需求。
打造了“西派系”非常少见的小户型产品,其中132平米户型设计独特,三室两厅两卫,户型方正、南北通透且全明。
南北双阳台,生活和观景互不影响。客厅、餐厅、厨房、阳台一体化空间,超大面积,配合上3.1米的层高,通风采光效果更佳,居住舒适度更高。




周边资源
西派逸园周边资源丰富,便利生活出行。紧邻“三地铁”、“三商业综合体”、唐都医院等,交通便利,医疗教育资源齐全。
东邻灞河岸线景观,环境优美,氛围宁静。同时,西安滨河学校近在咫尺,为孩子提供优质教育资源。归家即是繁华,享受便捷舒适的生活。
筑起健康防线,有“医”靠才能更安心,唐都医院、西安医学院第二附属医院等三级甲等医院在侧,更有西安市灞桥区人民医院等各级医疗机构,24小时护航家人健康。
脚步丈量繁华,一站式精彩近在左右,举步即达华阳城、华东购物广场、灞柳风情街等区域商业中心,尽享潮流风尚;近距万达广场(规划)、大型商业中心(规划),自建社区配套商业,满足日常消费所需。
总结
中国铁建西派逸园项目以其独特的小户型设计和丰富的周边资源,吸引了广大购房者的关注。紧邻主城繁华商圈,却又能享受安静舒适的居住环境,是理想的居家选择。带着家人,来西派逸园感受繁华之中的安静港湾。
【中国铁建西派逸园】售楼处电话:029-68866626【售楼中心】
【中国铁建西派逸园】置业经理电话:18602959000(微信同步)
了解最新优惠折扣价格——请拨打售楼中心电话
声明:本文由入驻焦点开放平台的作者撰写,除焦点官方账号外,观点仅代表作者本人,不代表焦点立场。
