【西安商铺】绿城桂月云翠—新盘在售—地铁沿线—医院—商业街
扫描到手机,新闻随时看
扫一扫,用手机看文章
更加方便分享给朋友
西安「绿城桂月云翠」
服务热线:029-88777723(咨询中心)
项目地址:029-88777723(致电发送详情地址)
在售户型图丨项目详情介绍丨剩余房源丨项目周边配套丨详细在线解答
绿化率: 35%
容积率: 2.5
占地面积: 64.921亩
建筑面积: 5.3万㎡
总户数: 835户
车位比: 1:1.4
物业费: 2.51元/m²/月
车位: 1146个
物业公司: 绿城物业服务集团有限公司
售楼处地址: 浐灞国际港林泓路与奥体大道交会处
项目特色: 地铁沿线 教育资源 改善好房

绿城中国立高阶生活
绿城中国,理想生活综合服务商,29载美好深耕,坚持走“全品质、高质量、可持续”发展道路。连续19年荣获“中国房地产百强企业综合实力TOP10,连续13年在“中国城市居民居住满意度”调查中荣获佳绩,连续11年荣获中国房地产顾客满意度领先品牌”
七载深耕桂冠荣耀加冕
绿城与西安偕行7载,29盘并耀红动一城,连续2年登顶西安房企销售额、销售面积双料TOP1。
2017年绿城首入西安巨制千亩大盘全运村,五次斩获奥体成交金额,成交套数、成交面积三冠王,实力加冕桂冠荣耀。
2024年桂冠全维升级之作,于奥体价值金线之上点晴“都市的翡翠”
七载深耕桂冠荣耀加冕
屡次创下“千人摇号”市场热度
千亩大盘之势标定奥体繁华之芯
绿城西安全运村8566户提前交付
连续三年稳居西安城市居民居住满意度TOP1
五年稳居港务区房企业绩TOP1
时代再后璀璨城市未来
2024年浐灞国际港成立,国策带动之下双区合并,优势互补、配套共建引领城市价值跃升,当前体量扩容、人口聚集,已然跃居西安第三大开发区。以奥体三中心为核、总部集群势成、地标聚集的璀璨奥体,成为东部新中心上的一颗时代翡翠
西安在走向国际化的时代背景下,浐灞国际港正式成为西安城市的东部新中心,承担着扩大对内对外开放、打造内陆改革开放高地的战略角色,发挥着北跨发展的战略支点作用。
交通方面:绿城桂月云翠位于林泓路与奥体大道交会处。地铁3号线,在建中的10号线,双地铁坐镇,对于通勤一族而言,未来多线换乘,可以高效通达;
商业方面:绿城桂月云翠位于奥体板块以北,区域内商业配套也在快速完善中,据悉,板块内的王府井购物综合体、水晶汇溪广场、中粮大悦广场等大型商业预计今年开业。
教育方面:项目东侧一路之隔是正在建设中的交大附中陆港第四学校,设小学48个教学班,初中48个教学班。据悉,该学校将于2025年建成投用。此外,周边还有2023年已经投入使用的西安国际港务区陆港第七小学。(注:孩子具体能上哪所学校,需要在交房后由政府部门划分)。
桂冠致新呈映高阶生活
2024桂冠绿城创新营造全维改善新作,翡玉灵感琢萃产品,高阶呈映超2万方私属实景生活服务空间及下沉庭院会所,超前预演美好生活。东方宫制山水园林,纯粹2T2小高层,可覆土种植的四代住宅空中露台,引领奥体新核生活方式再升级。
翡月之门精质东方门庭
盛唐宫苑飞檐为灵感,约36米巨幅恢弘屋檐,7.9米挑高门厅,融合酒店式落客前场、高门台基,多重水境精奢石材与名贵树种,塑造层层叠翠归家仪式,再现名门世家威仪。
超2万方实景生活服务空间及下沉庭院会所。下沉会所庭院以“雅”为精神内核,配置健身房、瑜伽、茶室、棋牌室、儿童乐园等复合空间,邻里美好交互地下归家门厅升级为星幕光厅。
东方宫制山水园林,纯粹2梯2户小高层,可覆土种植的四代住宅空中露台。约36米屋檐,7.9米挑高门厅,融合酒店式落客前场、高门台基,多重水境、高端石材与名贵树种,塑造层层叠翠归家仪式。
户型鉴赏
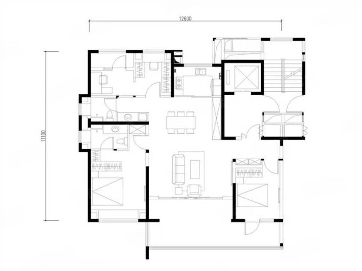
134平奇数4室2厅2卫

134平偶数4室2厅2卫
120平偶数3室2厅2卫
109平偶数3室2厅2卫
【绿城桂月云翠】服务热线TEL:029-88777723【咨询中心】
了解最新优惠折扣价格——请拨打服务热线
声明:本文由入驻焦点开放平台的作者撰写,除焦点官方账号外,观点仅代表作者本人,不代表焦点立场。
