2024年西安高新在售楼盘领航云熙怎么样?项目最新户型?售楼部电话?
扫描到手机,新闻随时看
扫一扫,用手机看文章
更加方便分享给朋友
西安【领航云熙】售楼处电话:029-68866626(营销中心)
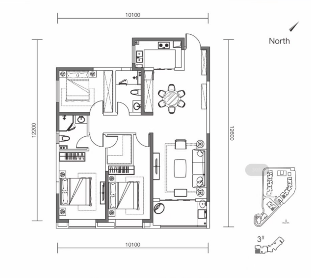
户型图丨项目介绍丨房源丨_周边配套丨详细解答
售楼中心_欢迎来电咨询!预约尊享优惠折扣_匠心钜制恭迎品鉴!
如需了解最新房源信息_在售房源价格_请拨打上方售楼部电话!
温馨提示:看房需提前预约!

项目简介
户型面积:90-140m
产权:70年
交付标准:毛坯交付
建筑类型:小高层、高层
【地铁线路】:3号线丈八北路站直线距离400米;8号线延平门站直线距离800米;5号线汉城南路站1.3km
【开发商】:西安茂順置业有限公司
【在售面积】:2号楼:89(2室)117(3室)141㎡ (4室)3号楼:138 (4室)141(3室)
3号楼少量房源
【在售价位】:19000左右
【容积率】:3
【绿化率】:30.12
【 公摊 】:22%左右
【 总高 】 2号楼高层27 34层 3号楼小高 14-17-22
【 梯户比】:2号楼一、二单元2梯4户,三单元2梯5户
【物业公司】:西安领航益众物业服务有限公司
【 物业费 】:2.2元
【 车位比 】:1:0.92
【交付标准】:毛坯
【交房时间】:4号楼24年底 2.3号楼25.6.30
【产权年限】:70
【 总户数 】:394
【交通配套】:3号线丈八北路站直线距离400米;8号线延平门站直线距离800米;5号线汉城南路站1.3km,833路,829路,高新2号线,高新3号线,高新5号线等

项 目 位 置
项目位于科技路与高新六路十字向北200m;项目周边商场、医疗、教育、公园等各类生活配套齐全,属于高新一期核心生活区;
高新核心-稀缺席位
七大必买理由
区位成熟 地段稀缺
领航·云熙项目位于高新成熟区域,属于高新区最早期开发区域;周边生活氛围浓郁,餐饮、商超、医院、学校、公园环伺;本项目为该区域仅存的住宅地块之一,席位稀缺性不言而喻;居住于此可享尽高新繁华生活配套,同时节省上下班通勤时间,工作之余有更多私人时间休闲娱乐,幸福感得到最大满足。

教育资源:吉的堡幼儿园,品格紫薇臻品幼儿园,莱安星座幼儿园,雁塔第九幼儿园,中华世纪城小学,高新第三十三小,高新第二小学,雁塔四小,雁塔三中等
医疗健康:西安高新医院
生活娱乐:大茂城,1.3公里唐城墙遗址公园
热销户型 市面稀缺
户型面积: 103-140㎡
功能划分:三室两厅、四室两厅
户型一:103㎡ 云峯 三室两厅一卫

户型二:116㎡ 云珀 三室两厅两卫
户型三:143㎡ 云峯 三室两厅两卫

户型四:141㎡ 云峯 四室两厅两卫
玻璃幕墙 公建化外立面
品质、细节、尊贵感拉满


立体景观设计:一环一心一带两区
项目整体的空间结构为“一环一心一带两区”,其中一环指连接项目功能分区板块的环跑健身步道,一心指分布于小区公共核心位置的具有多功能的核心景观区,一带指项目的沿街商业景观带,两大分区分别为与核心景观区相连接的儿童活动区和运动休闲区,项目的景观设计从形象展示、核心塑造、全龄康养、时尚乐活的四个角度入手,为业主定制专属的、自然的生活空间。在延续场地文化精神的基础上,发挥场所、空间的最大价值,为所在区域的居民创造一个现代、舒适、自然、时尚的精神家园。

星级酒店式入户大堂
7.7米层高,高端大气,彰显尊贵,礼成归家之仪

三大地铁线路环绕
地铁3号线:丈八北路地铁站距项目800m
地铁5号线:汉城南路地铁站距项目1.3km
地铁8号线:延平门地铁站距项目1.3km

【领航云熙】售楼处电话:029-68866626【售楼中心】
【领航云熙】置业经理电话:18602959000(微信同步)
了解最新优惠折扣价格——请拨打售楼中心电话
声明:本文由入驻焦点开放平台的作者撰写,除焦点官方账号外,观点仅代表作者本人,不代表焦点立场。
