商铺在售(招商揽阅) —商业街 —品牌房企 —大型社区 —配套纯熟

搜狐焦点榆林站 2025-10-20 10:12:00
用手机看
扫描到手机,新闻随时看

扫一扫,用手机看文章
更加方便分享给朋友

西安招商揽阅项目,由招商蛇口开发,位于三环外,拥有丰富配套和良好发展前景。

西安「招商揽阅」

售楼处:029-88777792 (营销中心)

售楼部地址:029-88777792 (致电发送详情地址)

如需了解最新房源信息_在售房源价格_请拨打上方售楼部电话

基本信息

楼盘名称:招商揽阅

产权年限住宅:70年

容积率住宅:2.5

规划户数

2606户 [查看详情]

楼盘特点:一房一价 三环外 大型社区 配套纯熟 商业街

参考价格:18232元/m²

物业类型:住宅

开发商:西安雍景嘉境房地产有限公司

区域位置:三环外- 浐灞国际港- 保税区

楼盘地址:奥体大道交大附中附小对面

(1)百年招商 与祖国共命运 同时代共发展

百年招商局,历经151载风雨洗礼,双世界500强,资产规模位居央企第一。跨越三个世纪,创立轮船招商局、唐胥铁路、南洋公学、蛇口工业区、招商银行、海上世界等时代巨著,刻写中国辉煌的印记。

(2)招商西安·美好生活营造家

招商蛇口作为“招商局集团”旗下子公司,历经43年的发展,以“中国领先的城市和园区综合开发运营服务商”为战略定位,致力于成为“美好生活承载者”。

2014年,招商蛇口携依云曲江项目首次亮相西安。百年招商与千载西安的故事,便正式拉开序幕。此后9年,招商蛇口在西安相继开发招商雍景湾、招商城市主场、招商臻观府、招商局丝路中心、招商央玺、招商臻境、招商西安序、招商雲山間、招商雲蘭、西安伊敦诺富特酒店、招商揽阅等,以对待生命成长的方式升级城市。

(4)大西安外事中心 国际会展赛事名城

西安三大中心 |西安奥体中心、西安丝路国际会议中心、会展中心

(5)大西安文化中心 国际化人文艺术高地

长安乐·无界长安|西安浐灞保利大剧院|西安宋城千古情|华夏文旅|西安热雪奇迹

(6)大西安生态绿肺 河园生态底色加持

①超级水岸:附近有灞渭三角洲 |纵览“一园两河”,揽胜灞河、渭河自然景观资源

②超级生态:附近有浐灞国家湿地公园,国家级湿地公园

③超级公园:附近有奥体中轴生态公园

奥体大道作为港务区近年来发展的黄金中轴线,集萃国际化地标集群、高奢生活资源、优渥天然的生态后花园,为西安构筑迈向世界的城市窗口。

(1)商务集群:附近有十大央企总部【中国中冶、华润、招商局、中国中铁、中电建、中石化、中粮、中外运、中远海、中铁集装箱】

(2)生态集群:附近有灞河三角洲、奥体中央公园、浐灞国际湿地公园、全运湖、丝路国际体育文化交流培训基地、灞河东路生态廊道、陆港纪念公园

(3)地标集群:附近有西安奥体中心、西安国际会展中心、西安国际会议中心、长安乐、长安书院、元朔大桥、长安云、长安塔

(4)商业集群:附近有华润万象城(在建中)、水晶汇溪广场、王府井购物中心(在建中)、中粮·大悦广场(在建中)

(5)名校集群:附近有铁一中陆港中学/小学;陕师大陆港小学、陕师大附中陆港初级中学、高新一中陆港小学、高新一中陆港初级中学、西安国际港务区陆港第七小学、西安国际港务区陆港第四学校(规划中)、陆港第五幼儿园、陆港第六幼儿园、西安国际港务区陆港第九幼儿园(免责声明:本资料中所展示的项目周边学校,仅作为项目周边学校介绍,不作为上学承诺,具体入学条件、入学资格等以教育部门和学校要求为准)

在售户型:

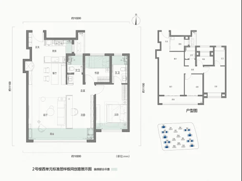
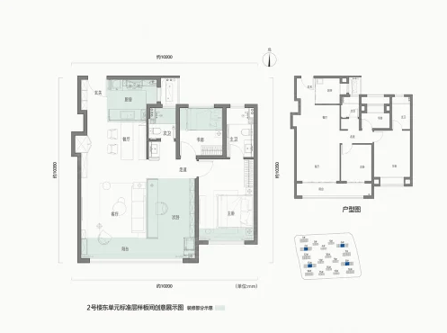
4室2厅2卫1厨, 128平米

3室2厅2卫1厨, 103平米

4室2厅3卫1厨, 143平米

3室2厅2卫1厨, 101平米

【招商揽阅】售楼处TEL:029-88777792 【售楼中心】

了解最新优惠折扣价格——请拨打售楼处

声明:本文由入驻焦点开放平台的作者撰写,除焦点官方账号外,观点仅代表作者本人,不代表焦点立场。