商铺在售(招商揽阅) — 环境 —地铁沿线 —学校 —价格
扫描到手机,新闻随时看
扫一扫,用手机看文章
更加方便分享给朋友
西安「招商揽阅」
售楼处:029-88777792 (营销中心)
售楼部地址:029-88777792 (致电发送详情地址)
在售户型图丨项目详情介绍丨剩余房源丨项目周边配套丨详细在线解答
基本信息
楼盘名称:招商揽阅
产权年限住宅:70年
容积率住宅:2.5
规划户数
2606户 [查看详情]
楼盘特点:一房一价 三环外 大型社区 配套纯熟 商业街
参考价格:18232元/m²
物业类型:住宅
开发商:西安雍景嘉境房地产有限公司
区域位置:三环外- 浐灞国际港- 保税区
楼盘地址:奥体大道交大附中附小对面
悬浮绿洲四代住宅 学院派成长社区建筑面积约100-143㎡ 首开
中国·西安浐灞国际港·奥体大道中轴
占地面积:约215亩(分三期开发)
建筑面积:约35.88万㎡
楼栋构成:高层+小高+洋房
主力户型:建面约100-169㎡
容积率:约2.5
绿化率:约35%
开发商:招商蛇口
招商揽阅是招商继百万方大城招商城市主场后,在浐灞国际港打造的第二座百亩人居大城。规划了高层、小高、洋房多款形态产品,并引入了奇偶错层挑空露台,构筑招商在港务区的首个“第四代住宅”产品。
招商揽阅:项目在港务区,奥体大道与秦汉大道交汇处,交大学校路西
①匠心营造 筑牢交付力“护城河”
独创828工业化体系,做到施工过程中“层层责任化”,供料、施工、验收全过程可查、可验、可追、可信,打造全周期质量监控体系,联合优质供应商打造了名为《磐石计划》,由全业务供应商组成品质联盟,从源头上为品质保驾护航。2022年底三区三盘提前交付,超强兑现力见证招商速度。
②场景专家 不断作答生活理想
从《answer大会》洞察行业发展新风向到《场景新提案》以未来场景向生活全新作答,从《向生活 比个心》的深情告白计划,到《谊刻一席谈》不断链接美学生活与人文故事。招商蛇口始终以生活的营造与坚守读懂西安,共鸣一座城市的雄心探索
③社群共创 美好+N全新服务体系
招商荟,客户关系全面提升,美好+N全新服务体系打造,以童子军计划、老年大学招募、招商体育季、家庭日、青年动力营五大专属IP,营造全龄段、全时段、全周期活动。
(6)大西安生态绿肺 河园生态底色加持
①超级水岸:附近有灞渭三角洲 |纵览“一园两河”,揽胜灞河、渭河自然景观资源
②超级生态:附近有浐灞国家湿地公园,国家级湿地公园
③超级公园:附近有奥体中轴生态公园
奥体大道作为港务区近年来发展的黄金中轴线,集萃国际化地标集群、高奢生活资源、优渥天然的生态后花园,为西安构筑迈向世界的城市窗口。
(1)商务集群:附近有十大央企总部【中国中冶、华润、招商局、中国中铁、中电建、中石化、中粮、中外运、中远海、中铁集装箱】
(2)生态集群:附近有灞河三角洲、奥体中央公园、浐灞国际湿地公园、全运湖、丝路国际体育文化交流培训基地、灞河东路生态廊道、陆港纪念公园
(3)地标集群:附近有西安奥体中心、西安国际会展中心、西安国际会议中心、长安乐、长安书院、元朔大桥、长安云、长安塔
(4)商业集群:附近有华润万象城(在建中)、水晶汇溪广场、王府井购物中心(在建中)、中粮·大悦广场(在建中)
(5)名校集群:附近有铁一中陆港中学/小学;陕师大陆港小学、陕师大附中陆港初级中学、高新一中陆港小学、高新一中陆港初级中学、西安国际港务区陆港第七小学、西安国际港务区陆港第四学校(规划中)、陆港第五幼儿园、陆港第六幼儿园、西安国际港务区陆港第九幼儿园(免责声明:本资料中所展示的项目周边学校,仅作为项目周边学校介绍,不作为上学承诺,具体入学条件、入学资格等以教育部门和学校要求为准)
在售户型:
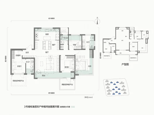
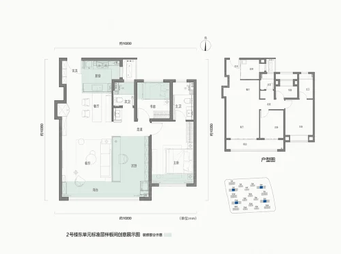
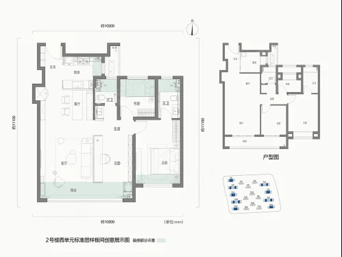
4室2厅2卫1厨, 128平米

3室2厅2卫1厨, 103平米

4室2厅3卫1厨, 143平米

3室2厅2卫1厨, 101平米

【招商揽阅】售楼处TEL:029-88777792 【售楼中心】
了解最新优惠折扣价格——请拨打售楼处
声明:本文由入驻焦点开放平台的作者撰写,除焦点官方账号外,观点仅代表作者本人,不代表焦点立场。
