(营销中心)西安『天朗云熙』售楼处电话 | 营销地址 | 楼盘24小时电话
扫描到手机,新闻随时看
扫一扫,用手机看文章
更加方便分享给朋友
【天朗云熙】售楼处电话:029-68866626
【天朗云熙】置业经理电话:18602959000 (微信同步)
【绝不收取任何费用】请提前1小时预约看房,以免给你带来不好的看房体验

项目所在的位置正好处于大西安古都文化传承轴和田园生态带的交汇处,也是“北跨”战略的核心聚集地,未来将是城市北部的新中心。

【天朗云熙项目详情】
开发商:西安天朗伟业
项目名称:天朗云熙
建筑标准:西咸新区A类建筑标准
建筑面积:488261.3㎡
容积率:2.5
绿化率:35%
楼栋数:33栋
总户数:2836户
车位数:3000个
层高:约3.15m
项目车位比:1:1.6
面积区间:88㎡-160㎡
物业管理费:2.5元/㎡·月
物业公司:西安天朗物业管理有限公司
交付标准:精装交付
【天朗云熙项目区位】
项目地理交通便捷,向东为原点家居城板块,并直通高陵马家湾;向北跨桥即到崇文塔板块,板块向北向西辐射泾河新城诸多产业园区;向西2km左右即可到达乐华城板块,近享休闲娱乐与黄冈教育;向南过正阳大道,可快速通达西安主城区。

【天朗云熙项目配套】

【天朗云熙户型介绍】
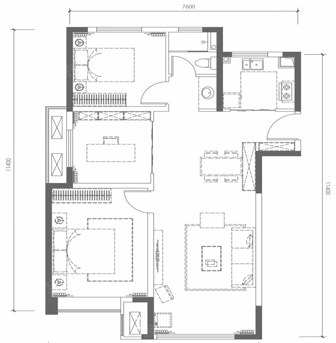
A户型:2室2厅1卫1厨, 建面88.00㎡:

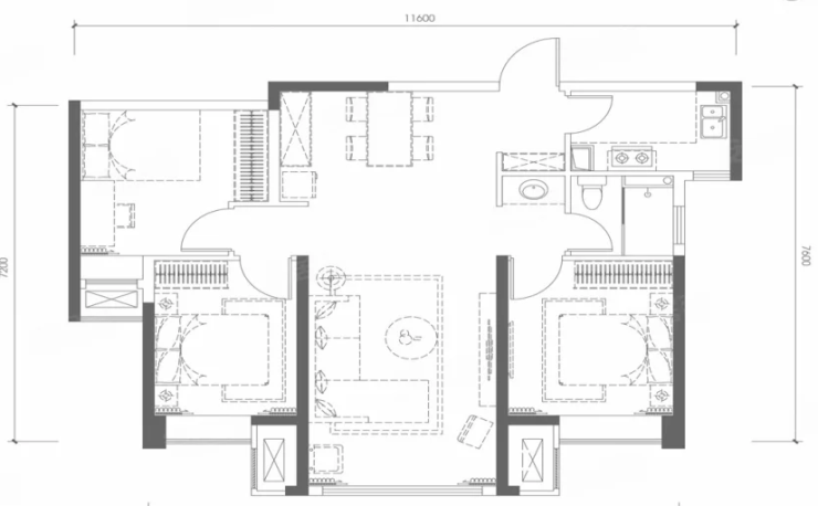
B户型:3室2厅1卫1厨, 建面96.00㎡:

C户型:3室2厅1卫1厨, 建面107.00㎡:

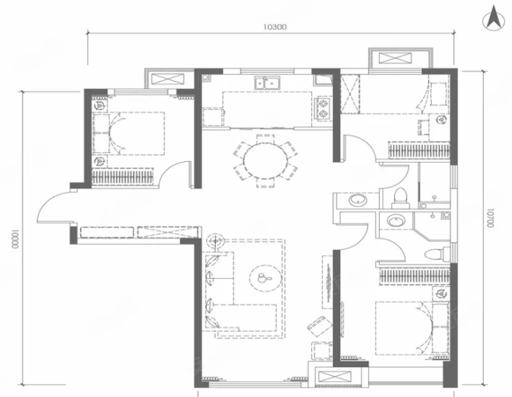
D户型:3室2厅2卫1厨, 建面114.00㎡:

【天朗云熙】售楼处电话:029-68866626
【天朗云熙】置业经理电话:18602959000 (微信同步)
【绝不收取任何费用】请提前1小时预约看房,以免给你带来不好的看房体验
声明:本文由入驻焦点开放平台的作者撰写,除焦点官方账号外,观点仅代表作者本人,不代表焦点立场。
