2025租售中心,南海高芯悦澜—二至三环—毛坯—交房时间—建筑面积
扫描到手机,新闻随时看
扫一扫,用手机看文章
更加方便分享给朋友
西安「南海高芯悦澜」
服务热线:029-88777792(咨询中心)
项目地址:029-88777792(致电发送详情地址)
在售户型图丨项目详情介绍丨剩余房源丨项目周边配套丨详细在线解答

基础信息:
开发商:陕西天基房地产开发有限公司
项目名称:南海高芯悦澜
项目占地:57480㎡
建筑面积:247666㎡
绿化率:35%
容积率:4.29
总户数:1491户
车位数:2740个
车位比:1:1.8
楼栋数:12栋(27-33层)
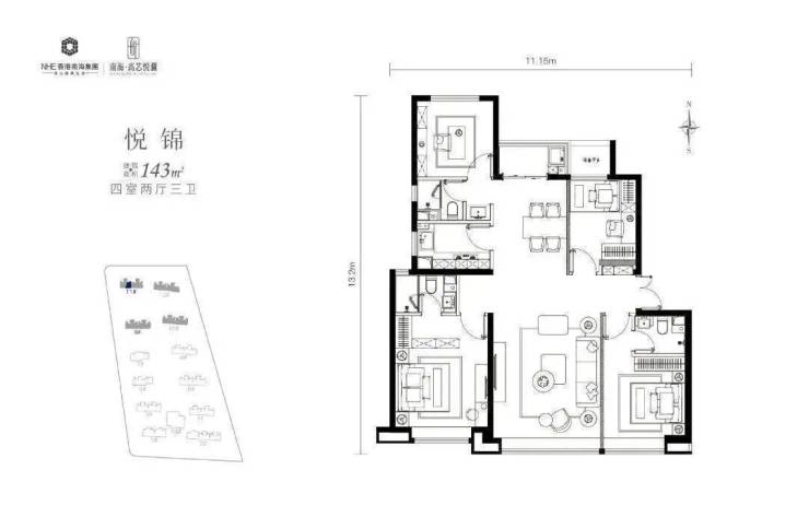
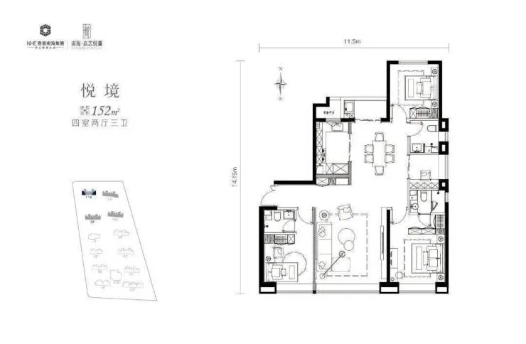
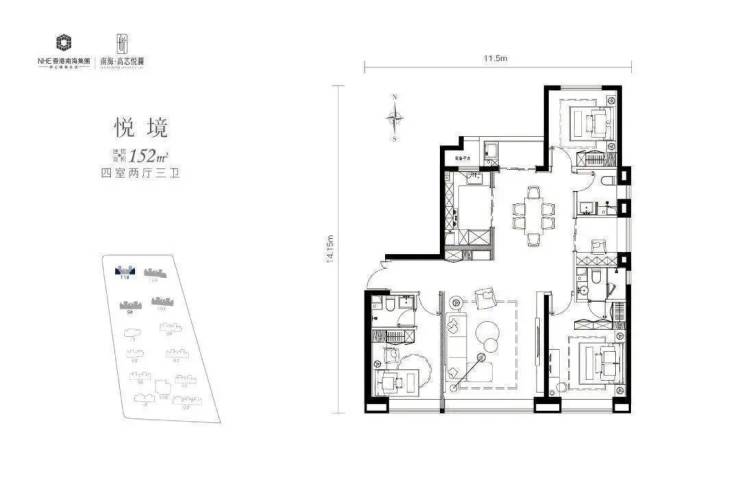
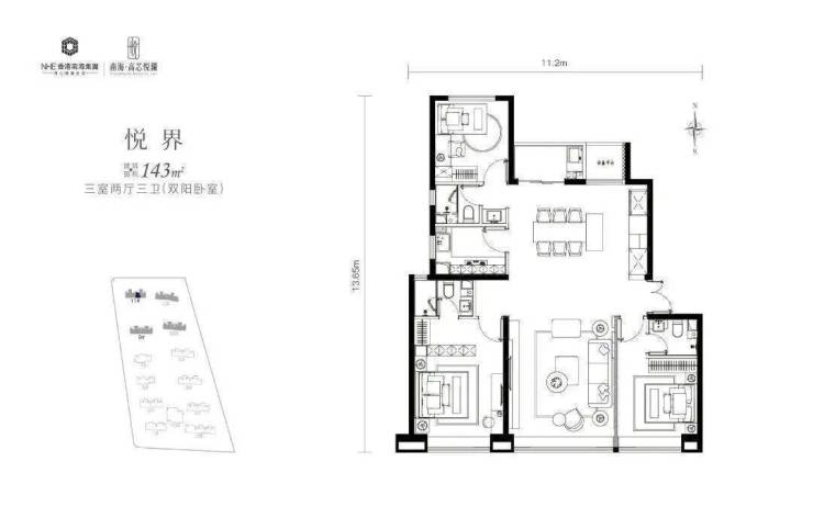
产品面积:143㎡/152㎡/178㎡(2梯2户/2梯3户)
物业公司:西安龙湖物业服务有限公司
【丝路软件城·执掌西安未来】
项目位于雁塔区科技西路,丝路软件城板块。该板块由软件新城和鱼化寨板块合并而成,占地面积约24.42平方公里,聚集了西安90%以上的软件企业,华为、阿里巴巴、三星等世界500强企业30余家。
同时,丝路软件城整体定位为“万亿智慧产业高地,未来幸福生活家园”,打造“一城三核四轴””的空间格局,按照“一年全面开、三年出形象、五年精治理”的建设时序,争取三年内完成丝路软件城片区的规划建设,补全高新都市创新片区建设的最后一块拼图。
【丰盈配套·臻享醇熟美好生活】
项目在寸土寸金的主城区,周边配套成熟优越,更是紧邻高新一期核心,是不可多得的黄金地段。
【海派美学·定义都会新奢典范】
项目融合海派美学理念,择址丝路软件城臻稀之地,将创新、包容、多元的建筑元素与都会精英的生活态度,相融于滨水之畔,演绎灵动智慧的都会艺术生活。项目占地约86亩,地上建面约24万方;规划12栋高层,首期产品面积约143-178㎡,自带约12000㎡商业,自建一所9班制幼儿园。

【大简至奢·公建化美学立面】
基于项目海派文化基底,采用公建化立面打造模式,配合大面积玻璃幕窗,选用深灰搭配白色,形成独有的简洁大气的建筑风格。
【中魂西技·五重归家礼序】
项目依河而建,取自兰花形园林形制,以上善若水的君子境界,打造立体多维园林景观系统,塑造五重归家礼序。
一重礼——名门秩序:
归家门庭、尊崇礼序
二重礼——迎宾之境:
林荫坡道、引导水景、入园体验

三重礼——邻里之美:
室外会客、中庭花园、架空层(泛会所)

四重礼——自然之礼:
五大宅间花园、五大主题景观区

五重礼——归家之悦:
双精奢入户大堂

【户型赏析】
【南海高芯悦澜】服务热线TEL:029-88777792【咨询中心】
了解最新优惠折扣价格——请拨打服务热线
声明:本文由入驻焦点开放平台的作者撰写,除焦点官方账号外,观点仅代表作者本人,不代表焦点立场。
