秦汉新城华清园文津观澜最新房价,项目怎么样?清华附中秦汉学校一路之隔

搜狐焦点榆林站 2024-05-12 11:46:49
用手机看
扫描到手机,新闻随时看

扫一扫,用手机看文章
更加方便分享给朋友

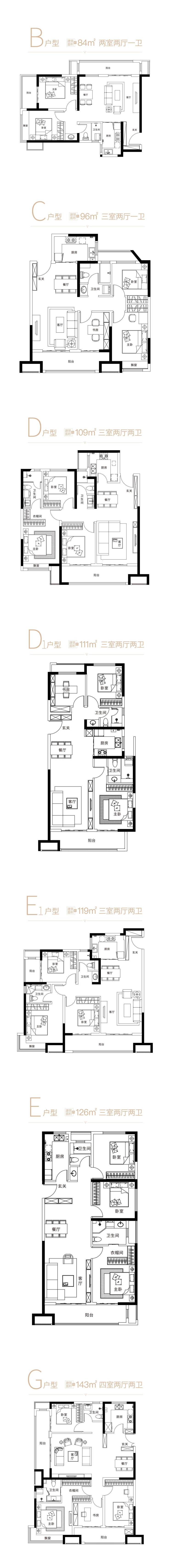
华清园文津观澜位于西安秦汉新城,总建筑面积约16.1万平米,绿地率约30%,提供约84-143平米的房源,采用小高层与洋房设计,楼高约9-12层,物业类型为万科物业,开发商为陕西佳莲房地产开发有限公司。

西安【华清园文津观澜】售楼处电话:029-68866626(营销中心)

户型图丨项目介绍丨房源丨_周边配套丨详细解答

售楼中心_欢迎来电咨询!预约尊享优惠折扣_匠心钜制恭迎品鉴!

如需了解最新房源信息_在售房源价格_请拨打上方售楼部电话!

温馨提示:看房需提前预约!

项目概况:

华清园·文津观澜

▪建筑面积:约16.1万㎡

▪绿地率 :约30%

▪楼 高:9-12层

▪物业类型:小高层&洋房

▪产品面积:约84-143㎡

▪梯 户 比 :2T4、2T5

▪物业公司:万科物业

▪开 发 商 :陕西佳莲房地产开发有限公司

打造约78万㎡岸系书韵大城,位处西安秦汉新城渭河北岸兰池大道品质人居轴芯之上【不限购】与清华附中秦汉学校一路之隔,近邻后宰门小学秦汉分校。

最新动态:华清园文津观澜3期在售21#、22#、25#、27#楼。项目参考均价约13300元/㎡。在售面积109-143㎡,25年7月交房,毛坯交付。22#、25#楼均为12层小高层,2梯4户、2梯5户设计。

纵揽区域内优质资源,重塑悦居生活范本

教育

秦汉新城贯彻“名校+”战略,引入100%本科上线率的清华附中秦汉学校、后宰门小学秦汉分校,北京大学雄厚实力的燕园科教创新谷项目,等名校资源,助推秦汉教育体系再升级

交通

秦汉新城作为“北跨”重点区域,是大西安未来的黄金交通枢纽。地铁14号线已通车运营,可实现与2/3/4号线无缝畅连构建半小时生活圈。高速路网、西安咸阳国际机场、西安高铁站,打造多维度立体交通网络,可快速抵达灵宝、三门峡、甘肃等省市。

生态

拥河“北跨”,跨渭发展,渭河将成为西安的城中河,位处“北跨”战略门户的秦汉新城。将成为大西安未来城市核芯有“生态田园都市”之称的秦汉新城,区域绿化率高达约70%,拥享数公里渭河生态景观带,大秦文明园等生态绿地。

医疗

在颐养健康领域,四所三甲医院环绕,空军军医大学秦汉校区、西安红会国际医院,西安儿童医院经开院区(驾车约11分钟)陕西省人民医院西咸院区(驾车约13分钟)。

项目展示

园林规制“两轴四组团”社区园林景观

构筑集生态、人文于一体的当代都市文教住区

匠心铸造建筑面积约84-143㎡河居阔景小高层

主推户型

【华清园文津观澜】售楼处电话:029-68866626【售楼中心】

【华清园文津观澜】置业经理电话:18602959000(微信同步)

了解最新优惠折扣价格——请拨打售楼中心电话

声明:本文由入驻焦点开放平台的作者撰写,除焦点官方账号外,观点仅代表作者本人,不代表焦点立场。