越秀铁建樽樾(商铺推荐)—医院—装修效果图—五证齐全—绿化率

搜狐焦点榆林站 2026-01-18 15:57:00
用手机看
扫描到手机,新闻随时看

扫一扫,用手机看文章
更加方便分享给朋友

西安越秀铁建樽樾,绿化率35%,容积率2.8,由越秀地产与铁建合作开发,定位改善型住宅,服务热线029-88777792。

西安「越秀铁建樽樾」

服务热线:029-88777792(咨询中心)

项目地址:029-88777792(致电发送详情地址)

基本信息

楼盘名称:越秀铁建·樽樾

绿化率: 35%

容积率: 2.8

占地面积: 约110亩

建筑面积: 约206899㎡

总户数: 1012户

楼盘价格: 价格待定 周边房价解读

物业类型: 普通住宅

区域板块: 高新区

产权年限: 70年

项目特色: 改善好房

开发商: 西安越鼎铁鑫房地产开发有限公司

楼盘地址: 祝仁路和星桥路十字西北角位置

【品牌篇】

『 越秀&铁建 双TOP产品线』

【越秀地产】越秀地产1983年成立,深耕楼市41年,全国最早成立的房地产企业之一、中国第一代商品房的缔造者、广州规模最大龙头国企之一,以“城市地标缔造者”身份,共建广州中轴线珠江新城及天河,以“城市美好生活创领者”的使命愿景,不断打造品质标杆人居。

【中国铁建】

中国铁建股份有限公司,由中国人民解放军铁道兵发展而来,是全国最具实力、规模的特大型综合建设集团之一。

截至2023年,中国铁建位列世界500强第43位,累计荣获87项科学技术奖。中国铁建地产,实力布局京津冀、长三角、珠三角等全国45个城市,匠造245个精品项目。

连续18年跻身世界500强,全球250家最大承包商前3位,业务范围遍及全球140个国家和地区。

【产品篇】

『臻品之上 世界如我所见』

1、第四代住宅 连接未来“森活"

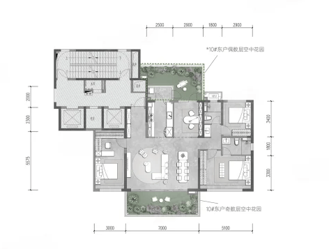
户型展示:

【越秀铁建樽樾】服务热线TEL:029-88777792【咨询中心】

了解最新优惠折扣价格——请拨打服务热线

声明:本文由入驻焦点开放平台的作者撰写,除焦点官方账号外,观点仅代表作者本人,不代表焦点立场。