中海开元壹号(商铺出售)﹎项目特色﹎实景图﹎样板间图﹎现房图片
扫描到手机,新闻随时看
扫一扫,用手机看文章
更加方便分享给朋友
西安「中海开元壹号」
售楼处:029-88777723(营销中心)
售楼部地址:029-88777723(致电发送详情地址)
在售户型图丨项目详情介绍丨剩余房源丨项目周边配套丨详细在线解答
基本信息
绿化率: 35%
容积率: 1.51
占地面积: 26532㎡
建筑面积: 62632㎡
总户数: 275
车位比: 1:2.7
物业费: 住宅:2.2元/m²/月
车位: 688 (地下:688个)
物业公司: 中海物业管理有限公司西安分公司
楼盘价格: 参考均价 22000 元/㎡ 周边房价解读
物业类型: 洋房 普通住宅
区域板块: 城北
产权年限: 70年
项目特色: 景观居所 品牌房企 公园美宅 教育资源 改善好房
开发商: 西安中海兴晟房地产有限公司
楼盘地址: 太华路与太元路交汇处东北角
主城二环内 贵隐大明宫
项目卓立大西安发展金腰带二环内曲江模式赋能的大明宫板块与约5200亩曲江大明宫国家遗址公园仅一路之隔是主城难觅其二的“闹中取静之地
周边配套:
轨交|4号线(大明宫/大明宫北),二环快速路,太华路主干道
商业|大明宫万达、四海唐人街、熙地港、大融城
医疗|交大二附院大明宫院区、西京医院、西安市中医医院
公园|一路之隔,5200亩城市中央公园
交通状况:轨交|4号线(大明宫/大明宫北),二环快速路,太华路主干道
小区配套
中海·开元壹号丨紫宸打造特色的雨水花园种植空间,结合艺术林荫,创造轻松的休闲氛围感,鸟语花香,苍翠覆盖,幽享亚马逊丛林般生活体验。
中海·开元壹号丨紫宸为满足全龄段审美与趣味,在楼宇之间设计“休闲花园、运动花园、康体花园、嬉戏花园、科普花园、独处花园”六大宅家花园,一园一景,一园一趣。
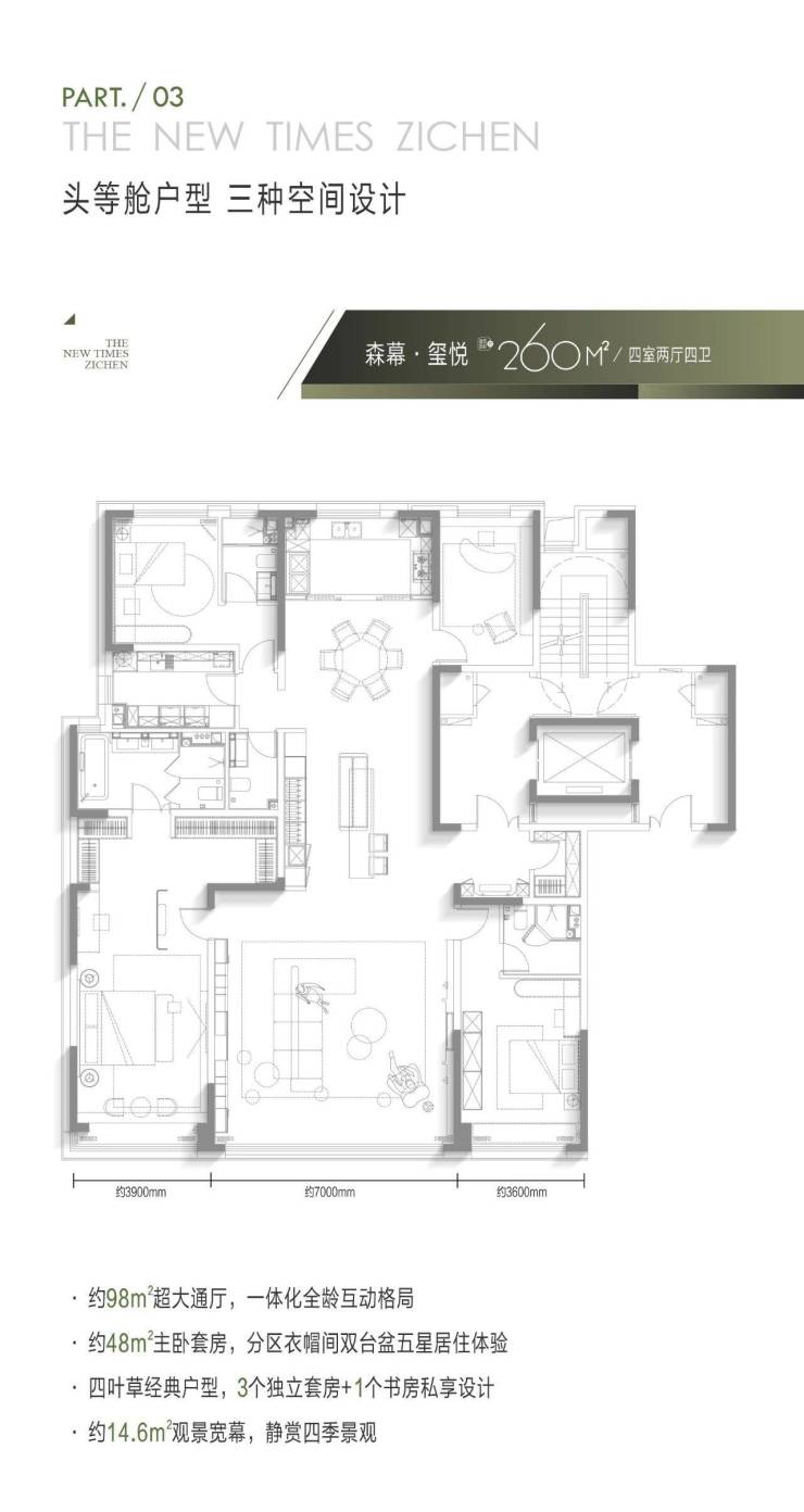
户型展示
【中海开元壹号】售楼处TEL:029-88777723【售楼中心】
了解最新优惠折扣价格——请拨打售楼处
声明:本文由入驻焦点开放平台的作者撰写,除焦点官方账号外,观点仅代表作者本人,不代表焦点立场。
