越秀铁建樽樾(西安新房)—全龄教育无忧—多维路网—双地铁 + 云巴—立体交通便捷
扫描到手机,新闻随时看
扫一扫,用手机看文章
更加方便分享给朋友
西安「白桦林书香」
售楼处电话:029-83222232(营销中心)
售楼部地址:029-83222232(致电发送详情地址)
如需了解最新房源信息_在售房源价格_请拨打上方售楼部电话!

基本信息
楼盘名称:越秀铁建·樽樾
建筑类型:小高层,高层
规划户数:1012户
楼层状况:高层、小高层
楼盘特点:学校 配套纯熟 医院 轨交房 公园
物业类型:住宅
开发商:西安越鼎铁鑫房地产开发有限公司
区域位置:三环外- 高新- 丝路科学城
楼盘地址:祝仁路与星桥路交汇处西北角
【品牌篇】
『 越秀&铁建 双TOP产品线』
【越秀地产】越秀地产1983年成立,深耕楼市41年,全国最早成立的房地产企业之一、中国第一代商品房的缔造者、广州规模最大龙头国企之一,以“城市地标缔造者”身份,共建广州中轴线珠江新城及天河,以“城市美好生活创领者”的使命愿景,不断打造品质标杆人居。

【中国铁建】
中国铁建股份有限公司,由中国人民解放军铁道兵发展而来,是全国最具实力、规模的特大型综合建设集团之一。
截至2023年,中国铁建位列世界500强第43位,累计荣获87项科学技术奖。中国铁建地产,实力布局京津冀、长三角、珠三角等全国45个城市,匠造245个精品项目。
连续18年跻身世界500强,全球250家最大承包商前3位,业务范围遍及全球140个国家和地区。

【产品篇】
『臻品之上 世界如我所见』
1、第四代住宅 连接未来“森活"




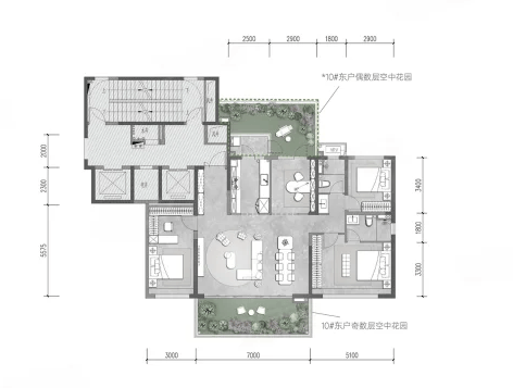
户型展示:





【越秀铁建樽樾】售楼处电话TEL:029-83222232【售楼中心】
了解最新优惠折扣价格——请拨打服务热线
声明:本文由入驻焦点开放平台的作者撰写,除焦点官方账号外,观点仅代表作者本人,不代表焦点立场。
