商铺在售(招商揽阅) —简介 —89-135㎡稀缺洋房 —大型社区 —交房
扫描到手机,新闻随时看
扫一扫,用手机看文章
更加方便分享给朋友
西安「招商揽阅」
售楼处:029-88777792 (营销中心)
售楼部地址:029-88777792 (致电发送详情地址)
如需了解最新房源信息_在售房源价格_请拨打上方售楼部电话
基本信息
楼盘名称:招商揽阅
产权年限住宅:70年
容积率住宅:2.5
规划户数
2606户 [查看详情]
楼盘特点:一房一价 三环外 大型社区 配套纯熟 商业街
参考价格:18232元/m²
物业类型:住宅
开发商:西安雍景嘉境房地产有限公司
区域位置:三环外- 浐灞国际港- 保税区
楼盘地址:奥体大道交大附中附小对面
(1)百年招商 与祖国共命运 同时代共发展
百年招商局,历经151载风雨洗礼,双世界500强,资产规模位居央企第一。跨越三个世纪,创立轮船招商局、唐胥铁路、南洋公学、蛇口工业区、招商银行、海上世界等时代巨著,刻写中国辉煌的印记。
(2)招商西安·美好生活营造家
招商蛇口作为“招商局集团”旗下子公司,历经43年的发展,以“中国领先的城市和园区综合开发运营服务商”为战略定位,致力于成为“美好生活承载者”。
2014年,招商蛇口携依云曲江项目首次亮相西安。百年招商与千载西安的故事,便正式拉开序幕。此后9年,招商蛇口在西安相继开发招商雍景湾、招商城市主场、招商臻观府、招商局丝路中心、招商央玺、招商臻境、招商西安序、招商雲山間、招商雲蘭、西安伊敦诺富特酒店、招商揽阅等,以对待生命成长的方式升级城市。
①匠心营造 筑牢交付力“护城河”
独创828工业化体系,做到施工过程中“层层责任化”,供料、施工、验收全过程可查、可验、可追、可信,打造全周期质量监控体系,联合优质供应商打造了名为《磐石计划》,由全业务供应商组成品质联盟,从源头上为品质保驾护航。2022年底三区三盘提前交付,超强兑现力见证招商速度。
②场景专家 不断作答生活理想
从《answer大会》洞察行业发展新风向到《场景新提案》以未来场景向生活全新作答,从《向生活 比个心》的深情告白计划,到《谊刻一席谈》不断链接美学生活与人文故事。招商蛇口始终以生活的营造与坚守读懂西安,共鸣一座城市的雄心探索
③社群共创 美好+N全新服务体系
招商荟,客户关系全面提升,美好+N全新服务体系打造,以童子军计划、老年大学招募、招商体育季、家庭日、青年动力营五大专属IP,营造全龄段、全时段、全周期活动。
周边配套:
教育 :附近有项目一路之隔交大附中附小,并且项目自带幼儿园,可以实现全龄教育
医疗配套:附近有三甲综合医院—西安交大一附院国际陆港医院、国家健康养老示范区—前海幸福公馆、养老公寓、专家公寓、康疗公寓为一体的——前海健康城、区域生活服务中心等。
交通配套:附近有 地铁三号线;
商业配套:附近有 社区商业街,购物集市,教培中心,健身房,泳池;三公里商圈涵盖王府井百货,华润万象城,中粮大悦城
娱乐配套: 附近有华夏文旅度假区、丝路创意梦工厂、融创冰雪世界、 奥体中心,长安乐,长安书院
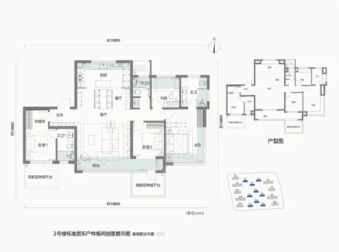
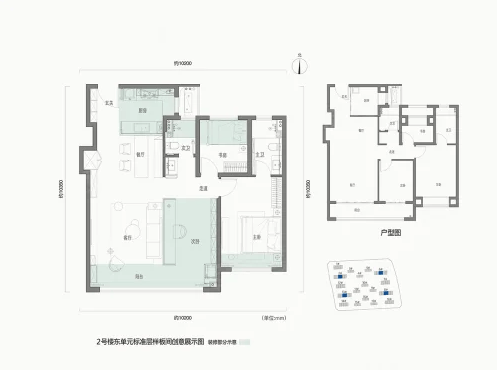
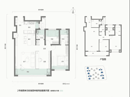
在售户型:
4室2厅2卫1厨, 128平米

3室2厅2卫1厨, 103平米

4室2厅3卫1厨, 143平米

3室2厅2卫1厨, 101平米

【招商揽阅】售楼处TEL:029-88777792 【售楼中心】
了解最新优惠折扣价格——请拨打售楼处
声明:本文由入驻焦点开放平台的作者撰写,除焦点官方账号外,观点仅代表作者本人,不代表焦点立场。
