【商铺推荐】铁建越秀高新璞悦—绿化率—在售住宅—建筑面积—毛坯
搜狐焦点榆林站 2026-03-12 14:39:00
用手机看
扫描到手机,新闻随时看
扫一扫,用手机看文章
更加方便分享给朋友
西安铁建越秀高新璞悦售楼处电话029-88777723,高层24-26F,洋房5-11F,408车位,小区会所,知名开发商。
西安「铁建越秀高新璞悦」
售楼处:029-88777723(已认证)
售楼部地址:029-88777723(致电发送详情地址)
【铁建越秀高新璞悦】售楼部TEL:029-88777723【售楼中心】
了解最新优惠折扣价格——请拨打服务热线
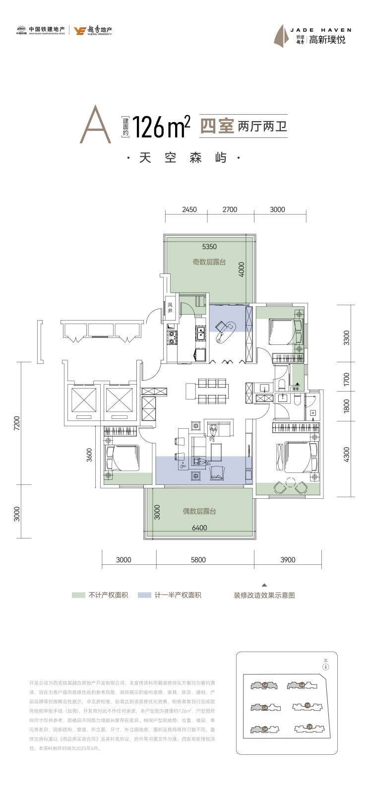
143洋房户型,四房两厅三卫

基本信息
楼盘名称:铁建越秀·高新璞悦
建筑类型:高层,花园洋房
规划户数:365户
楼层状况:纯T2产品 高层:24-26F 洋房:5-11F
物业公司:中铁建物业管理有限公司西安分公司
车位数:408 (地上:20 个 地下:308个)
车位比:1:1.1
楼盘特点:高新 知名开发商 花园洋房 小区会所 大面宽
物业类型:住宅
开发商:西安铁晟越合房地产开发有限公司
区域位置:二至三环- 高新- 科技路
楼盘地址:科技路与鱼化三路交汇向南200米
声明:本文由入驻焦点开放平台的作者撰写,除焦点官方账号外,观点仅代表作者本人,不代表焦点立场。
