(租售中心)招商揽阅 —商业街 —品牌房企 —户型 —交房
扫描到手机,新闻随时看
扫一扫,用手机看文章
更加方便分享给朋友
西安「招商揽阅」
售楼处:029-88777792 (营销中心)
售楼部地址:029-88777792 (致电发送详情地址)
在售户型图丨项目详情介绍丨剩余房源丨项目周边配套丨详细在线解答
基本信息
楼盘名称:招商揽阅
绿化率: 35%
容积率: 2.5
占地面积: 215亩
建筑面积: 35.88万㎡
总户数: 2606户
当期户数: 627户
车位比: 1:2.0
物业费: 2.2元/㎡·月
车位: DK1:914个;DK2:1212个
物业公司: 招商积余物业
楼盘价格: 参考均价 16500 元/㎡ 周边房价解读
物业类型: 洋房 普通住宅
区域板块: 国际港务区
产权年限: 70年
项目特色: 品牌房企 地铁沿线 教育资源 改善好房
开发商: 西安雍景嘉境房地产有限公司
楼盘地址: 西安市国际港务区奥体大道与林泓路交汇处
悬浮绿洲四代住宅 学院派成长社区建筑面积约100-143㎡ 首开
中国·西安浐灞国际港·奥体大道中轴
占地面积:约215亩(分三期开发)
建筑面积:约35.88万㎡
楼栋构成:高层+小高+洋房
主力户型:建面约100-169㎡
容积率:约2.5
绿化率:约35%
开发商:招商蛇口
招商揽阅是招商继百万方大城招商城市主场后,在浐灞国际港打造的第二座百亩人居大城。规划了高层、小高、洋房多款形态产品,并引入了奇偶错层挑空露台,构筑招商在港务区的首个“第四代住宅”产品。
招商揽阅:项目在港务区,奥体大道与秦汉大道交汇处,交大学校路西
(1)大西安东部新中心 东部双向开放引领区
⻄安东拓主战场|国际⽂化交流轴核心承载区 | 东部双向开放引领区 | 国际门户枢纽城市
(2)大西安物流中心 世界一流内陆港
西安内陆改革开放高地排头兵、主力军 | 陕西自贸区核心板块 | 建设对外大通道重要平台
中欧班列集结中心 | 一带一路跨境电商综试区
(3)大西安东部产业中心 500强总部林立
东北-西南两极化产业发展 | 360余家外贸企业 | 300余家物流企业 | 约200家名企业入驻
华润、电建、中铁、中粮、中冶、招商10⼤央企区域总部 | 京东千亿级产业集群
周边配套:
教育 :附近有项目一路之隔交大附中附小,并且项目自带幼儿园,可以实现全龄教育
医疗配套:附近有三甲综合医院—西安交大一附院国际陆港医院、国家健康养老示范区—前海幸福公馆、养老公寓、专家公寓、康疗公寓为一体的——前海健康城、区域生活服务中心等。
交通配套:附近有 地铁三号线;
商业配套:附近有 社区商业街,购物集市,教培中心,健身房,泳池;三公里商圈涵盖王府井百货,华润万象城,中粮大悦城
娱乐配套: 附近有华夏文旅度假区、丝路创意梦工厂、融创冰雪世界、 奥体中心,长安乐,长安书院
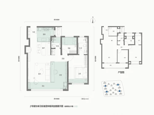
在售户型:
4室2厅2卫1厨, 128平米

3室2厅2卫1厨, 103平米

4室2厅3卫1厨, 143平米

3室2厅2卫1厨, 101平米

【招商揽阅】售楼处TEL:029-88777792 【售楼中心】
了解最新优惠折扣价格——请拨打售楼处
声明:本文由入驻焦点开放平台的作者撰写,除焦点官方账号外,观点仅代表作者本人,不代表焦点立场。
