【西安商铺在售】翰林府▁最近优惠▁高绿化率▁全时医疗▁学府优教
扫描到手机,新闻随时看
扫一扫,用手机看文章
更加方便分享给朋友
西安「翰林府」
售楼处:029-88777792(营销中心)
售楼部地址:029-88777792(致电发送详情地址)
在售户型图丨项目详情介绍丨剩余房源丨项目周边配套丨详细在线解答
基本信息
绿化率: 35%
容积率: 2.6
占地面积: 约30亩
总户数: 414户
车位比: 1:1.0
物业费: 2.42元/m²/月
车位: 456个
物业公司: 万科物业
物业类型: 普通住宅
区域板块: 城北
产权年限: 40年
项目特色: 改善好房
开发商: 陕西润泽基泰置业有限公司
楼盘地址: 元朔路与明光路交汇处东北角

翰林府项目品鉴
匠筑|陕西基泰源集团
择址|中国·国家级·西安经济技术开发区
都会|一路之隔中小学规划用地,名校、名师加持距4号线元朔路地铁口仅200米,纵享立体交通合生汇(规划中)、熙地港、大融城等繁盛商业资源集萃
场域|总占地约30亩
规制|8栋小高+3栋商业配套
栖境|约2.6容积率、35%绿化率
奢逸|全系一梯一户纯粹领地、南北三阳台赏景
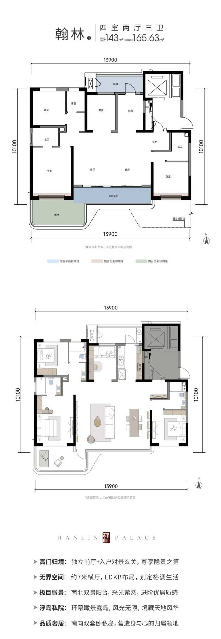
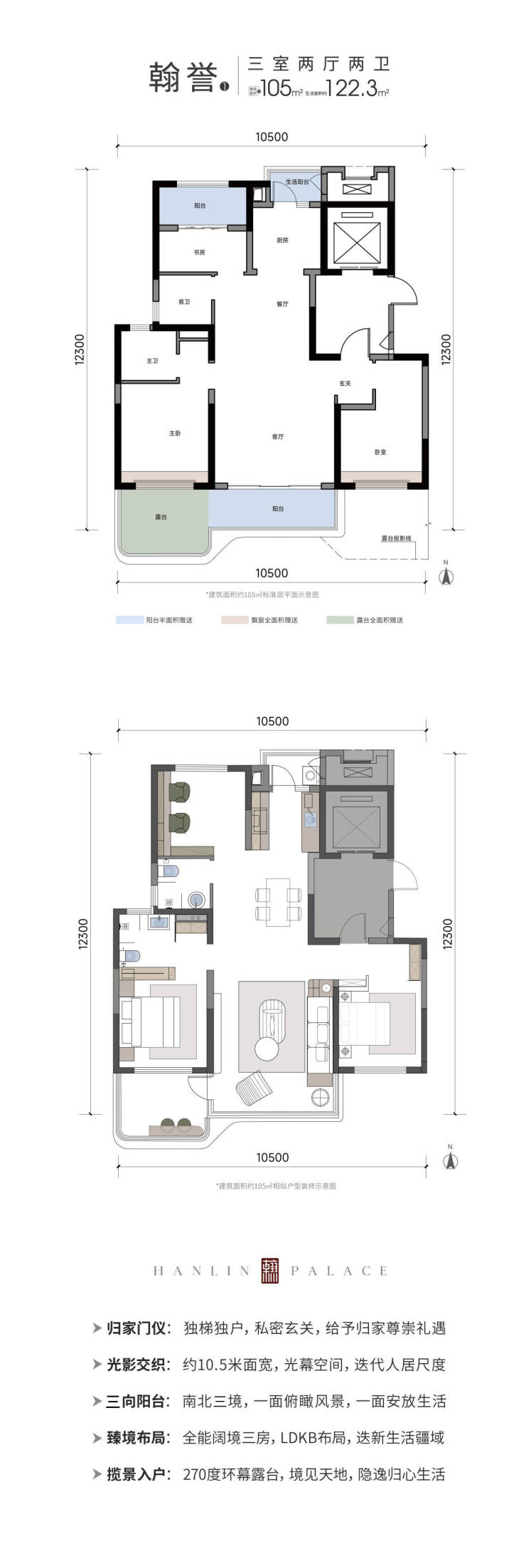
著品|建面约105-143m超四代森境住区
超群·实力稳健的至诚匠人源启向上 行稳致远
陕西基泰源集团,起源于2000年,依托能源产业的深厚根基,以星星之火,汇聚成“炬”,逐步拓展业务版图。历经25年发展,集团整合能源发电、仓储物流、实业、金融等多元化业务,聚沙成塔,逐步实现了从分散业务到集团运营的跨越式发展。
多元格局 基业磐石
能源发电能源为基,驱动绿色发展
仓储物流布局未来,打造全产业链
金融投资稳健投资,共启成功之源
地产开发匠心筑家,造诣人居标杆
教育科技智慧引领,培育创新力量
全时医疗
西安市儿童医院经开院区、西安市红会医院北院区未央区中医医院(在建)等
丰富医疗资源加持,营造舒心健康之享
自然禀赋
渭河自然景观带、西安湖、紫薇湖、文景山公园北站站前公园集萃绿意环伺,鲜氧弥漫,封藏自然谧境
多元产业
区域内汇聚超7万家企业,外资企业400家世界500强近百个央企龙头200家、创新型中小企业数千家产业兴城,擎起时代未来
学府优教 筑基未来
文教胜地,起笔人文新章。一路之隔中小学规划用地,名校、名师加持,构筑教育资源的“硬核引擎”项目周边经开系学府环同,经开第十三小学、经开第十四小学、经开第一学校、经开第二学校、经开第六中学,近距优渥教育资源,厚载学识底蕴。
超配·精心雕琢的人居之境品质筑善 府系奢境
翰林府,基泰源集团运营化后地产开发人居首作,以远见择地、低密规划、创新产品、人文滋养,造诣“府”系进阶人居,品质匠呈,共鸣当代家庭的心中阔境。
第一家通过ISO900国际质量管理体系认证物管企业
中国首批获得一级资质的物业管理企业
连续10年蝉联中国物业管理综合第一
荣获“2024中国住宅物业服务力优秀企业TOP1
“2024年新质物业品牌价值TOP1”翰林府户型鉴赏】
翰林府户型鉴赏
【翰林府】售楼处TEL:029-88777792【售楼中心】
了解最新优惠折扣价格——请拨打售楼处
声明:本文由入驻焦点开放平台的作者撰写,除焦点官方账号外,观点仅代表作者本人,不代表焦点立场。
