铁建越秀高新璞悦【西安商铺】—车位充足—楼盘介绍—样板间图—毛坯
扫描到手机,新闻随时看
扫一扫,用手机看文章
更加方便分享给朋友
西安「铁建越秀高新璞悦」
售楼处:029-88777723(营销中心)
售楼部地址:029-88777723(致电发送详情地址)
在售户型图丨项目详情介绍丨剩余房源丨项目周边配套丨详细在线解答
基本信息
楼盘名称:铁建越秀·高新璞悦
绿化率: 35%
容积率: 2.5
占地面积: 20633㎡
建筑面积: 67336.26㎡
总户数: 365户
当期户数: 365户
车位比: 1:1.1
车位: 408 (地上:20 个 地下:308个)
物业公司: 中铁建物业管理有限公司西安分公司
楼盘价格: 价格待定 周边房价解读
物业类型: 洋房 普通住宅
区域板块: 高新区
产权年限: 70年
项目特色: 改善好房
开发商: 西安铁晟越合房地产开发有限公司
楼盘地址: 科技路与鱼化三路交汇向南200米
国央企联合打造
高新区黄金中轴科技路板块海?岛度假式四代洋房社区
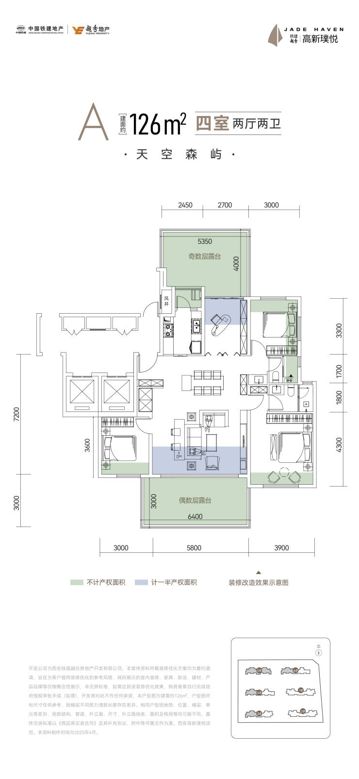
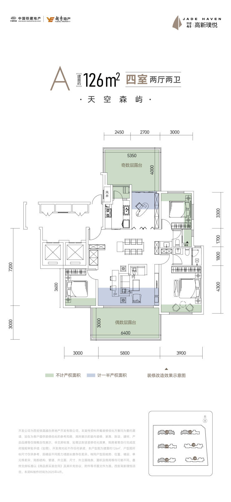
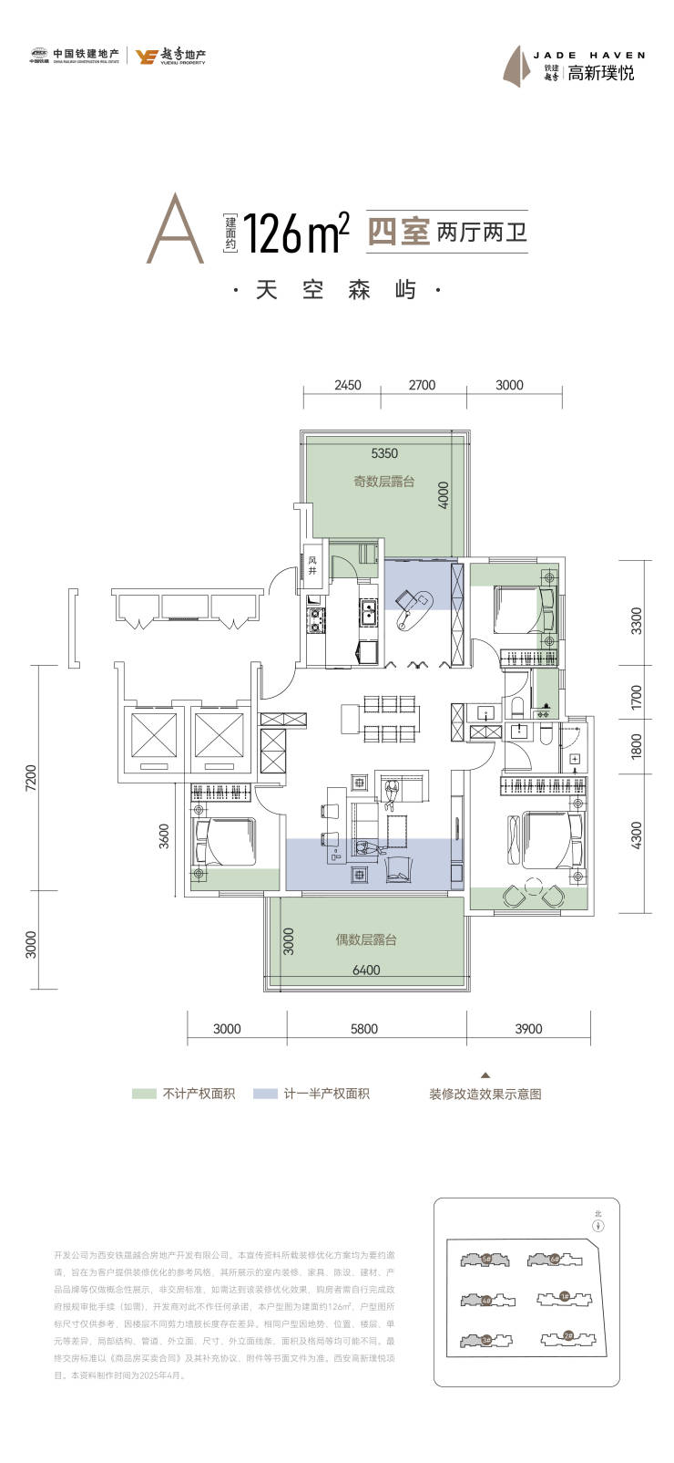
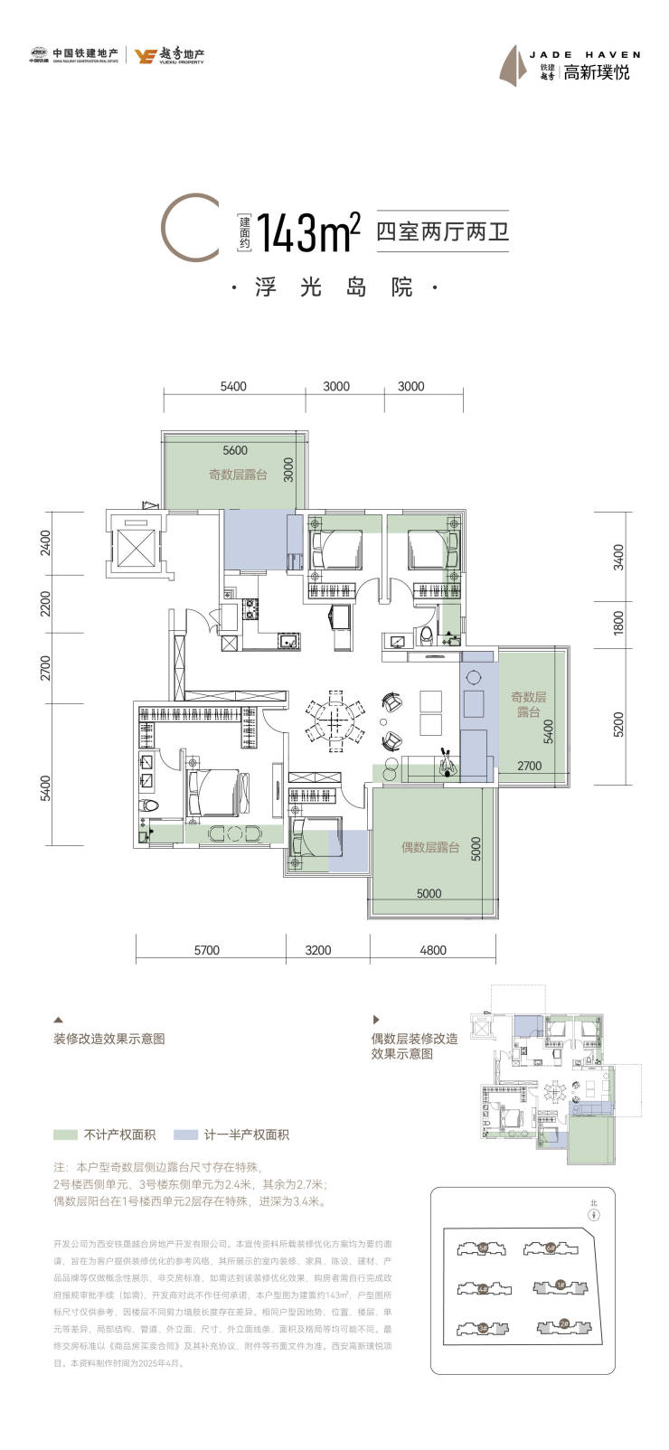
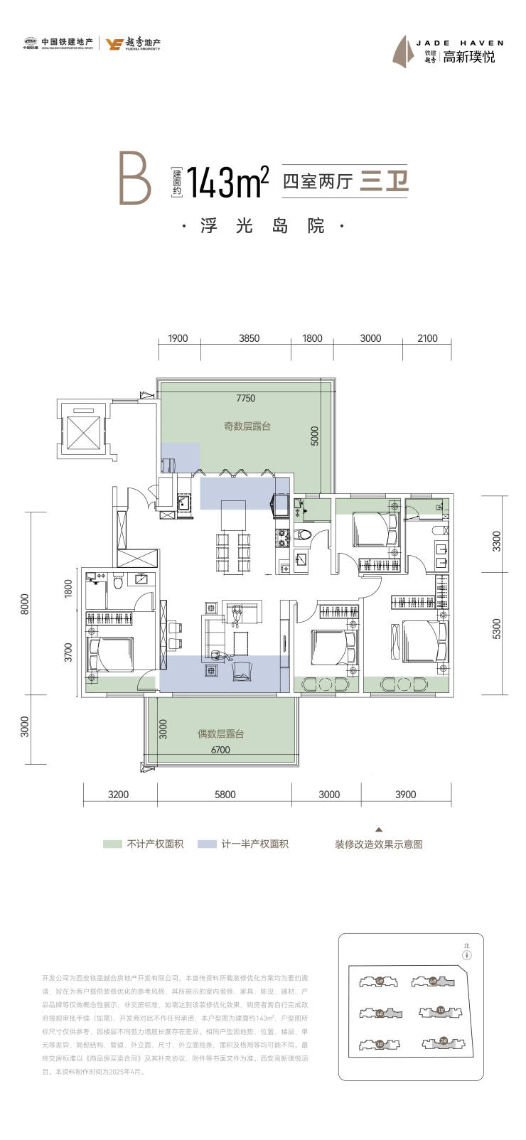
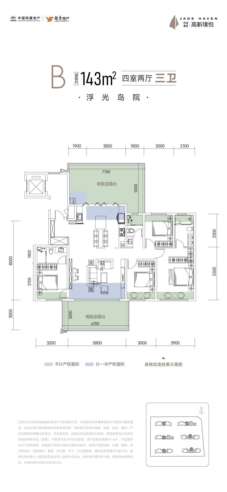
项目面积125四房/143(洋房)
超大得房率
计划五月开盘,明年交付
143洋房户型,四房两厅三卫
【铁建越秀高新璞悦】售楼处TEL:029-88777723【售楼中心】
了解最新优惠折扣价格——请拨打售楼处
声明:本文由入驻焦点开放平台的作者撰写,除焦点官方账号外,观点仅代表作者本人,不代表焦点立场。
