太白山唐镇(租售中心)▁建面约115-140㎡▁开发商线上推广直销▁五证齐全▁精装交付
扫描到手机,新闻随时看
扫一扫,用手机看文章
更加方便分享给朋友
西安「太白山唐镇」
售楼处:029-88866617(营销中心)
售楼部地址:029-88866617(致电发送详情地址)
在售户型图丨项目详情介绍丨剩余房源丨项目周边配套丨详细在线解答

基本信息
楼盘名称:太白山唐镇 在售
楼盘特点:现房 绿色住宅 自持物业 人车分流 改善置业
参考价格:13000元/m²起
物业类型:住宅
开发商:陕西合巨源房地产开发有限公司
区域位置:眉县- 眉县
楼盘地址:汤峪镇太白山旅游区迎宾大道西100米
最新开盘:2024年6月26日
交房时间:2025年10月30日
售楼处地址:汤峪镇太白山旅游区迎宾大道西100米
周边配套:
购物:自带200亩商业街(丝路风情街、社群体验区、文旅商业区、温泉酒店度假区),380亩业主农场,打造汤泉文化,唐风文化与山地文化为一体的唐风商业街区
生活: 唐潮火锅、墨水金城、银发学院,业主食堂,李小白食间,品味现代生活乐趣;唐镇咖啡,让生活有滋有味;秋暝馆,女性专属社群空间;百食工坊,山水特产与唐潮风物
娱乐: 鹿野仙踪、太白山国家森林公园、红河谷景区、太白山温泉、水上世界、太白山漂流、逸景营地、鳌山滑雪场等
医院:唐潮火锅、墨水金城、银发学院,业主食堂,李小白食间,品味现代生活乐趣;唐镇咖啡,让生活有滋有味;秋暝馆,女性专属社群空间;百食工坊,山水特产与唐潮风物
规划有80000㎡凤泉汤街商业空间、规划300亩农田体系、全年龄教育体系及全生命周期健康管理体系,推出温泉酒店、客栈、温泉岛等丰富配套,并将温泉与居住产品结合,构筑全家共享的温泉生活体验,让“4天城市繁华+3天山野惬意”的旅居度假生活随时开启!
实景拍摄品鉴
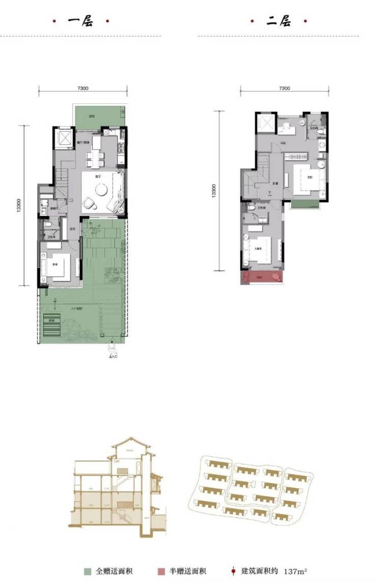
户型品鉴
下叠约137㎡,南边花园
上叠约160㎡,北花园,阁楼、露台
【太白山唐镇】售楼处TEL:029-88866617【售楼中心】
了解最新优惠折扣价格——请拨打售楼处
声明:本文由入驻焦点开放平台的作者撰写,除焦点官方账号外,观点仅代表作者本人,不代表焦点立场。
