西安招商揽阅(租售中心) —商业街 —89-135㎡稀缺洋房 —学校 —配套纯熟
扫描到手机,新闻随时看
扫一扫,用手机看文章
更加方便分享给朋友
西安「招商揽阅」
售楼处:029-88777792 (营销中心)
售楼部地址:029-88777792 (致电发送详情地址)
基本信息
楼盘名称:招商揽阅
绿化率: 35%
容积率: 2.5
占地面积: 215亩
建筑面积: 35.88万㎡
总户数: 2606户
当期户数: 627户
车位比: 1:2.0
物业费: 2.2元/㎡·月
车位: DK1:914个;DK2:1212个
物业公司: 招商积余物业
楼盘价格: 参考均价 16500 元/㎡ 周边房价解读
物业类型: 洋房 普通住宅
区域板块: 国际港务区
产权年限: 70年
项目特色: 品牌房企 地铁沿线 教育资源 改善好房
开发商: 西安雍景嘉境房地产有限公司
楼盘地址: 西安市国际港务区奥体大道与林泓路交汇处
(1)百年招商 与祖国共命运 同时代共发展
百年招商局,历经151载风雨洗礼,双世界500强,资产规模位居央企第一。跨越三个世纪,创立轮船招商局、唐胥铁路、南洋公学、蛇口工业区、招商银行、海上世界等时代巨著,刻写中国辉煌的印记。
(2)招商西安·美好生活营造家
招商蛇口作为“招商局集团”旗下子公司,历经43年的发展,以“中国领先的城市和园区综合开发运营服务商”为战略定位,致力于成为“美好生活承载者”。
2014年,招商蛇口携依云曲江项目首次亮相西安。百年招商与千载西安的故事,便正式拉开序幕。此后9年,招商蛇口在西安相继开发招商雍景湾、招商城市主场、招商臻观府、招商局丝路中心、招商央玺、招商臻境、招商西安序、招商雲山間、招商雲蘭、西安伊敦诺富特酒店、招商揽阅等,以对待生命成长的方式升级城市。
①匠心营造 筑牢交付力“护城河”
独创828工业化体系,做到施工过程中“层层责任化”,供料、施工、验收全过程可查、可验、可追、可信,打造全周期质量监控体系,联合优质供应商打造了名为《磐石计划》,由全业务供应商组成品质联盟,从源头上为品质保驾护航。2022年底三区三盘提前交付,超强兑现力见证招商速度。
②场景专家 不断作答生活理想
从《answer大会》洞察行业发展新风向到《场景新提案》以未来场景向生活全新作答,从《向生活 比个心》的深情告白计划,到《谊刻一席谈》不断链接美学生活与人文故事。招商蛇口始终以生活的营造与坚守读懂西安,共鸣一座城市的雄心探索
③社群共创 美好+N全新服务体系
招商荟,客户关系全面提升,美好+N全新服务体系打造,以童子军计划、老年大学招募、招商体育季、家庭日、青年动力营五大专属IP,营造全龄段、全时段、全周期活动。
(6)大西安生态绿肺 河园生态底色加持
①超级水岸:附近有灞渭三角洲 |纵览“一园两河”,揽胜灞河、渭河自然景观资源
②超级生态:附近有浐灞国家湿地公园,国家级湿地公园
③超级公园:附近有奥体中轴生态公园
奥体大道作为港务区近年来发展的黄金中轴线,集萃国际化地标集群、高奢生活资源、优渥天然的生态后花园,为西安构筑迈向世界的城市窗口。
(1)商务集群:附近有十大央企总部【中国中冶、华润、招商局、中国中铁、中电建、中石化、中粮、中外运、中远海、中铁集装箱】
(2)生态集群:附近有灞河三角洲、奥体中央公园、浐灞国际湿地公园、全运湖、丝路国际体育文化交流培训基地、灞河东路生态廊道、陆港纪念公园
(3)地标集群:附近有西安奥体中心、西安国际会展中心、西安国际会议中心、长安乐、长安书院、元朔大桥、长安云、长安塔
(4)商业集群:附近有华润万象城(在建中)、水晶汇溪广场、王府井购物中心(在建中)、中粮·大悦广场(在建中)
(5)名校集群:附近有铁一中陆港中学/小学;陕师大陆港小学、陕师大附中陆港初级中学、高新一中陆港小学、高新一中陆港初级中学、西安国际港务区陆港第七小学、西安国际港务区陆港第四学校(规划中)、陆港第五幼儿园、陆港第六幼儿园、西安国际港务区陆港第九幼儿园(免责声明:本资料中所展示的项目周边学校,仅作为项目周边学校介绍,不作为上学承诺,具体入学条件、入学资格等以教育部门和学校要求为准)
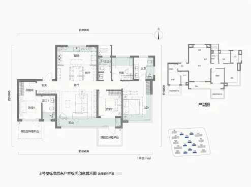
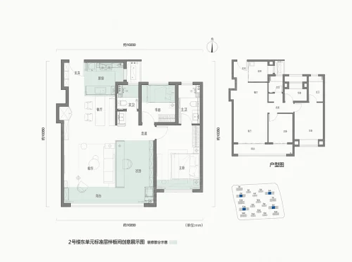
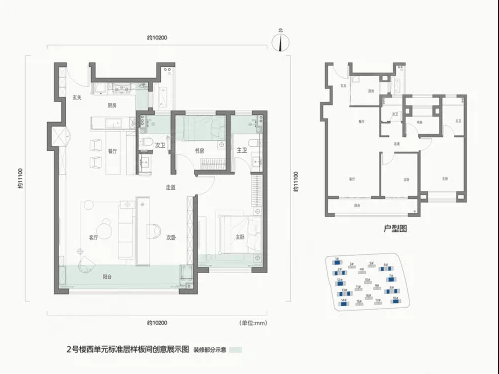
在售户型:
4室2厅2卫1厨, 128平米

3室2厅2卫1厨, 103平米

4室2厅3卫1厨, 143平米

3室2厅2卫1厨, 101平米

【招商揽阅】售楼处TEL:029-88777792 【售楼中心】
了解最新优惠折扣价格——请拨打售楼处
声明:本文由入驻焦点开放平台的作者撰写,除焦点官方账号外,观点仅代表作者本人,不代表焦点立场。
