中国铁建西派中心房价_中国铁建西派中心价格_中国铁建西派中心在售均价...
扫描到手机,新闻随时看
扫一扫,用手机看文章
更加方便分享给朋友
【中国铁建西派中心】售楼处电话:029-68866626 (已认证)
【中国铁建西派中心】置业顾问电话:18602959000 (微信同步)
项目介绍:地址、位置、房价、价格、户型图、开盘时间、容积率、交通、周边配套、商业配套、交房时间、备案价、什么时候交房、最新动态、最新消息、等楼盘详细资料;了解详细楼盘资料和最新折扣价格,请拨打售楼处24小时热线电话预约。

【中国铁建西派中心】 地段
西安市 太华路 曲江大明宫
4号线地铁物业出站即达
大明宫板块中央区域
与百年历史公园相邻

【中国铁建西派中心】基础信息
开发商 | 中国铁建
物业类型 | 商办
占地面积 | 约30亩
建筑面积 | 约148806㎡
建筑高度 | 26层
主力户型 | 约80-1180㎡
总计户数 | 216户
交房时间 | EF栋 2023年6月
梯户比例 | 5T8/5T11
标准层高 | 约3.55米
工程进度 | 主体封顶
车位数量 | 约1079个(充电车位30%)
物业顾问服务|中国铁建物业(一级物业资质)

地段——北二环CBD核心板块,全新商务生活境地
地铁 ——地铁4号线(大明宫北)出站即达

实景图 ——奢享盛景 城北门户

外立面 ——中空LOW-E全玻璃幕墙

大堂——全系精装 独立大堂

配套 宽境游泳池 健身房

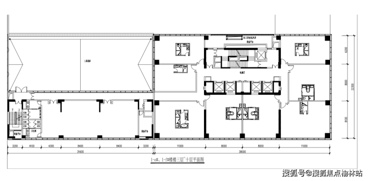
户型图



本宣传资料所设计的户型仅供示意参考,不同户型的面积尺寸、功能布局、空间分割、门窗/管井形态位置等均有不同。相同户型因楼层差别,局部结构、面积等也可能不同。
具体请以政府部门最终审定的图纸及《商品房买卖合同》及其补充协议,附件等书面文件为准。
【中国铁建西派中心】售楼处电话:029-68866626 (已认证)
【中国铁建西派中心】置业顾问电话:18602959000 (微信同步)
声明:本文由入驻焦点开放平台的作者撰写,除焦点官方账号外,观点仅代表作者本人,不代表焦点立场。
