2024西安五龙悦苑售楼处房价-现房图片-价值分析-位置图-三环外
扫描到手机,新闻随时看
扫一扫,用手机看文章
更加方便分享给朋友
西安「五龙悦苑」
售楼处:029-83222232(营销中心)
售楼部地址:029-83222232(致电发送详情地址)
在售户型图丨项目详情介绍丨剩余房源丨项目周边配套丨详细在线解答
基本信息
楼盘名称:五龙·悦苑 在售
建筑类型:高层
产权年限住宅:70年
容积率住宅:3.49
绿化率:36%
规划户数:592户
物业管理费住宅:2.2元/m²/月
物业公司:陕西五龙物业管理有限公司
车位数:702
车位比1:1.2
楼盘特点:现房 一房一价 高新开发区 三环外 主卧套房
参考价格:16500元/m²
物业类型:住宅
开发商:西安五诚房地产开发有限公司
区域位置:三环外- 雁塔区- 西部大道
楼盘地址:西部大道与西沣路十字交汇处东北角
【品牌介绍】
二十七载五龙 | 厚积薄发 献礼高新
五龙实业集团成立于1996年,注册资金1.58亿,年建安施工面积达到30万㎡,完成利税超过千万,年产值3.5亿元。作为西安本土实力派企业,五龙实业集团扎根高新二十七载,全程见证高新变迁,始终坚守匠心品质,精心打造高新封面
【区域价值】
地段:执掌高新 坐拥繁华
在城市骨架不断扩张的古城西安,五龙·悦世纪择高新门户位置,坐拥城市顶级配套资源,依托不可复制的城市稀缺地段,铸造高新荣耀力作。

周边配套:
交通:多样化出行方式 自由掌控时间成本
近享“两横三纵立体交通路网”;临近地铁6号线、8号线(在建)及15号线(在建);周边多条公交线路:260路、173路等。

3.教育:多所西安名校环伺 近享全程优质教育
幼儿园:吉的堡幼儿园、品格幼儿园、融创江山宸院幼儿园
小学:雁塔区第二小学、大雁塔小学西沣分校、西电附属小学雅居乐分校、西电附小悦美分校
中学:雁塔区第二中学、西安高新国际学校、西安高新第一中学
最终入学政策,需要根据教育局统一划分原则!
生态:城市生态 繁华城央珍稀景观
1700亩城市生态公园近在咫尺,是城南最大的、世界级城市公园,步行便可到达。周边还有清凉山森林公园、永阳公园、紫薇城市运动公园等公园环绕,创造绿色宜居环境。

商业:一流配套 坐享高新都会繁华
立足高新CBD、电子城、大学城三大商圈交融中心,区域内商业荟萃,构建15分钟生活圈。
已建成:万达ONE、阳光天地、益田假日里、万科里生活广场
在建:金地广场、宜家荟聚购物中心、大悦城
规划中:山姆会员店
医疗:医疗配套云集 为家人健康保驾护航
西安交大一附院长安区医院(8分钟车程):一所集预防、医疗、保健、健康教育为一体的二级甲等综合医院。
西安国际医学中心:一所集医疗、科研、教学、预防、保健、康复、健康管理为一体,按照三级甲等医院标准建设的现代化综合型医院。
西安高新医院:一所集医疗、教学、科研、预防、保健为一体的三级甲等医院。

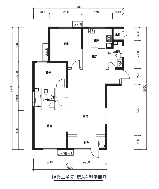
【臻品户型】
户型A:109.51㎡三室两厅两卫

户型B:130.84㎡三室两厅两卫

户型C:128.06㎡三室两厅两卫

户型D:180.16㎡四室两厅两卫

【五龙悦苑】售楼处TEL:029-83222232【售楼中心】
了解最新优惠折扣价格——请拨打售楼处
声明:本文由入驻焦点开放平台的作者撰写,除焦点官方账号外,观点仅代表作者本人,不代表焦点立场。
