(租售中心)铁建越秀高新璞悦—知名开发商—花园洋房—约126-143㎡—物业公司
搜狐焦点榆林站 2026-01-13 15:57:00
用手机看
扫描到手机,新闻随时看
扫一扫,用手机看文章
更加方便分享给朋友
西安铁建越秀高新璞悦项目,绿化率35%,容积率2.5,提供408个车位,开发商西安铁晟越合,主打改善型住宅。
西安「铁建越秀高新璞悦」
服务热线:029-88777723(咨询中心)
项目地址:029-88777723(致电发送详情地址)
在售户型图丨项目详情介绍丨剩余房源丨项目周边配套丨详细在线解答
如需了解最新房源信息_在售房源价格_请拨打上方服务热线电话!

基本信息
楼盘名称:铁建越秀·高新璞悦
绿化率: 35%
容积率: 2.5
占地面积: 20633㎡
建筑面积: 67336.26㎡
总户数: 365户
当期户数: 365户
车位比: 1:1.1
车位: 408 (地上:20 个 地下:308个)
物业公司: 中铁建物业管理有限公司西安分公司
楼盘价格: 价格待定 周边房价解读
物业类型: 洋房 普通住宅
区域板块: 高新区
产权年限: 70年
项目特色: 改善好房
开发商: 西安铁晟越合房地产开发有限公司
楼盘地址: 科技路与鱼化三路交汇向南200米
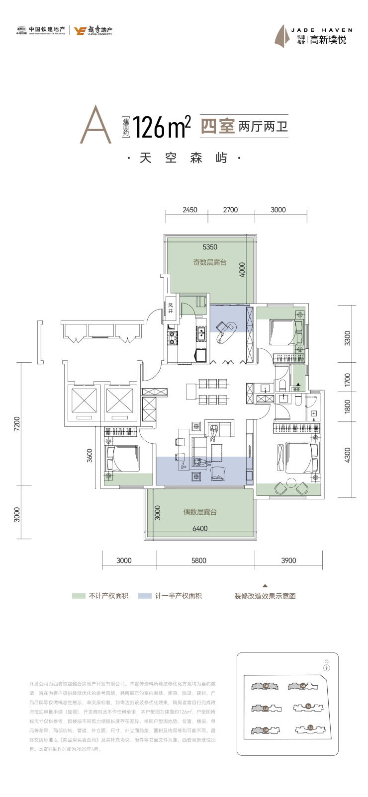
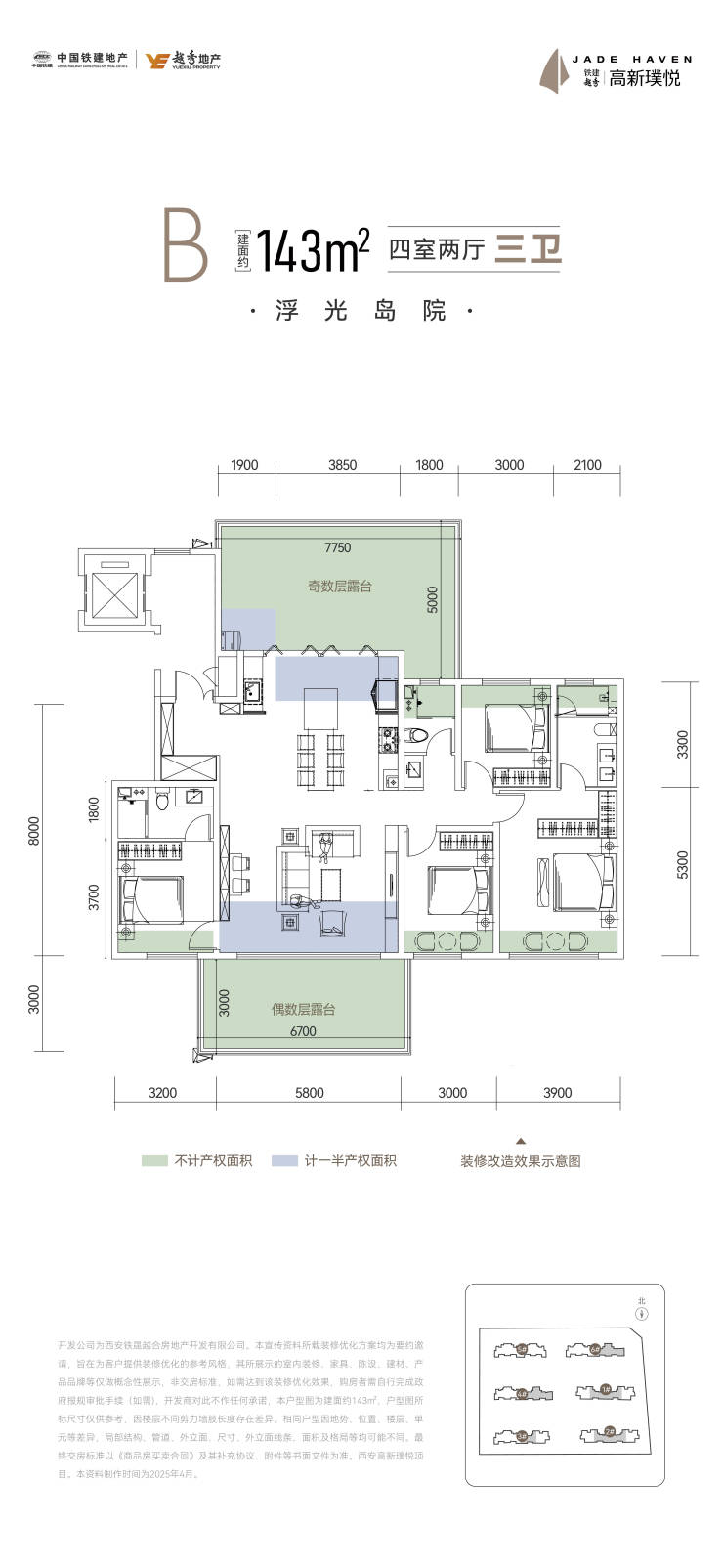
143洋房户型,四房两厅三卫
【铁建越秀高新璞悦】服务热线TEL:029-88777723【咨询中心】
了解最新优惠折扣价格——请拨打服务热线
声明:本文由入驻焦点开放平台的作者撰写,除焦点官方账号外,观点仅代表作者本人,不代表焦点立场。
