白桦林晓(商铺回报率)→装修交付→三环外→户型展示→项目详情
扫描到手机,新闻随时看
扫一扫,用手机看文章
更加方便分享给朋友
西安「白桦林晓」
售楼处:029-68866626(营销中心)
售楼部地址:029-68866626(致电发送详情地址)
基本信息
楼盘名称:白桦林晓
建筑类型:高层
楼盘特点:三环外 轨交房 生态绿地 银行 便利店
物业类型:住宅
开发商:西安经发天成开发建设有限公司
区域位置:三环外- 经济开发区- 高铁新城
楼盘地址:经开区北三环以北,元鼎路以南
【区域配套·教育篇】
项目北侧一路之隔为70亩教育规划用地,预计引进名校+办学模式
范围内已开学有经开第三小学/经开第十三小学/经开第十四小学
项目配建有约4080㎡幼儿园


【区域配套·交通篇】
双地铁围绕,为业主提供便捷出行
地铁四号线【元朔路站】距离项目约500米
地铁二号线【北苑站】距离项目约1公里

四、【区域配套·医疗篇】
项目北侧2.5公里三甲级红会医院北院区已开诊,为健康保驾护航
板块内规划有陕西中医药大学附属医院
【项目配套·架空层】
项目配建有约600㎡架空层,设置有万册图书馆/自习室/健身活力区/儿童活动区等等
【项目配套·第四代高颜】
奢享高颜社区大门
公建化立面


七、【第四代2.0户型产品】
奇偶错层产品规划
户前卫户型
高赠送,极致得房率
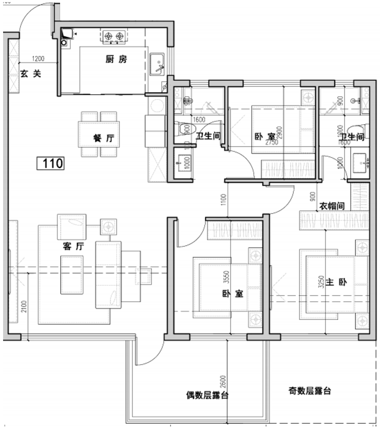
【110㎡-边户】
三室两厅两卫
南向三面宽
高赠送,高得房率

【129㎡-端厅】
四室两厅两卫
奇偶错层,露台、阳台双搭配
高赠送,高得房率

【139㎡-岛厅】
四室两厅三卫
奇偶错层,大进深露台
双套房设计
高赠送,高得房率

【白桦林晓】售楼处TEL:029-68866626【售楼中心】
了解最新优惠折扣价格——请拨打售楼处
声明:本文由入驻焦点开放平台的作者撰写,除焦点官方账号外,观点仅代表作者本人,不代表焦点立场。
