(商铺在售)【保利锦上】丨一房一价丨位置图丨样板间图丨楼盘动态
扫描到手机,新闻随时看
扫一扫,用手机看文章
更加方便分享给朋友
西安「保利锦上」
服务热线:029-88777723(咨询中心)
项目地址:029-88777723(致电发送详情地址)
在售户型图丨项目详情介绍丨剩余房源丨项目周边配套丨详细在线解答
基本信息

楼盘名称:保利·锦上
建筑类型:小高层
产权年限住宅:70年
容积率住宅:2.5 [
规划户数:2008户
楼层状况:16-22F
物业公司:保利物业发展股份有限公司
楼盘特点:一房一价 三环外 大型社区 南北通透 三房朝南
参考价格:15500元/m²
物业类型:住宅
开发商:西安荣骏置业有限公司
区域位置:三环外- 浐灞国际港- 政经
楼盘地址:港兴三路与和泰路交汇处
『品牌篇』
中国保利集团是国务院国资委管理96家大型央企之一,连续五年上榜《财富》世界500强,2021年世界五百强排名174位。
保利2012年首入古都西安,2019年销售额破百亿,始终与大西安共发展,截止2020年共完成了品牌四大产品系的全城布局,开发优质项目逾16个,覆盖经开、沣东、高新、曲江、浐灞等重点区域,目前已有超10万的庞大业主基数。


『区域篇』——西安东部新中心
国际港务区成立于2008年,是国内第一个不沿江、不沿海、不沿边的国际内陆港,同时也是首个拥有国内国际双代码的港口。是陕西省、西安市为打造内陆改革开放新高地而设立的经济先导区。
? 作为西安重点打造区域,2017年,国际港务区有111个重大项目及配套设施开建。沿着一条约7.2公里的奥体中轴公园,南北一公里之内,千亿资源配套已经呈现!(地铁3号线&14号线、奥体中心“一场两馆”、8大央企总部、迈科金融小镇、万象城城市综合体、铁一中一小……)

『区位篇』—— 四大中心赋能核心位置
政经中心:后全运时代,以国际港务区管委会为中心的政经板块,则承载着港务区发展的格局的下一个核心,所在之地必将是资源的集合地,无论交通、教育、医疗、生态等配套都将优先发展!
金融及贸易中心:沿港务大道两侧,未来将作为陆港商贸板块的经济政务金融区,目前已入驻300余家进出口贸易企业及多家银行,成为高知人才及精英的聚集地!
总部经济中心:项目西南侧即为总部经济区,汇聚招商局、中国电建、华润、中冶、绿城等10大企业总部,目前已全面建成,进入招商运营阶段!
资源集合中心:项目近邻奥体中心核心区,为奥体中心板块与政经板块的交汇中心,可享受两大板块带来的丰盛配套资源!
【配套篇】—— 全维度配套 构建逸享生活

生态
保利锦上周围七大公园环伺,奥体中轴生态公园(在建)、启航公园、新寺遗址公园、陆港足球主题运动公园、全运湖公园、4A级浐灞国家湿地公园、社区公园(在建),打造城市绿肺,拥抱鲜氧生活。


商业
保利·锦上5公里范围内坐拥砂之船奥特莱斯、华南城购物中心、澜博跨境购物中心、大悦城购物中心(在建)、融创冰雪世界(在建)等繁华商业,时尚生活触手可及。

教育
项目自身配建幼儿园,同时北地块西侧规划了中小学教育用地。且约3公里范围内陕师大陆港中小学、西安国际陆港第二小学、西安第六十四中学、陆港中学等优质教育资源环伺,助力菁英成长。

从业主实际需求出发,营销定向招商,引入“和院小课堂”的业态,由专业团队运营,为儿童在放学后至家长下班前这段时间提供课业辅导、托管、兴趣培养等活动的服务平台。

交通——便捷立体交通 尽享主城繁华
区域内规划3条地铁线路,贯穿城市东西的地铁3号线,连接奥体中心、北客站及咸阳国际机场的地铁14号线,以及正在建设连接主城区与渭河北岸的轨道交通快线10号线。项目距离地铁14号线港务大道站直线距离约834米,地铁14号线与3号线于双寨站零距离换乘;
项目港兴路、近距北三环、绕城高速,距离西安行政中心和北客站仅十分钟车程,距咸阳国际机场仅28公里。
文娱
四大“长安系”(包括长安云、长安乐、长安书院等)
融创冰雪世界,创造“全龄段、全年度、全天候”且全年运营的室内冰雪场馆。让您和家人的休闲娱乐生活更加丰富多彩。

『物业篇』—— 一级物业管理 守护你的美好生活

保利物业是保利发展控股集团旗下全资子公司,于1996年6月在广州成立,并与2019年成功在港股上市(06049.HK),综合实力行业前三。
保利在全国共管理了全国100多座城市超过770个住宅社区和60个商业物业,服务超300多万户业主,客户满意度常年排在行业标杆。

小区公区服务人性化,贴心呵护业主每一天。

『项目景观及园林展示』
1.归家大堂

2.北区园林景观

3.多元活动空间


『项目智能安防服务展示』
1.电子围栏

2.云视频对讲功能

3.地下智能停车服务

『项目产品』
北区3栋(7# 9# 11# ),共计约248套房源,层高18F、22F,2梯4户,主力户型建面约108㎡/128㎡
公摊:18%-21%
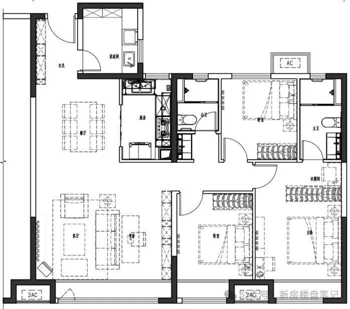
『主力户型』
108㎡—3室2厅2卫+家政间
128㎡—3+1室2厅2卫(5.4米大宽厅)
【保利锦上】服务热线TEL:029-88777723【咨询中心】
了解最新优惠折扣价格——请拨打服务热线
声明:本文由入驻焦点开放平台的作者撰写,除焦点官方账号外,观点仅代表作者本人,不代表焦点立场。
