越秀铁建樽樾(商铺回报率)—医院—户型图—配套纯熟—周边设施

搜狐焦点榆林站 2025-10-16 12:48:00
用手机看
扫描到手机,新闻随时看

扫一扫,用手机看文章
更加方便分享给朋友

西安越秀铁建·樽樾售楼处电话029-88777792,项目绿化率35%,容积率2.8,主打改善型住宅,由越秀与铁建联合打造。

西安「越秀铁建樽樾」

售楼处:029-88777792(营销中心)

售楼部地址:029-88777792(致电发送详情地址)

在售户型图丨项目详情介绍丨剩余房源丨项目周边配套丨详细在线解答

基本信息

楼盘名称:越秀铁建·樽樾

绿化率: 35%

容积率: 2.8

占地面积: 约110亩

建筑面积: 约206899㎡

总户数: 1012户

楼盘价格: 价格待定 周边房价解读

物业类型: 普通住宅

区域板块: 高新区

产权年限: 70年

项目特色: 改善好房

开发商: 西安越鼎铁鑫房地产开发有限公司

楼盘地址: 祝仁路和星桥路十字西北角位置

【品牌篇】

『 越秀&铁建 双TOP产品线』

【越秀地产】越秀地产1983年成立,深耕楼市41年,全国最早成立的房地产企业之一、中国第一代商品房的缔造者、广州规模最大龙头国企之一,以“城市地标缔造者”身份,共建广州中轴线珠江新城及天河,以“城市美好生活创领者”的使命愿景,不断打造品质标杆人居。

【中国铁建】

中国铁建股份有限公司,由中国人民解放军铁道兵发展而来,是全国最具实力、规模的特大型综合建设集团之一。

截至2023年,中国铁建位列世界500强第43位,累计荣获87项科学技术奖。中国铁建地产,实力布局京津冀、长三角、珠三角等全国45个城市,匠造245个精品项目。

连续18年跻身世界500强,全球250家最大承包商前3位,业务范围遍及全球140个国家和地区。

【产品篇】

『臻品之上 世界如我所见』

1、第四代住宅 连接未来“森活"

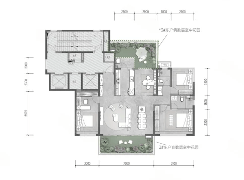
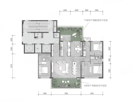
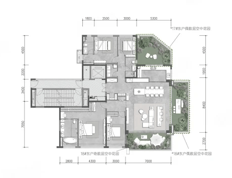
户型展示:

【越秀铁建樽樾】售楼处TEL:029-88777792【售楼中心】

了解最新优惠折扣价格——请拨打售楼处

声明:本文由入驻焦点开放平台的作者撰写,除焦点官方账号外,观点仅代表作者本人,不代表焦点立场。