西安港务区【商铺在售】中铁卓越城商铺【西安商铺价格】中铁卓越城电话

搜狐焦点榆林站 2024-04-21 19:28:50
用手机看
扫描到手机,新闻随时看

扫一扫,用手机看文章
更加方便分享给朋友

西安中铁卓越城商铺租售中心位于港务区漕渠路南,港宁路北,总户数2023年9月首批交付。商铺类型包括便利店、生鲜超市、小型餐饮店、中介门店、理发店、宠物店等,适合居住和商业使用。周边1KM范围内常住人口约5万人,消费潜力巨大。

西安中铁卓越城商铺租售中心电话:029-68866626

西安中铁卓越城商铺租售中心经理电话:18602959000 (微信同步)

【西安免费看房车接送】全程免费接送,一对一热情服务!

【绝不收取任何费用】请提前1小时预约看房,以免给你带来不好的看房体验

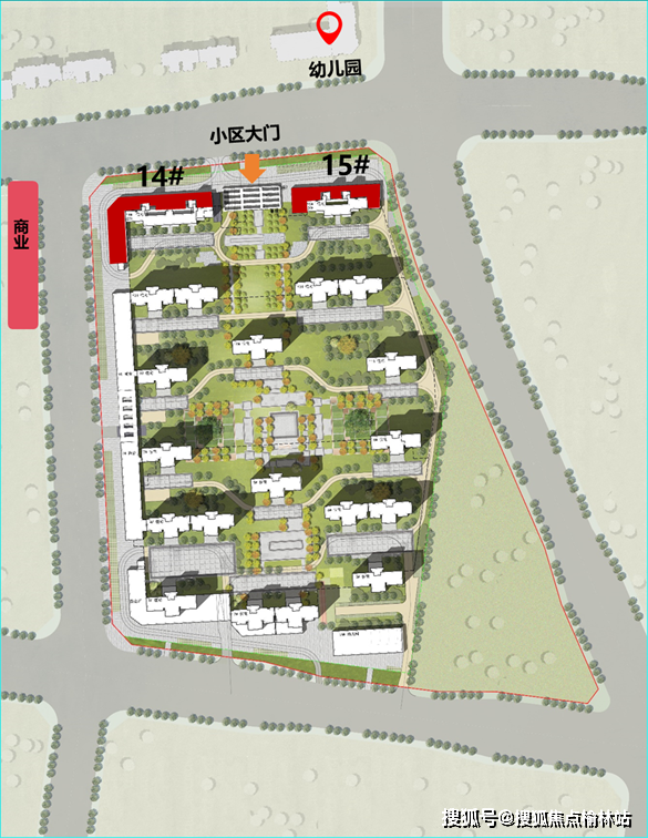
中铁卓越城纯一层商铺中铁卓越城作为落子国际港务区的首个人居项目。高品质精装纯高层设计,拥有住宅、商业、幼儿园等多种业态。低密生态住区,国港宜居范本。

【区域情况】港务区位于大西安主城区的东北角,处在西安国际文化交流轴的龙头位置,是大西安崛起的东部新中心,作为大西安对外开放的重要通道,承担着国际化大都市的新门户及重要的窗口作用。港务区奥体中心是助力西安在世界文旅城市行列的一张发光发亮的名片。随着全运会的召开,以及各项基础设施的规划完善,港务区发展持续迎来高光时刻,土地市场集中式爆发,中铁、招商局、华润、中国电建、中粮、中冶六大央企抢滩入住,同时绿城、绿地、万科、融创、高新、金地等众多品牌开发商纷纷扎根,极大提升了区域内人口的储备。

【项目简介】位置:西安市港务区漕渠路以南,港宁路以北。

已售:面积105㎡ -143㎡,共1373户,2023年9月首批交付

【商铺信息介绍】

商铺位置:西安市港务区漕渠路以南,港宁路以北。

商铺数量:社区底商共39套,部分商铺支持明火餐饮

面积区间:均为纯一层,70年产权,6米层高;20-40㎡共25间,41-50㎡共10间,73-82㎡共4间。

商铺户型图

20-40㎡:菜鸟驿站、早餐店、奶茶店、打印店、烟酒店等;

41-50㎡:便利店、生鲜超市、小型餐饮店、中介门店、理发店、宠物店等;73-82㎡:母婴店、餐饮店、干洗店、社区药店等;

【商铺价值分析】消费人群密集:周边1KM范围内常住人口约5万人。包括自身1300余户业主以及绿地国港新里城、绿地璀璨天城、秦汉和苑、秦汉雅苑等项目,消费潜力巨大。

配套价值:

【幼儿园】:周边分布项目自建面积约3000㎡幼儿园、秦汉和苑幼儿园、绿地国港城三期幼儿园

【小学】:西侧为西安国际港务区陆港第六小学,学校占地约36亩,建筑面积约4.2万平方米,其中地上建筑面积约2.5万平方米,项目总投资约5.1亿元。项目包含报告厅及图书馆(3F)、教学楼及综合楼(5F)、风雨操场及餐厅(2F)、连廊及其他,共开设48个班,可以容纳2160人。2022年9月1日已正式开学。

【医疗】:交大一附院陆港医院,作为三级甲等医院,占地约230亩,设置床位1000张左右,为周边带来源源不断的省内及省外的就医人群。

西安中铁卓越城商铺租售中心电话:029-68866626

西安中铁卓越城商铺租售中心经理电话:18602959000 (微信同步)

【西安免费看房车接送】全程免费接送,一对一热情服务!

【绝不收取任何费用】请提前1小时预约看房,以免给你带来不好的看房体验

声明:本文由入驻焦点开放平台的作者撰写,除焦点官方账号外,观点仅代表作者本人,不代表焦点立场。