西安招商揽阅(租售中心) —户型 —89-135㎡稀缺洋房 —大型社区 —交房
扫描到手机,新闻随时看
扫一扫,用手机看文章
更加方便分享给朋友
西安「招商揽阅」
售楼处:029-88777792 (营销中心)
售楼部地址:029-88777792 (致电发送详情地址)
在售户型图丨项目详情介绍丨剩余房源丨项目周边配套丨详细在线解答
基本信息
楼盘名称:招商揽阅
绿化率: 35%
容积率: 2.5
占地面积: 215亩
建筑面积: 35.88万㎡
总户数: 2606户
当期户数: 627户
车位比: 1:2.0
物业费: 2.2元/㎡·月
车位: DK1:914个;DK2:1212个
物业公司: 招商积余物业
楼盘价格: 参考均价 16500 元/㎡ 周边房价解读
物业类型: 洋房 普通住宅
区域板块: 国际港务区
产权年限: 70年
项目特色: 品牌房企 地铁沿线 教育资源 改善好房
开发商: 西安雍景嘉境房地产有限公司
楼盘地址: 西安市国际港务区奥体大道与林泓路交汇处
(1)百年招商 与祖国共命运 同时代共发展
百年招商局,历经151载风雨洗礼,双世界500强,资产规模位居央企第一。跨越三个世纪,创立轮船招商局、唐胥铁路、南洋公学、蛇口工业区、招商银行、海上世界等时代巨著,刻写中国辉煌的印记。
(2)招商西安·美好生活营造家
招商蛇口作为“招商局集团”旗下子公司,历经43年的发展,以“中国领先的城市和园区综合开发运营服务商”为战略定位,致力于成为“美好生活承载者”。
2014年,招商蛇口携依云曲江项目首次亮相西安。百年招商与千载西安的故事,便正式拉开序幕。此后9年,招商蛇口在西安相继开发招商雍景湾、招商城市主场、招商臻观府、招商局丝路中心、招商央玺、招商臻境、招商西安序、招商雲山間、招商雲蘭、西安伊敦诺富特酒店、招商揽阅等,以对待生命成长的方式升级城市。
①匠心营造 筑牢交付力“护城河”
独创828工业化体系,做到施工过程中“层层责任化”,供料、施工、验收全过程可查、可验、可追、可信,打造全周期质量监控体系,联合优质供应商打造了名为《磐石计划》,由全业务供应商组成品质联盟,从源头上为品质保驾护航。2022年底三区三盘提前交付,超强兑现力见证招商速度。
②场景专家 不断作答生活理想
从《answer大会》洞察行业发展新风向到《场景新提案》以未来场景向生活全新作答,从《向生活 比个心》的深情告白计划,到《谊刻一席谈》不断链接美学生活与人文故事。招商蛇口始终以生活的营造与坚守读懂西安,共鸣一座城市的雄心探索
③社群共创 美好+N全新服务体系
招商荟,客户关系全面提升,美好+N全新服务体系打造,以童子军计划、老年大学招募、招商体育季、家庭日、青年动力营五大专属IP,营造全龄段、全时段、全周期活动。
(6)大西安生态绿肺 河园生态底色加持
①超级水岸:附近有灞渭三角洲 |纵览“一园两河”,揽胜灞河、渭河自然景观资源
②超级生态:附近有浐灞国家湿地公园,国家级湿地公园
③超级公园:附近有奥体中轴生态公园
奥体大道作为港务区近年来发展的黄金中轴线,集萃国际化地标集群、高奢生活资源、优渥天然的生态后花园,为西安构筑迈向世界的城市窗口。
(1)商务集群:附近有十大央企总部【中国中冶、华润、招商局、中国中铁、中电建、中石化、中粮、中外运、中远海、中铁集装箱】
(2)生态集群:附近有灞河三角洲、奥体中央公园、浐灞国际湿地公园、全运湖、丝路国际体育文化交流培训基地、灞河东路生态廊道、陆港纪念公园
(3)地标集群:附近有西安奥体中心、西安国际会展中心、西安国际会议中心、长安乐、长安书院、元朔大桥、长安云、长安塔
(4)商业集群:附近有华润万象城(在建中)、水晶汇溪广场、王府井购物中心(在建中)、中粮·大悦广场(在建中)
(5)名校集群:附近有铁一中陆港中学/小学;陕师大陆港小学、陕师大附中陆港初级中学、高新一中陆港小学、高新一中陆港初级中学、西安国际港务区陆港第七小学、西安国际港务区陆港第四学校(规划中)、陆港第五幼儿园、陆港第六幼儿园、西安国际港务区陆港第九幼儿园(免责声明:本资料中所展示的项目周边学校,仅作为项目周边学校介绍,不作为上学承诺,具体入学条件、入学资格等以教育部门和学校要求为准)
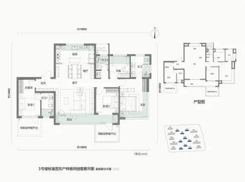
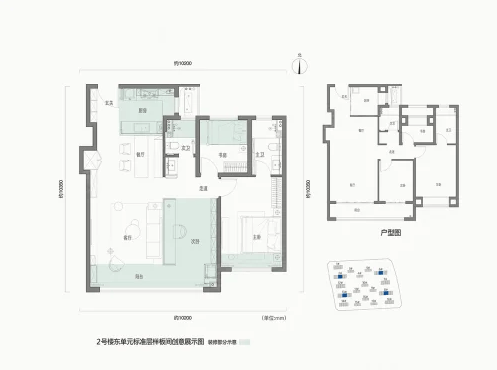
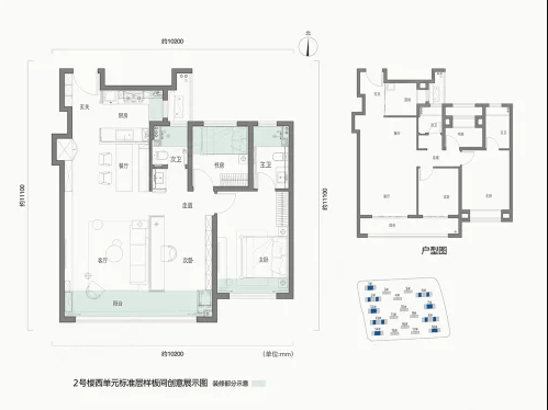
在售户型:
4室2厅2卫1厨, 128平米

3室2厅2卫1厨, 103平米

4室2厅3卫1厨, 143平米

3室2厅2卫1厨, 101平米

【招商揽阅】售楼处TEL:029-88777792 【售楼中心】
了解最新优惠折扣价格——请拨打售楼处
声明:本文由入驻焦点开放平台的作者撰写,除焦点官方账号外,观点仅代表作者本人,不代表焦点立场。
