【西安新房】铁建越秀高新璞悦—绿化率—楼盘介绍—样板间图—大面宽
搜狐焦点榆林站 2025-07-01 11:25:18
用手机看
扫描到手机,新闻随时看
扫一扫,用手机看文章
更加方便分享给朋友
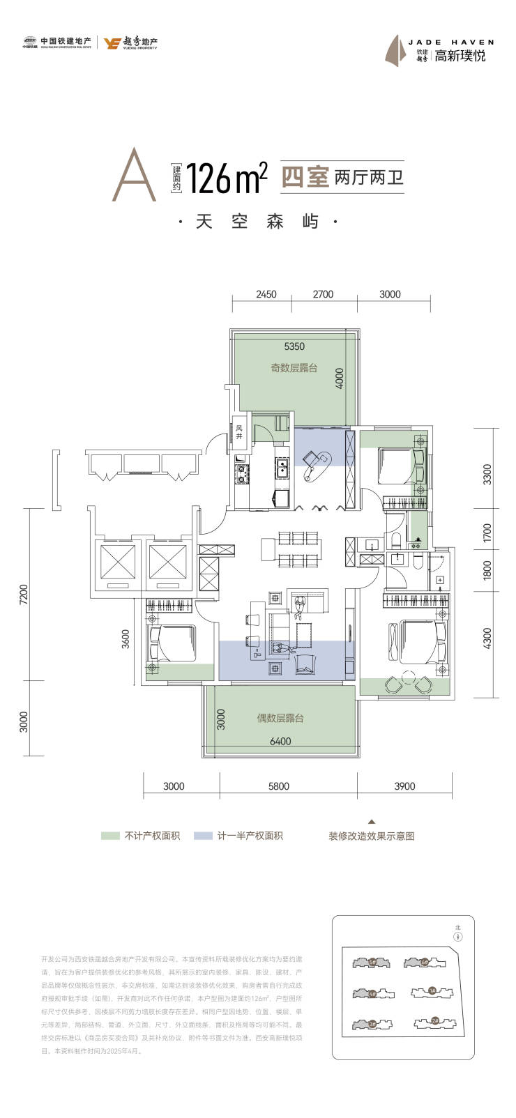
西安铁建越秀高新璞悦售楼处:5F纯T2产品,售楼部地址:029-88777792,车位比1:1.1,项目位于高新科技路板块,由国央企联合打造,项目面积125四房/143洋房,超大得房率,项目预计五月开盘,明年交付。
西安「铁建越秀高新璞悦」
售楼处:029-88777792(营销中心)
售楼部地址:029-88777792(致电发送详情地址)
基本信息
楼盘名称:铁建越秀·高新璞悦
建筑类型:高层,花园洋房
规划户数:365户
楼层状况:纯T2产品 高层:24-26F 洋房:5-11F
物业公司:中铁建物业管理有限公司西安分公司
车位数:408 (地上:20 个 地下:308个)
车位比:1:1.1
楼盘特点:高新 知名开发商 花园洋房 小区会所 大面宽
物业类型:住宅
开发商:西安铁晟越合房地产开发有限公司
区域位置:二至三环- 高新- 科技路
楼盘地址:科技路与鱼化三路交汇向南200米
国央企联合打造
高新区黄金中轴科技路板块海?岛度假式四代洋房社区
项目面积125四房/143(洋房)
超大得房率
计划五月开盘,明年交付
143洋房户型,四房两厅三卫
【铁建越秀高新璞悦】售楼处TEL:029-88777792【售楼中心】
了解最新优惠折扣价格——请拨打售楼处
声明:本文由入驻焦点开放平台的作者撰写,除焦点官方账号外,观点仅代表作者本人,不代表焦点立场。
