翰林府【西安商铺】▁楼位图▁高绿化率▁全时医疗▁公园
扫描到手机,新闻随时看
扫一扫,用手机看文章
更加方便分享给朋友
西安「翰林府」
售楼处:029-88777792(营销中心)
售楼部地址:029-88777792(致电发送详情地址)
基本信息
绿化率: 35%
容积率: 2.6
占地面积: 约30亩
总户数: 414户
车位比: 1:1.0
物业费: 2.42元/m²/月
车位: 456个
物业公司: 万科物业
物业类型: 普通住宅
区域板块: 城北
产权年限: 40年
项目特色: 改善好房
开发商: 陕西润泽基泰置业有限公司
楼盘地址: 元朔路与明光路交汇处东北角

翰林府项目品鉴
匠筑|陕西基泰源集团
择址|中国·国家级·西安经济技术开发区
都会|一路之隔中小学规划用地,名校、名师加持距4号线元朔路地铁口仅200米,纵享立体交通合生汇(规划中)、熙地港、大融城等繁盛商业资源集萃
场域|总占地约30亩
规制|8栋小高+3栋商业配套
栖境|约2.6容积率、35%绿化率
奢逸|全系一梯一户纯粹领地、南北三阳台赏景
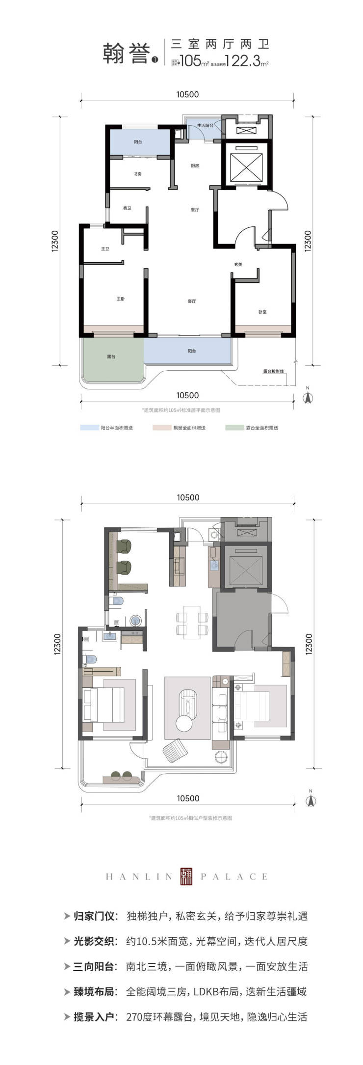
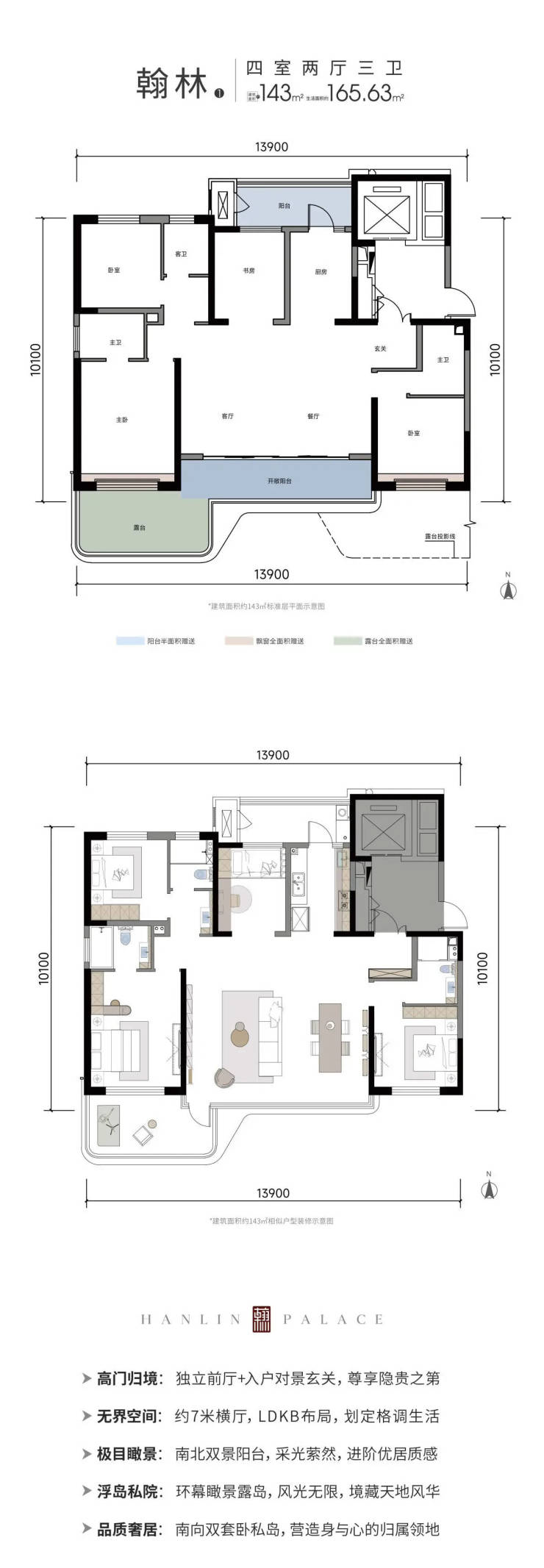
著品|建面约105-143m超四代森境住区
超群·实力稳健的至诚匠人源启向上 行稳致远
陕西基泰源集团,起源于2000年,依托能源产业的深厚根基,以星星之火,汇聚成“炬”,逐步拓展业务版图。历经25年发展,集团整合能源发电、仓储物流、实业、金融等多元化业务,聚沙成塔,逐步实现了从分散业务到集团运营的跨越式发展。
多元格局 基业磐石
能源发电能源为基,驱动绿色发展
仓储物流布局未来,打造全产业链
金融投资稳健投资,共启成功之源
地产开发匠心筑家,造诣人居标杆
教育科技智慧引领,培育创新力量
全时医疗
西安市儿童医院经开院区、西安市红会医院北院区未央区中医医院(在建)等
丰富医疗资源加持,营造舒心健康之享
自然禀赋
渭河自然景观带、西安湖、紫薇湖、文景山公园北站站前公园集萃绿意环伺,鲜氧弥漫,封藏自然谧境
多元产业
区域内汇聚超7万家企业,外资企业400家世界500强近百个央企龙头200家、创新型中小企业数千家产业兴城,擎起时代未来
学府优教 筑基未来
文教胜地,起笔人文新章。一路之隔中小学规划用地,名校、名师加持,构筑教育资源的“硬核引擎”项目周边经开系学府环同,经开第十三小学、经开第十四小学、经开第一学校、经开第二学校、经开第六中学,近距优渥教育资源,厚载学识底蕴。
超配·精心雕琢的人居之境品质筑善 府系奢境
翰林府,基泰源集团运营化后地产开发人居首作,以远见择地、低密规划、创新产品、人文滋养,造诣“府”系进阶人居,品质匠呈,共鸣当代家庭的心中阔境。
形意·流光云翼 东方美学
以国际前沿建筑语汇,塑造时尚隽永的公建化美学立面,立面形制取意“翰林学士帽”,配建low-e中空玻璃窗幕+金属铝板+白色真石漆,轻盈、通透,演绎现代东方美学的艺术坐标。
质感·奢感公区 精工筑境
匠心哲思产品细节,采用国际一线品牌,凝练居住美学的隐奢。打造精装归家大堂、品质地库、电梯间等,超配规制,奢华入微,为时代层峰营造极具品质感的居住体验。
超然产品 超四代居
洞察人群居住需求,规划仅8栋艺术美学地标。建筑面积约105-143㎡超四代著品,户型格局全明方正,动静分区,大平层级空间体验,共鸣当代家庭的心中阔境。
超享·贴心真挚的品质服务万科物业 品牌物管
万科物业成立于1990年,是万物云空间科技服务股份有限公司(简称万物云,是万科企业股份有限公司下属控股子公司)旗下品牌。作为中国物业管理行业的领跑者,“社区、商企、城市空间服务”三驾马车齐驱,以上市物管之专业,让更多用户体验物业服务之美好。
翰林府户型鉴赏
【翰林府】售楼处TEL:029-88777792【售楼中心】
了解最新优惠折扣价格——请拨打售楼处
声明:本文由入驻焦点开放平台的作者撰写,除焦点官方账号外,观点仅代表作者本人,不代表焦点立场。
