商铺在售(招商揽阅) —简介 —89-135㎡稀缺洋房 —学校 —价格

搜狐焦点榆林站 2025-10-01 05:15:00
用手机看
扫描到手机,新闻随时看

扫一扫,用手机看文章
更加方便分享给朋友

西安招商揽阅是招商蛇口在浐灞打造的百亩人居大城,集高层、小高、洋房于一体,绿化率35%,容积率2.5,周边配套完善,是改善型住宅。

西安「招商揽阅」

售楼处:029-88777792 (营销中心)

售楼部地址:029-88777792 (致电发送详情地址)

如需了解最新房源信息_在售房源价格_请拨打上方售楼部电话

基本信息

楼盘名称:招商揽阅

绿化率: 35%

容积率: 2.5

占地面积: 215亩

建筑面积: 35.88万㎡

总户数: 2606户

当期户数: 627户

车位比: 1:2.0

物业费: 2.2元/㎡·月

车位: DK1:914个;DK2:1212个

物业公司: 招商积余物业

楼盘价格: 参考均价 16500 元/㎡ 周边房价解读

物业类型: 洋房 普通住宅

区域板块: 国际港务区

产权年限: 70年

项目特色: 品牌房企 地铁沿线 教育资源 改善好房

开发商: 西安雍景嘉境房地产有限公司

楼盘地址: 西安市国际港务区奥体大道与林泓路交汇处

悬浮绿洲四代住宅 学院派成长社区建筑面积约100-143㎡ 首开

中国·西安浐灞国际港·奥体大道中轴

占地面积:约215亩(分三期开发)

建筑面积:约35.88万㎡

楼栋构成:高层+小高+洋房

主力户型:建面约100-169㎡

容积率:约2.5

绿化率:约35%

开发商:招商蛇口

招商揽阅是招商继百万方大城招商城市主场后,在浐灞国际港打造的第二座百亩人居大城。规划了高层、小高、洋房多款形态产品,并引入了奇偶错层挑空露台,构筑招商在港务区的首个“第四代住宅”产品。

招商揽阅:项目在港务区,奥体大道与秦汉大道交汇处,交大学校路西

(4)大西安外事中心 国际会展赛事名城

西安三大中心 |西安奥体中心、西安丝路国际会议中心、会展中心

(5)大西安文化中心 国际化人文艺术高地

长安乐·无界长安|西安浐灞保利大剧院|西安宋城千古情|华夏文旅|西安热雪奇迹

(6)大西安生态绿肺 河园生态底色加持

①超级水岸:附近有灞渭三角洲 |纵览“一园两河”,揽胜灞河、渭河自然景观资源

②超级生态:附近有浐灞国家湿地公园,国家级湿地公园

③超级公园:附近有奥体中轴生态公园

奥体大道作为港务区近年来发展的黄金中轴线,集萃国际化地标集群、高奢生活资源、优渥天然的生态后花园,为西安构筑迈向世界的城市窗口。

(1)商务集群:附近有十大央企总部【中国中冶、华润、招商局、中国中铁、中电建、中石化、中粮、中外运、中远海、中铁集装箱】

(2)生态集群:附近有灞河三角洲、奥体中央公园、浐灞国际湿地公园、全运湖、丝路国际体育文化交流培训基地、灞河东路生态廊道、陆港纪念公园

(3)地标集群:附近有西安奥体中心、西安国际会展中心、西安国际会议中心、长安乐、长安书院、元朔大桥、长安云、长安塔

(4)商业集群:附近有华润万象城(在建中)、水晶汇溪广场、王府井购物中心(在建中)、中粮·大悦广场(在建中)

(5)名校集群:附近有铁一中陆港中学/小学;陕师大陆港小学、陕师大附中陆港初级中学、高新一中陆港小学、高新一中陆港初级中学、西安国际港务区陆港第七小学、西安国际港务区陆港第四学校(规划中)、陆港第五幼儿园、陆港第六幼儿园、西安国际港务区陆港第九幼儿园(免责声明:本资料中所展示的项目周边学校,仅作为项目周边学校介绍,不作为上学承诺,具体入学条件、入学资格等以教育部门和学校要求为准)

在售户型:

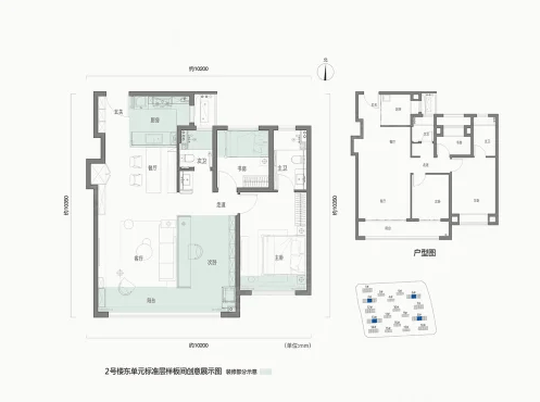
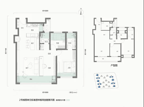
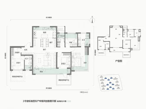
4室2厅2卫1厨, 128平米

3室2厅2卫1厨, 103平米

4室2厅3卫1厨, 143平米

3室2厅2卫1厨, 101平米

【招商揽阅】售楼处TEL:029-88777792 【售楼中心】

了解最新优惠折扣价格——请拨打售楼处

声明:本文由入驻焦点开放平台的作者撰写,除焦点官方账号外,观点仅代表作者本人,不代表焦点立场。