【西安新房▁西安买房▁西安楼盘】灞业云阶房价,售楼部电话,户型图,价格

搜狐焦点榆林站 2024-06-29 06:42:00
用手机看
扫描到手机,新闻随时看

扫一扫,用手机看文章
更加方便分享给朋友

西安地标性住宅项目【灞业云阶】耀世启幕,位于浐灞生态区地铁一号线长乐坡站南500米,占地13985平方米,总建面53805平方米,容积率2.7,绿化率35%,建筑类型纯板式小高层。

02983222232

西安【霸业云阶】

【灞业云阶】

灞业地产西安15年进阶力作 灞业云阶耀世启幕

项目信息

地址:浐灞生态区地铁一号线长乐坡站南500米

占地:13985㎡(21亩)

总建面:53805㎡

容积率:2.7

建筑密度:17.5%

绿化率:35.00%

建筑类型:纯板式小高层

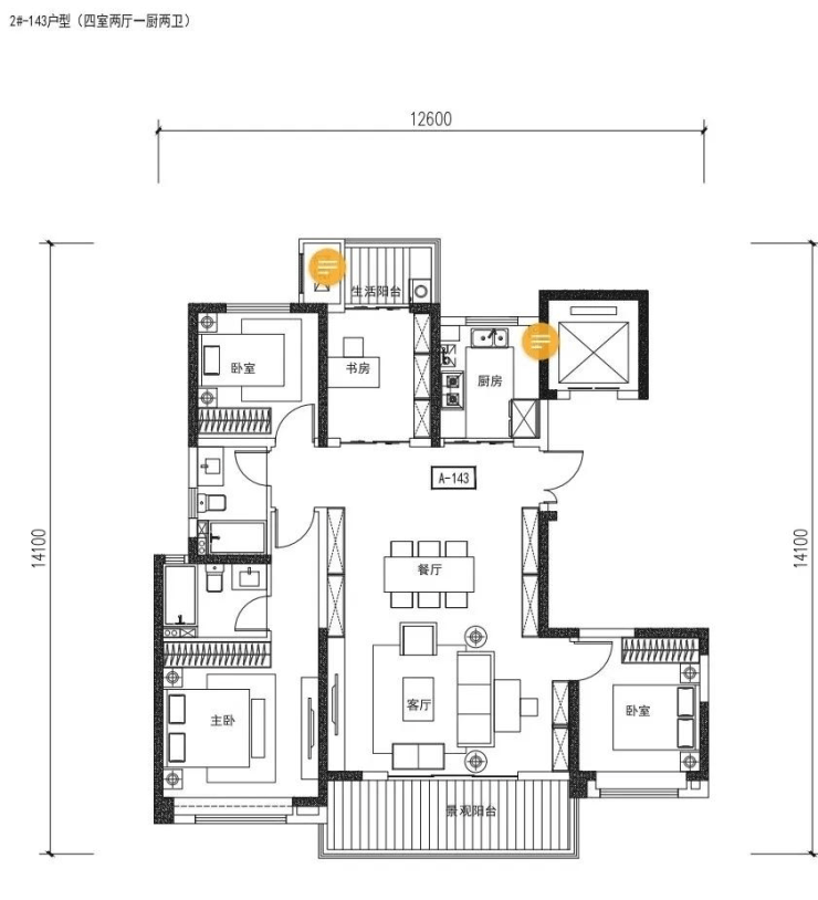
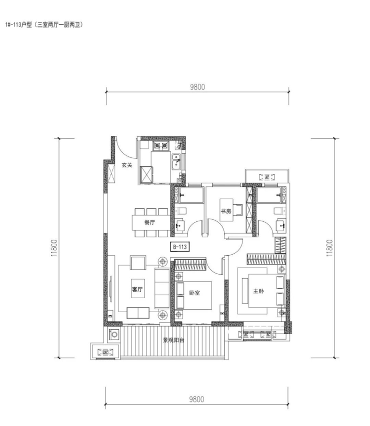
项目产品:约112-185㎡低密精工艺境

地段

主城三环之内 繁华宜居之境

灞业云阶择址主城三环内,浐灞生态区宜居板块,寸土寸金的核芯地段,坐拥未来蓬勃发展潜力,咫尺尽享主城优渥资源。于繁华之中辟一方诗意栖居之所,为城市高阶人士敬献理想品质生活。

交通

三条地铁交汇 畅享便捷出行

项目周边三条地铁线(1号线、6号线、8号线[在建])纵横交汇,长乐东路、韩森路、咸宁路、幸福中路、东三环、绕城高速等城市主干道,构建多维快速交通路网,无论是上班通勤还是远途出行,皆能快速通达。

配套

全维丰盛配套 品质理想生活

商业:灞业云阶商业街、灞业大境商业街区、龙湖天街、幸福林带环球港、韩森路商圈

教育:吉的堡灞业大境幼儿园∣浐灞龙湖小学∣浐灞第二十三小学∣浐灞第四初级中学

医疗:西京医院、唐都医院、西安医学院第二附属医院

其他:灞业3000M温泉、羽毛球馆

生态

举步幸福林带 近瞰生态浐河

项目坐拥两大重量级生态资源,约1134亩的幸福林带与浐河湿地公园左右环抱,持续不断的为区域内居民提供新鲜空气,营造绿色健康,充满诗意的生活环境。

园林

台地景观园林 全龄活动空间

灞业云阶力邀大师团队打造美学艺境,因地制宜打造台地园林,形成错落有致的庭园景观;三重归家礼序,中央景观会客厅,出入之间尽享尊崇。全龄运动空间和轻氧双环跑道,满足全龄段业主的健身需求。

户型

奢享云幕端厅 同频塔尖气场

灞业云阶汲取国际先进人居理念,在户型空间上反复打磨,做到100%全明通透,主力户型南北双阳台设计,南向瞰景,北向独立家政空间;270°云幕端厅,舒阔格局,匹配塔尖气场;嵌入式柜体预留空间,为后期装修提供极大便利

【灞业云阶】

【学校】二十三小和二十二小,八十三中

【物业费】1.9(暂定)

拿地时间:2023.8

均价15500

车位配比:1:1.6

【供暖】市政统一供暖

占地21亩地,3栋住宅,容积率2.7

公摊21%

交付标准:毛坯

交房时间:2026年,交房即交证

【霸业云阶】售楼处 02983222232【售楼中心】

【霸业云阶】置业经理 18602959000(微信同步)

了解最新优惠折扣价格——请拨打售楼中心电话

声明:本文由入驻焦点开放平台的作者撰写,除焦点官方账号外,观点仅代表作者本人,不代表焦点立场。