商铺在售(招商揽阅) —户型 —89-135㎡稀缺洋房 —户型 —电话

搜狐焦点榆林站 2025-09-16 11:28:57
用手机看
扫描到手机,新闻随时看

扫一扫,用手机看文章
更加方便分享给朋友

西安招商揽阅项目,绿化率35%,容积率2.5,均价16500元/㎡,周边教育资源丰富,属品牌房企开发的改善型住宅。

西安「招商揽阅」

售楼处:029-88866690(营销中心)

售楼部地址:029-88866690(致电发送详情地址)

基本信息

楼盘名称:招商揽阅

绿化率: 35%

容积率: 2.5

占地面积: 215亩

建筑面积: 35.88万㎡

总户数: 2606户

当期户数: 627户

车位比: 1:2.0

物业费: 2.2元/㎡·月

车位: DK1:914个;DK2:1212个

物业公司: 招商积余物业

楼盘价格: 参考均价 16500 元/㎡ 周边房价解读

物业类型: 洋房 普通住宅

区域板块: 国际港务区

产权年限: 70年

项目特色: 品牌房企 地铁沿线 教育资源 改善好房

开发商: 西安雍景嘉境房地产有限公司

楼盘地址: 西安市国际港务区奥体大道与林泓路交汇处

(1)百年招商 与祖国共命运 同时代共发展

百年招商局,历经151载风雨洗礼,双世界500强,资产规模位居央企第一。跨越三个世纪,创立轮船招商局、唐胥铁路、南洋公学、蛇口工业区、招商银行、海上世界等时代巨著,刻写中国辉煌的印记。

(2)招商西安·美好生活营造家

招商蛇口作为“招商局集团”旗下子公司,历经43年的发展,以“中国领先的城市和园区综合开发运营服务商”为战略定位,致力于成为“美好生活承载者”。

2014年,招商蛇口携依云曲江项目首次亮相西安。百年招商与千载西安的故事,便正式拉开序幕。此后9年,招商蛇口在西安相继开发招商雍景湾、招商城市主场、招商臻观府、招商局丝路中心、招商央玺、招商臻境、招商西安序、招商雲山間、招商雲蘭、西安伊敦诺富特酒店、招商揽阅等,以对待生命成长的方式升级城市。

(4)大西安外事中心 国际会展赛事名城

西安三大中心 |西安奥体中心、西安丝路国际会议中心、会展中心

(5)大西安文化中心 国际化人文艺术高地

长安乐·无界长安|西安浐灞保利大剧院|西安宋城千古情|华夏文旅|西安热雪奇迹

周边配套:

教育 :附近有项目一路之隔交大附中附小,并且项目自带幼儿园,可以实现全龄教育

医疗配套:附近有三甲综合医院—西安交大一附院国际陆港医院、国家健康养老示范区—前海幸福公馆、养老公寓、专家公寓、康疗公寓为一体的——前海健康城、区域生活服务中心等。

交通配套:附近有 地铁三号线;

商业配套:附近有 社区商业街,购物集市,教培中心,健身房,泳池;三公里商圈涵盖王府井百货,华润万象城,中粮大悦城

娱乐配套: 附近有华夏文旅度假区、丝路创意梦工厂、融创冰雪世界、 奥体中心,长安乐,长安书院

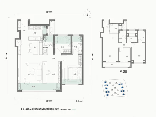
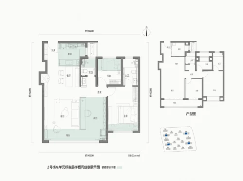
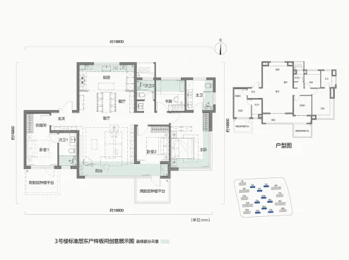
在售户型:

4室2厅2卫1厨, 128平米

3室2厅2卫1厨, 103平米

4室2厅3卫1厨, 143平米

3室2厅2卫1厨, 101平米

【招商揽阅】售楼处TEL:029-88866690【售楼中心】

了解最新优惠折扣价格——请拨打售楼处

声明:本文由入驻焦点开放平台的作者撰写,除焦点官方账号外,观点仅代表作者本人,不代表焦点立场。