翰林府【西安商铺】▁品牌开发商▁高绿化率▁全时医疗▁建筑类型

搜狐焦点榆林站 2025-10-10 14:42:00
用手机看
扫描到手机,新闻随时看

扫一扫,用手机看文章
更加方便分享给朋友

西安翰林府售楼处,35%绿化率,2.6容积率,456车位,万科物业,位于城北,距地铁4号线200米,周边配套齐全。

西安「翰林府」

售楼处:029-88777792(营销中心)

售楼部地址:029-88777792(致电发送详情地址)

在售户型图丨项目详情介绍丨剩余房源丨项目周边配套丨详细在线解答

基本信息

绿化率: 35%

容积率: 2.6

占地面积: 约30亩

总户数: 414户

车位比: 1:1.0

物业费: 2.42元/m²/月

车位: 456个

物业公司: 万科物业

物业类型: 普通住宅

区域板块: 城北

产权年限: 40年

项目特色: 改善好房

开发商: 陕西润泽基泰置业有限公司

楼盘地址: 元朔路与明光路交汇处东北角

翰林府项目品鉴

匠筑|陕西基泰源集团

择址|中国·国家级·西安经济技术开发区

都会|一路之隔中小学规划用地,名校、名师加持距4号线元朔路地铁口仅200米,纵享立体交通合生汇(规划中)、熙地港、大融城等繁盛商业资源集萃

场域|总占地约30亩

规制|8栋小高+3栋商业配套

栖境|约2.6容积率、35%绿化率

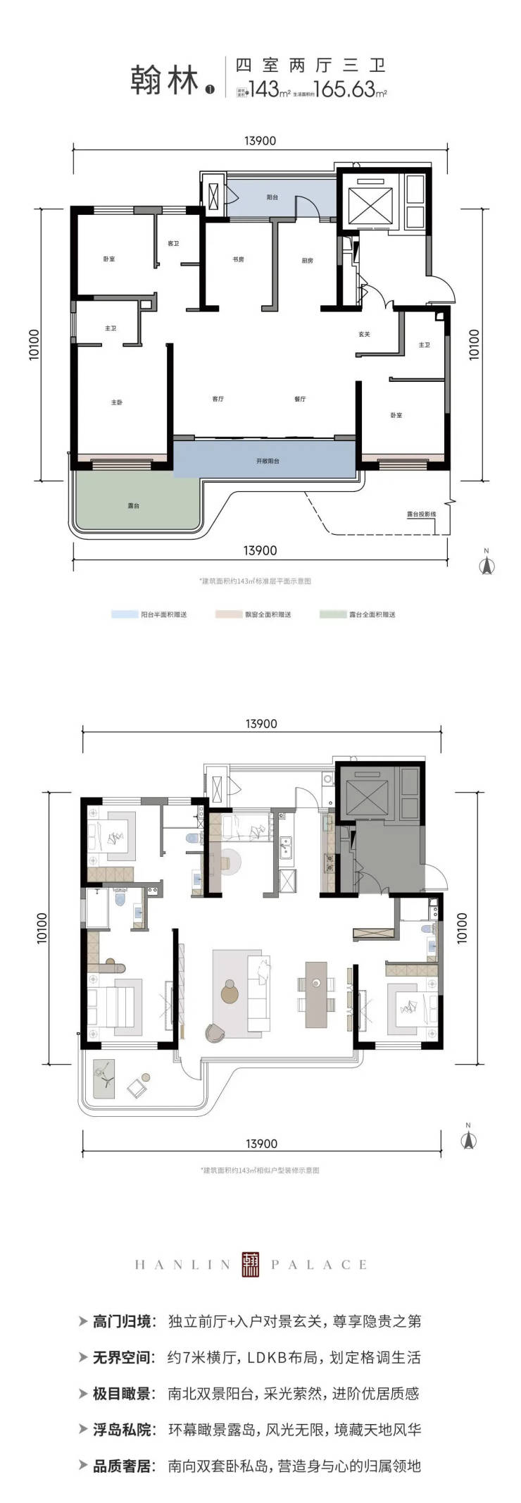
奢逸|全系一梯一户纯粹领地、南北三阳台赏景

著品|建面约105-143m超四代森境住区

超群·实力稳健的至诚匠人源启向上 行稳致远

陕西基泰源集团,起源于2000年,依托能源产业的深厚根基,以星星之火,汇聚成“炬”,逐步拓展业务版图。历经25年发展,集团整合能源发电、仓储物流、实业、金融等多元化业务,聚沙成塔,逐步实现了从分散业务到集团运营的跨越式发展。

多元格局 基业磐石

能源发电能源为基,驱动绿色发展

仓储物流布局未来,打造全产业链

金融投资稳健投资,共启成功之源

地产开发匠心筑家,造诣人居标杆

教育科技智慧引领,培育创新力量

扎根榆林 深耕西安

聚焦高端住宅建设,2021年品牌进驻房产开发领域从拿地到建设,实现完全自有资金运作模式,“0融资、0负债、0杠杆”,实力稳健,行稳致远。

超核·繁华丰盛的都会生活政经核心 繁盛集萃

世界西安所向,仅此珍贵厚壤。翰林府立序经开区核心贵脉--政经核心圈,项目周边交通、商业、医疗、自然、产业等全系资源集粹,美好丰盈,引领一城璀璨。

便捷交通

地铁2、12号线(规划中)环伺距4号线元朔路地铁口仅200米西安北站约800米,多维立体路网,纵横驰骋,畅连全城

繁盛商业

首创禧悦里、合生汇(规划中)、熙地港大融城等多元商业聚集

汇聚世界潮流风尚,纵享城市品质生活圈

低密·以简驭繁 六大森境

以简驭繁,规划容积率仅约2.6的纯粹小高住区,极致纯粹,造诣舒居之享。社区内部打造“翰林甲第六大主题森境”,递进式漫享空间,一步一景、鲜氧充盈,写意人生的诗意画卷。

平步青云/东方游园式归家体验

一路莲科/绮丽梦幻的探索乐园

琼林雅宴/会所式核心会客空间

行健不息/放松身心的活力之地

蟾宫折桂/塑造东方的疗愈花园

百草学堂/寓教于乐的认知空间

第一家通过ISO900国际质量管理体系认证物管企业

中国首批获得一级资质的物业管理企业

连续10年蝉联中国物业管理综合第一

荣获“2024中国住宅物业服务力优秀企业TOP1

“2024年新质物业品牌价值TOP1”翰林府户型鉴赏】

翰林府户型鉴赏

【翰林府】售楼处TEL:029-88777792【售楼中心】

了解最新优惠折扣价格——请拨打售楼处

声明:本文由入驻焦点开放平台的作者撰写,除焦点官方账号外,观点仅代表作者本人,不代表焦点立场。