【西安商铺】西安白桦林晓→便利店→三环外→轨交房→项目详情

搜狐焦点榆林站 2025-10-11 09:09:00
用手机看
扫描到手机,新闻随时看

扫一扫,用手机看文章
更加方便分享给朋友

西安「白桦林晓」售楼处提供详细房源信息及配套服务,地铁便利,绿化率高,户型多样,适合购房。

西安「白桦林晓」

售楼处:029-68866626(营销中心)

售楼部地址:029-68866626(致电发送详情地址)

如需了解最新房源信息_在售房源价格_请拨打上方售楼部电话!

【白桦林晓•项目规划】

项目占地:约78亩

建筑面积:约18.77万方

容积率:2.8

绿化率:35%

总户数:约1070户

产品业态:洋房/小高层/高层

【区域配套·教育篇】

项目北侧一路之隔为70亩教育规划用地,预计引进名校+办学模式

范围内已开学有经开第三小学/经开第十三小学/经开第十四小学

项目配建有约4080㎡幼儿园

【区域配套·交通篇】

双地铁围绕,为业主提供便捷出行

地铁四号线【元朔路站】距离项目约500米

地铁二号线【北苑站】距离项目约1公里

四、【区域配套·医疗篇】

项目北侧2.5公里三甲级红会医院北院区已开诊,为健康保驾护航

板块内规划有陕西中医药大学附属医院

【项目配套·架空层】

项目配建有约600㎡架空层,设置有万册图书馆/自习室/健身活力区/儿童活动区等等

【项目配套·第四代高颜】

奢享高颜社区大门

公建化立面

七、【第四代2.0户型产品】

奇偶错层产品规划

户前卫户型

高赠送,极致得房率

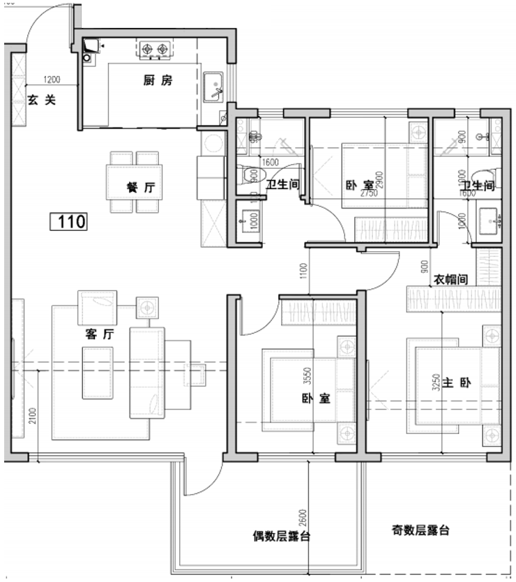
【110㎡-边户】

三室两厅两卫

南向三面宽

高赠送,高得房率

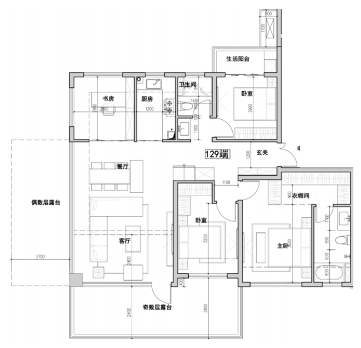
【129㎡-端厅】

四室两厅两卫

奇偶错层,露台、阳台双搭配

高赠送,高得房率

【139㎡-岛厅】

四室两厅三卫

奇偶错层,大进深露台

双套房设计

高赠送,高得房率

【白桦林晓】售楼处TEL:029-68866626【售楼中心】

了解最新优惠折扣价格——请拨打售楼处

声明:本文由入驻焦点开放平台的作者撰写,除焦点官方账号外,观点仅代表作者本人,不代表焦点立场。